Prodej rodinného domu, Karolinka, 151 m2

Karolinka

2 200 000 Kč
/za nemovitost
za nemovitost
Hypotéka od 9 833 Kč /měs. Chci hypotéku

Parametry domu

AdresaKarolinka
StavbaCihlová
Stav objektuPřed rekonstrukcí
Druh objektuSamostatný
Lokalita objektuKlidná část obce
Užitná plocha151 m2
Zastavěná plocha378 m2
Plocha pozemku1942 m2
Plocha zahrady1564 m2
Třída energetické náročnostiG - Mimořádně nehospodárná
Elektřina120V
OdpadSeptik
KomunikaceAsfaltová
DopravaSilnice, Autobus
VodaStudna
Bezbarierový přístup

Origo partneři v Karolince

Popis

Ráda bych Vás provedla a představila Vám ke koupi rodinný dům v obci Karolinka – Stanovnice s číslem popisným, situovaný na pozemku o celkové výměře 1 942 m².

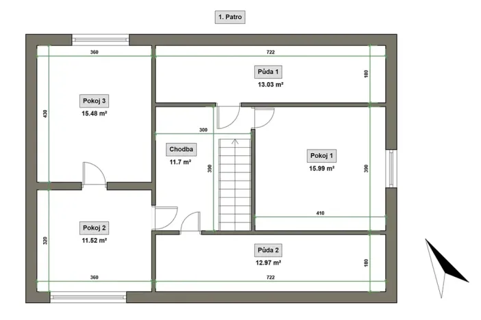
Jedná se o zděný rodinný dům s užitnou plochou přibližně 151 m² a navazující zahradou o výměře 1 564 m². Dům má dispozici 6+1 a zahrnuje kuchyni, koupelnu, samostatné WC a zádveří. V podkroví se nachází půdní prostor s možností rozšíření obytné plochy.

Nemovitost je v původním stavu a je určena k celkové rekonstrukci. Alternativně je možné objekt odstranit a na pozemku realizovat výstavbu nového domu dle vlastních představ.
Inženýrské sítě: elektřina, vlastní studna na pozemku, septik.

Příjezd k nemovitosti je zajištěn po asfaltové komunikaci.
Velkým bonusem je krásný, slunný pozemek. Část pozemku u domu je rovinatá a za domem se nachází zahrada ve svahu, která nabízí dostatek soukromí a příjemný výhled do okolní přírody Valašských vrchů. Lokalita je klidná a obklopená zelení, ideální jak pro trvalé bydlení, tak pro rekreaci.

Nemovitost představuje zajímavou příležitost pro ty, kteří hledají dům k rekonstrukci nebo místo pro výstavbu nového bydlení podle vlastních představ.

Domluvte si prohlídku a ráda Vás nemovitostí osobně provedu.
Těším se na setkání s Vámi Martina.

Makléř

Máte zájem o tento dům?

Tímto, v souladu s nařízením Evropského parlamentu a Rady (EU) 2016/679, v platném znění, prohlašuji, že mi je alespoň 16 let a uděluji tak svůj souhlas se zpracováním zadaných údajů (jméno, telefon, e-mail, ip adresa) společnosti B3 Technology, s.r.o., IČ: 07330600, se sídlem Novostavby 126/23, 435 11 Lom (správce dat), za účelem předání dotazu z tohoto formuláře Vámi vybranému inzerentovi a zpětného kontaktování mé osoby. Osobní údaje bude správce zpracovávat manuálně i automaticky přímo prostřednictvím svých zaměstnanců. Informace předané tímto formulářem budou uloženy v databázi správce maximálně po dobu 10 let. Odvolání souhlasu s uložením a zpracováním poskytnutých dat lze e-mailem na info@origo-reality.cz. V případě podezření na neoprávněné použití Vámi poskytnutých údajů máte právo předat podnět k šetření Úřadu pro ochranu osobních údajů. Více informací
Chystáte se prodat nemovitost?
Pomůžeme Vám!

Přihlášení k odběru

Nenechte si ujít nejnovější nabídky prodeje rodinných domů v Karolince.