Prodej rodinného domu, Rudice, 121 m2

Rudice

8 211 000 Kč
/za nemovitost
Cena včetně domu na klíč, pozemku, připojení na IS a DPH.
Hypotéka od 36 698 Kč /měs. Chci hypotéku

Parametry domu

AdresaRudice
ID655639
StavbaCihlová
Stav objektuVe výstavbě
Typ objektuPatrový
Druh objektuSamostatný
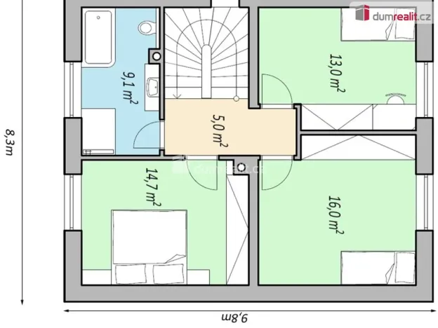
Užitná plocha121 m2
Zastavěná plocha81 m2
Podlahová plocha121 m2
Plocha pozemku1250 m2
Třída energetické náročnostiA - Mimořádně úsporná
Ukazatel energetické náročnosti49 kWh/m2 za rok

Origo partneři v Rudici

Popis

Dumrealit.cz Vám zprostředkuje k prodeji výstavbu rodinného domu na klíč 4+kk o celkové podlahové ploše 121 m² v obci Rudice, okres Uherské Hradiště, se zahradou s ovocnými stromy o celkové výměře 1250m².

Základní informace:
- Lokalita: Rudice, okres Uherské Hradiště
- Typ domu: samostatný, patrový - Konstrukce: cihlová
- Dispozice: 4+kk / 5+kk
- Užitná plocha: 121 m²
- Zastavěná plocha: 81 m²
- Plocha pozemku: 1 250 m²
- Počet bytů v domě: 1
- Stav objektu: nový, dům předán “na klíč”

Vybavení a technické parametry:
- Vytápění: Nízkonákladové teplovodní podlahové topení, tepelné čerpadlo se zásobníkem na teplou vodu 180l.
- Napojení na vodovod - Elektřina: 230 V / 400 V
- Plyn: přípojka na hranici pozemku
- Odpad: ČOV (čistírna odpadních vod) pro celý objekt

Přednosti nabídky:
- Moderní, energeticky úsporná novostavba
- Velký, soukromý pozemek 1 250 m² poskytující možnost rozšíření zahradních úprav nebo volnočasových aktivit
- Klidná lokalita s dobrou dostupností do Uherského Brodu či Bojkovic
- Kompletní technické napojení (voda, elektřina 230/400 V, ČOV), plyn dostupný na hranici pozemku

Díky svému kompaktnímu tvaru dosahuje projekt patrového rodinného domu Benefit125 výraznou energetickou a výstavbovou úsporu. Z boční strany lze jednoduchým způsobem přistavět garáž, nebo přístřešek . Také lze upravit rozložení oken a ostatních stavebních otvorů . Projekt je dostupný také v 5 + kk alternativě a také v alternativě.
Dům moderního vzhledu je typ rodinného domu vhodný do rovinatého, ale i mírně svažitého terénu.

Žádné starosti.
Stavíme na klíč.
Od základové desky až po kolaudaci. Uvedená cena obsahuje základovou desku, projekt, DPH a stavba bude provedena na klíč a předána po kolaudaci k okamžitému užívání. (Součástí ceny není kuchyňská linka a světla – dokážeme za zvýhodněných podmínek zajistit přes naše dodavatele).
Délka výstavby od vydání stavebního povolení 12 měsíců u zděné varianty.
Zaujala vás tato nabídka?
Napište mi zprávu nebo zavolejte a probereme detaily vašeho budoucího domova. Ev. číslo: 655025.

Makléř

Máte zájem o tento dům?

Tímto, v souladu s nařízením Evropského parlamentu a Rady (EU) 2016/679, v platném znění, prohlašuji, že mi je alespoň 16 let a uděluji tak svůj souhlas se zpracováním zadaných údajů (jméno, telefon, e-mail, ip adresa) společnosti B3 Technology, s.r.o., IČ: 07330600, se sídlem Novostavby 126/23, 435 11 Lom (správce dat), za účelem předání dotazu z tohoto formuláře Vámi vybranému inzerentovi a zpětného kontaktování mé osoby. Osobní údaje bude správce zpracovávat manuálně i automaticky přímo prostřednictvím svých zaměstnanců. Informace předané tímto formulářem budou uloženy v databázi správce maximálně po dobu 10 let. Odvolání souhlasu s uložením a zpracováním poskytnutých dat lze e-mailem na info@origo-reality.cz. V případě podezření na neoprávněné použití Vámi poskytnutých údajů máte právo předat podnět k šetření Úřadu pro ochranu osobních údajů. Více informací
Chystáte se prodat nemovitost?
Pomůžeme Vám!

Přihlášení k odběru

Nenechte si ujít nejnovější nabídky prodeje rodinných domů v Rudici (okr. Uherské Hradiště).