Prodej bytu 4+kk, Vodice, Chorvatsko, 95 m2 (ID: 1989989)

Vodice

481 000 €
/za nemovitost

Parametry bytu

AdresaVodice
IDF25020
StavbaCihlová
Stav objektuNovostavba
Patro3. z 3
VybavenoČástečně
Lokalita objektuKlidná část obce
VlastnictvíOsobní
Užitná plocha95 m2
Podlahová plocha130 m2
Elektřina230V
OdpadVeřejná kanalizace, ČOV pro celý objekt
TopeníLokální elektrické
TelekomunikaceInternet
DopravaDálnice, Silnice, Autobus
VodaVodovod
Balkon
Sklep
Terasa
Výtah
Parkování

Origo partneři

Popis

V atraktivní části města Vodice nabízíme komfortní penthouse se třemi ložnicemi, výtahem a dechberoucím výhledem na moře i město. Nemovitost se nachází pouhých 600 metrů od oblíbené městské pláže Plava plaža a přibližně 500 metrů od centra, což znamená, že vše důležité máte na dosah a přesto si užíváte klid rezidenční čtvrti obklopené rodinnými domy.

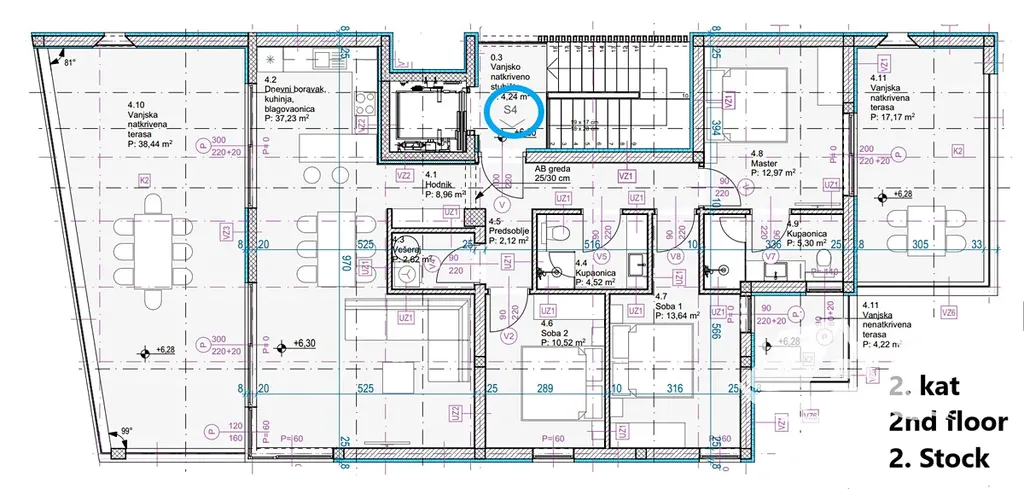
Jedná se o menší moderní dům se čtyřmi byty, kde každý byt na prvním a druhém patře zabírá celé podlaží, což zajišťuje maximální soukromí. Penthouse S4 je situován ve 2. patře a rozprostírá se přes celou etáž s čistou užitnou plochou 130 m². Dispozice je promyšlená a velkorysá. Nabízí vstupní prostor, chodbu, prádelnu, koupelnu, tři ložnice, přičemž hlavní ložnice má vlastní koupelnu a vstup na krytou terasu s výhledem na moře. Druhá ložnice má vstup na otevřenou terasu, také s výhledem na moře. Srdcem bytu je prostorný obývací pokoj propojený s kuchyní a jídelnou, odkud se vychází na hlavní krytou terasu o velikosti 38,44 m² s panoramatickým výhledem na moře a město.

Budova je postavena podle nejnovějších stavebních standardů s důrazem na kvalitu a dlouhodobou hodnotu. Nabízí zateplenou fasádu, protipožární a bezpečnostní vstupní dveře, hliníková okna s trojsklem, hliníkové posuvné stěny na balkonech, elektrické rolety se sítěmi proti hmyzu, podlahy z přírodního kamene Plano, moderní koupelnové vybavení, klimatizaci v ložnicích i obývacím pokoji a podlahové vytápění prostřednictvím tepelného čerpadla. Terasy mají elegantní skleněné zábradlí a dům je vybaven výtahem. K penthousu náleží dvě parkovací místa.

Plánované dokončení je v březnu 2026. Kupující je osvobozen od placení tříprocentní daně z nabytí nemovitosti, což představuje výraznou finanční úsporu.

Vodice jsou jednou z nejvyhledávanějších lokalit na dalmatském pobřeží díky upraveným plážím, marině, restauracím, kavárnám, obchodům a bohatému společenskému životu. Město je vhodné pro celoroční bydlení i pro investiční pronájem, protože kombinuje stabilní poptávku s příjemným středomořským klimatem.

Tento penthouse nabízí kombinaci prostoru, soukromí a výjimečné lokality. Je to nemovitost, která má potenciál růstu hodnoty a zároveň vytváří prostor pro rodinné chvíle, večery na terase a dlouhodobé vzpomínky s výhledem na moře.

Všechny údaje uvedené v tomto inzerátu slouží pouze k informačním účelům. Před jakýmkoli rozhodnutím nebo jednáním založeným na těchto informacích je nutné všechny údaje ověřit v naší realitní kanceláři.

Makléř

Máte zájem o tento byt?

Tímto, v souladu s nařízením Evropského parlamentu a Rady (EU) 2016/679, v platném znění, prohlašuji, že mi je alespoň 16 let a uděluji tak svůj souhlas se zpracováním zadaných údajů (jméno, telefon, e-mail, ip adresa) společnosti B3 Technology, s.r.o., IČ: 07330600, se sídlem Novostavby 126/23, 435 11 Lom (správce dat), za účelem předání dotazu z tohoto formuláře Vámi vybranému inzerentovi a zpětného kontaktování mé osoby. Osobní údaje bude správce zpracovávat manuálně i automaticky přímo prostřednictvím svých zaměstnanců. Informace předané tímto formulářem budou uloženy v databázi správce maximálně po dobu 10 let. Odvolání souhlasu s uložením a zpracováním poskytnutých dat lze e-mailem na info@origo-reality.cz. V případě podezření na neoprávněné použití Vámi poskytnutých údajů máte právo předat podnět k šetření Úřadu pro ochranu osobních údajů. Více informací
Chystáte se prodat nemovitost?
Pomůžeme Vám!