Prodej bytu 2+1, Karlovy Vary, Koptova, 78 m2

Koptova, Karlovy Vary

5 290 000 Kč
/za nemovitost
Hypotéka od 23 643 Kč /měs. Chci hypotéku

Parametry bytu

AdresaKoptova, Karlovy Vary
ID294-NP01780
StavbaSmíšená
Stav objektuPo rekonstrukci
Patro1. z 5
VybavenoAno
Lokalita objektuCentrum obce
VlastnictvíOsobní
Užitná plocha78 m2
Zastavěná plocha175 m2
Podlahová plocha84 m2
Třída energetické náročnostiG - Mimořádně nehospodárná
Elektřina230V
PlynPlynovod
OdpadVeřejná kanalizace
KomunikaceAsfaltová
TelekomunikaceTelefon, Internet, Satelit, Ostatní
DopravaVlak, Dálnice, MHD, Autobus
VodaVodovod
Sklep
Parkování

Origo partneři v Karlových Varech

Popis

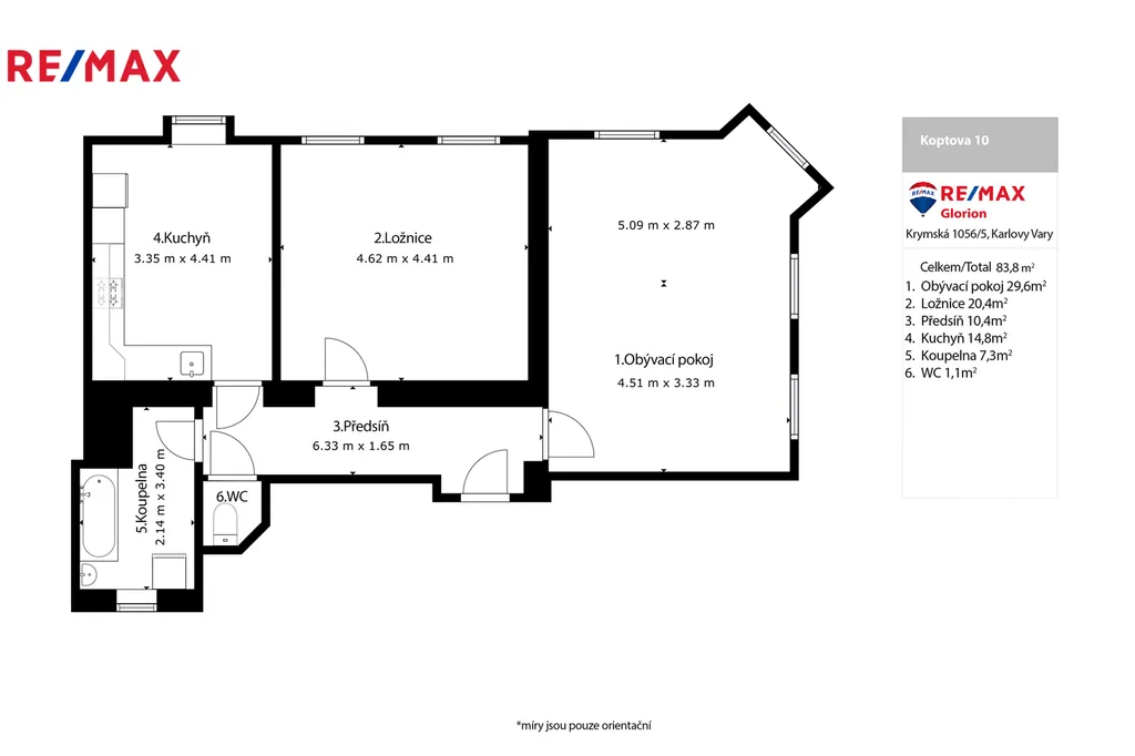
Exkluzivně nabízíme k prodeji stylový a prostorný byt o dispozici 2+1o celkové ploše 78,3 m² + sklep 5,3 m², po rekonstrukci.

Byt je zařízen stylovým nábytkem, který harmonicky ladí s prostornými místnostmi a vysokými stropy o výšce 3,6 m. Jedna z velkých místností je díky promyšlenému zónování rozdělena na ložnici a obývací část, přičemž zde zůstává i prostor vhodný pro pracovní kout nebo domácí kancelář.

Kuchyně je vybavena kvalitními vestavěnými spotřebiči a nabízí také místo pro relaxační zónu. Právě díky tomuto uspořádání lze byt prakticky využívat jako dispozici 3+kk.
Vytápění i ohřev vody jsou zajištěny centrálně.
Byt se prodává plně zařízený, což umožňuje okamžité nastěhování – stačí si přivézt osobní věci a můžete bydlet bez dalších investic.
Vytápění i ohřev vody jsou zajištěny centrálně.
Vedle domu je spousta parkovacích míst - majitel bytu dostava povolení k parkováni.
V okolí je všechno - v pěší dostupnosti obchody: LIDL, ALBERT, lékárna, spojující stanice MHD Tržnice, kavárny a restauraci, škola, školka a další občanská vybavenost

Nemovitost je zároveň velmi vhodná také jako investice pro dlouhodobý pronájem nebo krátkodobé ubytování typu Airbnb.

Centrální lokalita a blízkost lázeňské zóny (pouhých 5 minut chůze) činí tuto nabídku atraktivní jak pro vlastní bydlení, tak pro turistické využití.
Může se tak stát ideální rezidencí pro ty, kteří hledají klidné místo mimo ruch a beton velkých měst.

Tento útulný byt čeká na své nové majitele. Nepropásněte tuto výjimečnou nabídku a rezervujte si prohlídku u makléře. Prodávající si vyhrazuje právo vybrat kupujícího na základě jím zvolených kritérií.

Makléř

Máte zájem o tento byt?

Tímto, v souladu s nařízením Evropského parlamentu a Rady (EU) 2016/679, v platném znění, prohlašuji, že mi je alespoň 16 let a uděluji tak svůj souhlas se zpracováním zadaných údajů (jméno, telefon, e-mail, ip adresa) společnosti B3 Technology, s.r.o., IČ: 07330600, se sídlem Novostavby 126/23, 435 11 Lom (správce dat), za účelem předání dotazu z tohoto formuláře Vámi vybranému inzerentovi a zpětného kontaktování mé osoby. Osobní údaje bude správce zpracovávat manuálně i automaticky přímo prostřednictvím svých zaměstnanců. Informace předané tímto formulářem budou uloženy v databázi správce maximálně po dobu 10 let. Odvolání souhlasu s uložením a zpracováním poskytnutých dat lze e-mailem na info@origo-reality.cz. V případě podezření na neoprávněné použití Vámi poskytnutých údajů máte právo předat podnět k šetření Úřadu pro ochranu osobních údajů. Více informací
Chystáte se prodat nemovitost?
Pomůžeme Vám!

Přihlášení k odběru

Nenechte si ujít nejnovější nabídky prodeje bytů 2+1 v Karlových Varech.