Prodej bytu 1+kk, Mšené-lázně, Mládežnická, 22 m2 (ID: 1989481)

Mládežnická, Mšené-lázně

Rezervováno
1 404 000 Kč
/za nemovitost
včetně DPH, včetně provize, bez právního servisu
Hypotéka od 6 275 Kč /měs. Chci hypotéku

Parametry bytu

StavRezervováno
AdresaMládežnická, Mšené-lázně
IDN06004
StavbaCihlová
Stav objektuDobrý
Patro1.
VybavenoČástečně
VlastnictvíOsobní
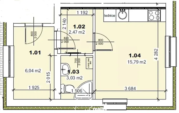
Užitná plocha22 m2
Podlahová plocha22 m2
Třída energetické náročnostiC - Úsporná
Ukazatel energetické náročnosti94 kWh/m2 za rok
DopravaSilnice

Origo partneři v Mšeném

Okna a dveře

Rekonstrukce

Popis

Hledáte bezpečné a pohodové bydlení nejen ve vyšším věku, kde máte vše důležité doslova na dosah ruky?

Nebo zvažujete smysluplnou investici do nemovitosti s dlouhodobým a stabilním využitím?

Nabízím bytové jednotky situované pouhých 550 metrů od areálu oblíbených Lázní Mšené, který poskytuje ideální zázemí pro seniory i osoby hledající klid a dostupnou péči.

Bytové jednotky vhodné nejen k lázeňským pobytům, ale i běžnému dlouhodobému pronájmu s možností využití zvýhodněných lázeňských služeb.

Výhody bydlení pro seniory:
- přímá vazba na lázeňskou a lékařskou péči
- dostupné služby: lékař, masáže, wellness, stravování, úklid a další
- možnost kulturních a společenských aktivit v areálu lázní
- pocit bezpečí a jistoty každodenního fungování

Investiční potenciál:
- dlouhodobě atraktivní lokalita se stálou poptávkou bydlení pro seniory
- možnost dlouhodobého pronájmu (některé jednotky jsou již obsazené)
- nízké provozní náklady díky menším dispozicím
- stabilní výnos bez nutnosti náročné správy (možná dohoda přímo s provozovatelem lázní)

Nabízený byt č. 6 se nachází v domě Natálie a je řešen jako 1+kk o výměře 21,6 m², ideální pro jednotlivce. K bytu náleží parkovací stání (není součástí ceny) a je zde možnost přikoupení zahrádky.

Dům Natalie prošel úpravou, nejedná se o novostavbu, ale o tvz. "second-hand" nemovitost. Byl přizpůsoben malometrážnímu, pohodlnému a bezpečnému bydlení s vazbou na lázeňský areál. Jedná se o jednopodlažní objekt s novou střešní krytinou.

V domě Natalie se nachází:
- šest bytových jednotek 1+kk (od velikosti 21,4 m2 do 40,6 m2)
- pět bytových jednotek 1+1, přičemž některé lze využít jako 2+kk (od velikosti 30,6 m2 do 58,3 m2)
- součástí každé bytové jednotky je chodba, sociální zázemí, kuchyně vč. obytné místnosti (u některých dvě)
- společné prostory jsou tvořeny vstupním zádveřím, chodbou s druhým únikovým východem, místností s rozvaděči elektro, místností na kočárky a kola, sušárna s úklidovou místností s výlevkou.
- každý byt má vlastní topení (přímotopy) a ohřev teplé vody (boiler)

Okolí lázní nabízí klidnou přírodu, léčivé prostředí a množství možností pro procházky, lehkou turistiku i cyklistiku. Za zmínku stojí hora Říp, zámek Libochovice či hrad Házmburk. V blízké Ředhošti se pravidelně konají tradiční trhy.

Dobrá dopravní dostupnost do Slaného, Roudnice nad Labem i Prahy (autem i autobusovým spojením).

Nemovitost je bez právních omezení. Možnost financování hypotečním úvěrem, který vám rádi zajistíme.

Makléř

Máte zájem o tento byt?

Tímto, v souladu s nařízením Evropského parlamentu a Rady (EU) 2016/679, v platném znění, prohlašuji, že mi je alespoň 16 let a uděluji tak svůj souhlas se zpracováním zadaných údajů (jméno, telefon, e-mail, ip adresa) společnosti B3 Technology, s.r.o., IČ: 07330600, se sídlem Novostavby 126/23, 435 11 Lom (správce dat), za účelem předání dotazu z tohoto formuláře Vámi vybranému inzerentovi a zpětného kontaktování mé osoby. Osobní údaje bude správce zpracovávat manuálně i automaticky přímo prostřednictvím svých zaměstnanců. Informace předané tímto formulářem budou uloženy v databázi správce maximálně po dobu 10 let. Odvolání souhlasu s uložením a zpracováním poskytnutých dat lze e-mailem na info@origo-reality.cz. V případě podezření na neoprávněné použití Vámi poskytnutých údajů máte právo předat podnět k šetření Úřadu pro ochranu osobních údajů. Více informací
Chystáte se prodat nemovitost?
Pomůžeme Vám!

Přihlášení k odběru

Nenechte si ujít nejnovější nabídky prodeje bytů 1+kk v Mšeném.