Soccer reality

Prodej rodinného domu, Předboj, K Parku, 200 m2

K Parku, Předboj

36 970 000 Kč
/za nemovitost
Hypotéka od 165 234 Kč /měs. Chci hypotéku

Parametry domu

AdresaK Parku, Předboj
IDN66429
StavbaCihlová
Stav objektuNovostavba
Typ objektuPatrový
Druh objektuSamostatný
Lokalita objektuKlidná část obce
Užitná plocha200 m2
Zastavěná plocha167 m2
Podlahová plocha285 m2
Plocha pozemku1019 m2
Plocha zahrady852 m2
Třída energetické náročnostiB - Velmi úsporná
OdpadVeřejná kanalizace
VodaVodovod
Garáž
Lodžie
Terasa
Výtah
Parkování
Bazén

Origo partneři v Předboji

Popis

Soccer Reality vám exkluzivně zprostředkuje prodej luxusního rodinného domu, který zaujme i ty nejnáročnější z vás. Dům je součástí velmi úspěšného projektu Březový háj z roku 2022, navrženého architekty společnosti JK ARCHITEKTI s.r.o. (Ing. arch. Jan Kasl a Ing. arch. Pavel Krpec). Na jejich práci navázal ateliér Morix manželů Pizingerových, který interiérům vtiskl současnou podobu, osobitý rukopis a jedinečný design.

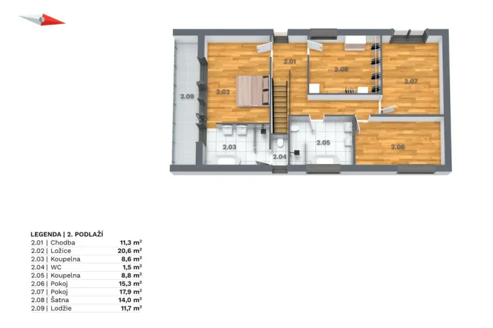
Tato moderní a energeticky úsporná stavba (energetická třída B) byla postavena z prvotřídních materiálů a nabízí velkorysou dispozici 6+kk. V přízemí je prostorná předsíň s vestavěnými skříněmi, koupelna s WC, technická místnost a pokoj. Dominantou domu je jižně orientovaný obytný prostor spojující obývací pokoj, jídelnu a kuchyň. Z obývací části je vstup na terasu s výhledem na 12m bazén se slanou vodou, obklopený bílou dlažbou, která prostoru dodává jedinečný charakter. Večery na terase zpříjemní osvětlená zahrada, moderní venkovní krb a špičkový audio systém Bowers & Wilkins.

V horním patře se nachází tři pokoje orientované na východ nebo západ (v současnosti využívané jako šatna s prádelnou, dětský pokoj a pracovna) a dále prostorná ložnice s orientací na V/JV, která disponuje vlastní koupelnou se sprchovým koutem, vanou, dvěma umyvadly a samostatným WC. Z této ložnice je přímý vstup na balkon. Na patře je navíc další koupelna s vanou, sprchou a WC a vstup na půdu vhodnou pro uložení sezónních věcí.

Interiér domu je promyšlen do posledního detailu jak po praktické, tak i designové stránce. Architekti zvolili kombinaci masivního dřeva, světlých stěn a kontrastních černých prvků, které vytvářejí elegantní a nadčasovou atmosféru.

Velkým benefitem oproti ostatním domům v projektu je samostatná zateplená garáž s výškou vjezdu 220 cm, plnohodnotnými IT a elektro rozvody – ideální i jako kancelář nebo dílna. Garáž i carport mají přípravu pro dobíjení elektromobilů. Celková výměra parkovacích ploch činí přibližně 100 m² a pojme až 7 automobilů.

Zahrada je osázena vzrostlou zelení, která zajišťuje naprosté soukromí. Samozřejmostí je automatická závlaha napojená na tři retenční nádrže a dětská herní sestava.

Dům je technologicky na velmi vysoké úrovni. Nechybí pasivní chlazení (v podlaze i stropě), podlahové vytápění, rekuperace vzduchu s udržováním vlhkosti, úpravna vody Watex, plastová okna s trojskly a předokenním stíněním, tepelné čerpadlo s geotermálním vrtem, příprava pro fotovoltaiku (FTV) a inteligentní domácnost LOXONE s možností individuálního nastavení. Samozřejmostí je kompletní zabezpečení celé nemovitosti.

Obec Předboj se dynamicky rozvíjí – vzniká nový veřejný park „Pod Vilami“ a nechybí zde mateřská škola, obecní úřad, obchod s potravinami i další služby. Do Prahy se dostanete autobusem za méně než 30 minut. Celkový komfort a výjimečnost lokality doplňuje Yard Resort s restaurací, wellness, sportovišti a prestižním golfovým hřištěm, které podtrhuje exkluzivitu této nabídky.

Makléř

Máte zájem o tento dům?

Tímto, v souladu s nařízením Evropského parlamentu a Rady (EU) 2016/679, v platném znění, prohlašuji, že mi je alespoň 16 let a uděluji tak svůj souhlas se zpracováním zadaných údajů (jméno, telefon, e-mail, ip adresa) společnosti B3 Technology, s.r.o., IČ: 07330600, se sídlem Novostavby 126/23, 435 11 Lom (správce dat), za účelem předání dotazu z tohoto formuláře Vámi vybranému inzerentovi a zpětného kontaktování mé osoby. Osobní údaje bude správce zpracovávat manuálně i automaticky přímo prostřednictvím svých zaměstnanců. Informace předané tímto formulářem budou uloženy v databázi správce maximálně po dobu 10 let. Odvolání souhlasu s uložením a zpracováním poskytnutých dat lze e-mailem na info@origo-reality.cz. V případě podezření na neoprávněné použití Vámi poskytnutých údajů máte právo předat podnět k šetření Úřadu pro ochranu osobních údajů. Více informací
Chystáte se prodat nemovitost?
Pomůžeme Vám!

Přihlášení k odběru

Nenechte si ujít nejnovější nabídky prodeje rodinných domů v Předboji.