Prodej bytu 2+1, Ostrava - Hrabůvka, Dr. Martínka, 54 m2

Dr. Martínka, Ostrava, Hrabůvka

3 150 000 Kč
/za nemovitost
provizi hradí prodávající
Hypotéka od 14 079 Kč /měs. Chci hypotéku

Parametry bytu

Náklady na bydlení5700Kč + el.,plyn
AdresaDr. Martínka, Ostrava, Hrabůvka
ID82710
StavbaPanelová
Stav objektuVelmi dobrý
Patro3. z 12
Druh objektuSamostatný
VlastnictvíOsobní
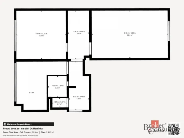
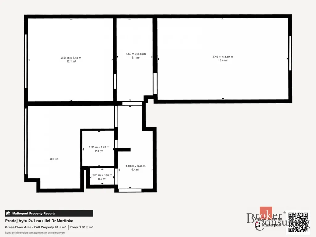
Užitná plocha54 m2
Třída energetické náročnostiG - Mimořádně nehospodárná
TopeníÚstřední dálkové
Sklep
Výtah

Origo partneři v Ostravě

Popis

Nabízíme k prodeji byt v osobním vlastnictví o dispozici 2+1 a podlahové ploše 54 m², který se nachází ve 3. nadzemním podlaží bytového domu s výtahem na ulici Dr. Martínka 47 v Ostravě.

Byt je v původním, udržovaném stavu, což dává novému majiteli ideální příležitost upravit si bydlení podle vlastních představ.

Velkou výhodou je praktické dispoziční řešení – oba pokoje jsou samostatné a neprůchozí, přístupné z předsíně. Dispozice tak nabízí dostatek soukromí a je vhodná jak pro vlastní bydlení, tak i jako investiční byt k pronájmu.

Byt je orientovaný na sever a jih, díky čemuž je příjemně světlý během celého dne.

Dům prošel rekonstrukcí a zateplením, což přispívá k vyššímu komfortu bydlení a lepší energetické efektivitě. Samozřejmostí je výtah a sklepní kóje, která poskytuje další úložný prostor.

Lokalita:
Jedná se o vyhledávanou lokalitu s kompletní občanskou vybaveností. V docházkové vzdálenosti najdete MHD, obchody, školy, školky, lékaře i další služby. Parkování je možné přímo u domu.

Další informace:
• ústřední vytápění
• měsíční náklady: 1 650 Kč fond oprav + cca 4 050 Kč služby (teplo, voda, výtah, apod.)
• byt bude k dispozici k předání na konci května

Byt je dobře financovatelný hypotečním úvěrem, se kterým Vám rádi pomůžeme.

Pro lepší představu o dispozici doporučujeme projít si virtuální prohlídku, která je součástí prezentace.

Makléř

Máte zájem o tento byt?

Tímto, v souladu s nařízením Evropského parlamentu a Rady (EU) 2016/679, v platném znění, prohlašuji, že mi je alespoň 16 let a uděluji tak svůj souhlas se zpracováním zadaných údajů (jméno, telefon, e-mail, ip adresa) společnosti B3 Technology, s.r.o., IČ: 07330600, se sídlem Novostavby 126/23, 435 11 Lom (správce dat), za účelem předání dotazu z tohoto formuláře Vámi vybranému inzerentovi a zpětného kontaktování mé osoby. Osobní údaje bude správce zpracovávat manuálně i automaticky přímo prostřednictvím svých zaměstnanců. Informace předané tímto formulářem budou uloženy v databázi správce maximálně po dobu 10 let. Odvolání souhlasu s uložením a zpracováním poskytnutých dat lze e-mailem na info@origo-reality.cz. V případě podezření na neoprávněné použití Vámi poskytnutých údajů máte právo předat podnět k šetření Úřadu pro ochranu osobních údajů. Více informací
Chystáte se prodat nemovitost?
Pomůžeme Vám!

Přihlášení k odběru

Nenechte si ujít nejnovější nabídky prodeje bytů 2+1 v Ostravě.