Pronájem kanceláře, Jindřichův Hradec - Jindřichův Hradec II, U Nádraží, 55 m2

U Nádraží, Jindřichův Hradec II

140 Kč
/za metr čtvereční / měsíc
Získejte výhodnou HYPOTÉKU Chci hypotéku

Parametry nemovitosti

AdresaU Nádraží, Jindřichův Hradec II
ID15
StavbaCihlová
Stav objektuDobrý
Typ objektuPatrový
Užitná plocha55 m2
Třída energetické náročnostiC - Úsporná
Elektřina230V
TelekomunikaceInternet
DopravaMHD, Autobus
VodaVodovod
Bezbarierový přístup
Parkování

Origo partneři v Jindřichově Hradci

Výkup a prodej starého nábytku

Popis

Pronájem kanceláří

Nabízíme k pronájmu kancelářské prostory v administrativní budově u autobusového nádraží v Jindřichově Hradci.
Areál ČSAD Jindřichův Hradec s.r.o., ulice U Nádraží 694/II.
Kancelář 1: 31,5m2 I.patro
Kancelář 2: 55,1m2 I.patro
Kancelář: 3: 20m2 I.Patro (volné od 8/2026)
Kancelář 4: 22,8m2 / II.patro (volné od 9/2026)
Kancelář 5 + 6: 23m2 + 15m2 II.patro (volné v průběhu 4Q-2026)
Kancelář 7: 15m2 přízemí (volné v průběhu 4Q-2026)
Kancelář 8: 39m2 přízemí (volné v průběhu 4Q-2026)

Cena 140Kč za m2 bez DPH / měsíc

Uvedené nájemné je bez energií

V areálu je dále možnost pronajmutí skladovacích prostor a parkovací plochy .

Součástí areálu je čerpací stanice (nafta+AdBlue) a myčka nákladních a užitkových vozidel, které je možno využít 24/7

Pronájem plochy / parkovacích míst

Nabízíme k pronájmu parkovací plochu pro autobusy, kamiony, nákladní vozidla, případně pro jiné využití v areálu ČSAD v Jindřichově Hradci u autobusového nádraží ( adresa u Nádraží 694/II, Jindřichův Hradec)
Plocha se nachází v oploceném a hlídaném areálu 24/7.

Cena 45Kč/m2 za měsíc

V areálu je dále možnost pronajmutí skladových a kancelářských prostor.

Součástí areálu je čerpací stanice (nafta+AdBlue) a myčka nákladních a užitkových vozidel, které je možné využít 24/7.

Pronájem skladovacích prostor

Nabízíme k pronájmu skladovací prostory v areálu ČSAD v Jindřichově Hradci

Zastavěná plocha budovy je 343 m and sup2; a je možnost pronajmout jednotlivé prostory:

Aktuálně volné prostory:

Místnost 1: 21,7m2
Místnost 2: 11,51m2
Místnost 3: 67 m and sup2;
Objekt se nachází v oploceném areálu.

Cena: 80Kč / měs / bez DPH

Uvedené nájemné je bez energií

V areálu je dále možnost pronajmutí parkovacích a kancelářských prostor.

Součástí areálu je čerpací stanice (nafta+AdBlue) a myčka nákladních a užitkových vozidel, které je možné využít 24/7

Nové kancelářské a komerční prostory v budově přímo na autobusovém nádraží
adresa: Nádražní 203, Jindřichův Hradec

Aktuálně probíhá kompletní rekonstrukce budovy a autobusového nádraží předpoklad dokončení v průběhu 4Q 2026

Volné prostory:

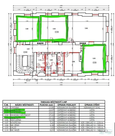
Kiosek č.1.08 (20,32m2) + sklad č.1.07 (20,66m2) viz.příloha, 1NP hledáme vhodného zájemce pro provoz občerstveni and #34;
Kanceláře 3.02 (22,07m2) v 3NP
Kancelář 3.03 (26,83m2) v 3NP
Kancelář 3.05 (25,12 m2) v 3NP
Cena 160Kč za m2 bez DPH / měsíc

Uvedené nájemné je bez energií

Makléř

Máte zájem o tuto nemovistost?

Tímto, v souladu s nařízením Evropského parlamentu a Rady (EU) 2016/679, v platném znění, prohlašuji, že mi je alespoň 16 let a uděluji tak svůj souhlas se zpracováním zadaných údajů (jméno, telefon, e-mail, ip adresa) společnosti B3 Technology, s.r.o., IČ: 07330600, se sídlem Novostavby 126/23, 435 11 Lom (správce dat), za účelem předání dotazu z tohoto formuláře Vámi vybranému inzerentovi a zpětného kontaktování mé osoby. Osobní údaje bude správce zpracovávat manuálně i automaticky přímo prostřednictvím svých zaměstnanců. Informace předané tímto formulářem budou uloženy v databázi správce maximálně po dobu 10 let. Odvolání souhlasu s uložením a zpracováním poskytnutých dat lze e-mailem na info@origo-reality.cz. V případě podezření na neoprávněné použití Vámi poskytnutých údajů máte právo předat podnět k šetření Úřadu pro ochranu osobních údajů. Více informací
Chystáte se prodat nemovitost?
Pomůžeme Vám!

Přihlášení k odběru

Nenechte si ujít nejnovější nabídky pronájmu kanceláří v Jindřichově Hradci.