Pronájem kanceláře, Liberec - Liberec I-Staré Město, Jablonecká, 85 m2

Jablonecká, Liberec (nečleněné město)

24 900 Kč
/za měsíc
Získejte výhodnou HYPOTÉKU Chci hypotéku

Parametry nemovitosti

AdresaJablonecká, Liberec (nečleněné město)
ID265-NP00733
StavbaSmíšená
Stav objektuVelmi dobrý
Patro1. z 4
Typ objektuPatrový
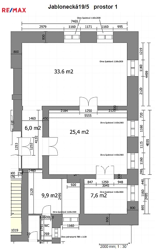
Užitná plocha85 m2
Zastavěná plocha301 m2
Třída energetické náročnostiG - Mimořádně nehospodárná
PlynPlynovod
OdpadVeřejná kanalizace
VodaVodovod
Převod do OV
Parkování

Origo partneři v Liberci

Rekonstrukce

Úklidové služby

Popis

Hledáte reprezentativní kanceláře na viditelném místě v centru města? Nabízíme k pronájmu světlý a vzdušný prostor 85 m² ve zvýšeném přízemí s výhledem na Šaldovo náměstí — ideální pro firmu, pobočku, coworking nebo poradenské centrum.
Proč si vybrat právě tento prostor?
• Perfektní poloha: centrum Liberce, naprosto snadná dostupnost MHD (Šaldovo náměstí) a výborné napojení do okolních ulic. Dvoukřídlý vstup z Jablonecké i Husovy ulice ze které je navíc vjezd na parkovací místo.
• Flexibilní uspořádání: chodba, kuchyňka, WC, dvě prostorné místnosti + menší oddělená kancelář (vstup do ní z prostřední místnosti). Nabízí se zda možnost například zřídit velkou otevřenou pracovní kancelář, reprezentativní zasedací nebo jednací místnost a soukromou kancelář.
• Kompletní elektro i datové rozvody připravené pro okamžité připojení IT vybavení. Domácí telefon a poštovní schránka.
• Bezpečnost a komfort: pohybová čidla v každé místnosti, odblokování před vstupem do chodby
• Částečně bezbariérový přístup.
• Nízké provozní náklady: vytápění a ohřev vody z plynového kotle. Plyn a elektřina se přepisují na nájemce; voda — záloha 400 Kč/měsíc k nájemnému
Parametry a finanční podmínky:
• Plocha: 85 m²
• Nájemné: 24 900 Kč / měsíc
• Záloha na vodu: 400 Kč / měsíc
• Vratná kauce: 2× měsíční nájem
• Dostupné ihned po dohodě
Bonusová lokalita:
• V okolí naleznete restaurace, kavárny a služby vhodné pro obchodní schůzky i po práci
• Výhodné spojení do centra i do příměstských oblastí — snadné pro zaměstnance i klienty
Domluvte si prohlídku a přijďte si představit, jak může fungovat váš nový kancelářský/podnikatelský prostor. Pro více informací a termín prohlídky volejte nebo pište (zanechte prosím preferovaný kontakt a ozveme se co nejdříve). Pronajímající si vyhrazuje právo vybrat nájemce na základě jím zvolených kritérií.

Makléř

Máte zájem o tuto nemovistost?

Tímto, v souladu s nařízením Evropského parlamentu a Rady (EU) 2016/679, v platném znění, prohlašuji, že mi je alespoň 16 let a uděluji tak svůj souhlas se zpracováním zadaných údajů (jméno, telefon, e-mail, ip adresa) společnosti B3 Technology, s.r.o., IČ: 07330600, se sídlem Novostavby 126/23, 435 11 Lom (správce dat), za účelem předání dotazu z tohoto formuláře Vámi vybranému inzerentovi a zpětného kontaktování mé osoby. Osobní údaje bude správce zpracovávat manuálně i automaticky přímo prostřednictvím svých zaměstnanců. Informace předané tímto formulářem budou uloženy v databázi správce maximálně po dobu 10 let. Odvolání souhlasu s uložením a zpracováním poskytnutých dat lze e-mailem na info@origo-reality.cz. V případě podezření na neoprávněné použití Vámi poskytnutých údajů máte právo předat podnět k šetření Úřadu pro ochranu osobních údajů. Více informací
Chystáte se prodat nemovitost?
Pomůžeme Vám!