Pronájem bytu 2+kk, Praha - Dolní Měcholupy, Honzíkova, 40 m2

Honzíkova, Praha, Dolní Měcholupy

21 000 Kč
/za měsíc
náklady na bydlení v textu inzerátu
Získejte výhodnou HYPOTÉKU Chci hypotéku

Parametry bytu

Náklady na bydlení4 900
AdresaHonzíkova, Praha, Dolní Měcholupy
ID0224
StavbaCihlová
Stav objektuNovostavba
Patro4. z 7
VybavenoČástečně
Lokalita objektuCentrum obce
VlastnictvíDružstevní
Užitná plocha40 m2
Podlahová plocha44 m2
Třída energetické náročnostiB - Velmi úsporná
Elektřina230V, 400V
OdpadVeřejná kanalizace
KomunikaceAsfaltová
TelekomunikaceInternet
DopravaDálnice, Silnice, MHD, Autobus
VodaVodovod
Topné tělesoRadiátory
Zdroj topeníCentrální dálkové
Balkon
Garáž
Výtah
Převod do OV
Parkování

Origo partneři v Praze 10

Stěhovací služby

Výkup a prodej starého nábytku

Popis

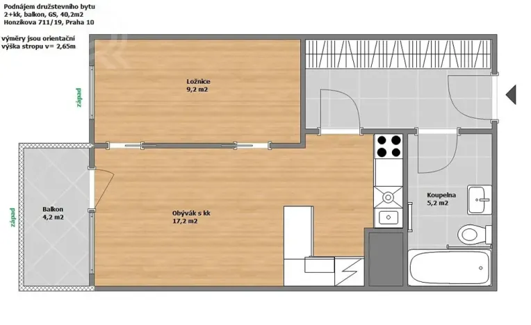
Nabízíme vám k dlouhodobému pronájmu částečně zařízený byt s parkovacím stání a balkonem v developerském projektu Malý Háj.

Byt s dispozicí 2+kk o ploše 40,2m2 se nachází ve 4. nadzemním podlaží (3.patro) Okna i lodžie jsou na západ
Podlahy jsou plovoucí, v předsíni a v koupelně dlažba. V koupelně je vana, WC a umyvadlo se zrcadlem. Je tu dostatečný prostor na umístění pračky a sušičky.
Ve všech místnostech jsou osazená stropní svítidla s možností změny teploty světla (denní, teplá bílá, bílá). Vstupní bezpečnostní dveře.

V předsíni je velká šatní skříň.
Kuchyňská linka disponuje všemi potřebnými spotřebiči: lednice, trouba, mikrovlná trouba, myčka, indukční deska, digestoř a dřez.
Lze využít barový pult se 2 židlemi. Ty budou dodány v následujících dnech, stejně tak posuvné dveře do ložnice. Na oknech jsou vnitřní žaluzie a jsou již připraveny kolejnice na záclony.
Velkou devizou tohoto bytu je balkon (+4,2 m2), kde si za letních večerů užijete posezení.

Kromě bytu bude nájemníkovi k dispozici vyhrazené parkovací stání v garáži domu. Pro obyvatele je navíc připravena velká kolárna s držáky na kola a kočárkárna. Celý dům je na čipový systém.
Nákupní možnosti: LIDL, PENNY, drogerie (Retail park Štěrboholy) nebo pak OC Štěrboholy, Fashion Arena a další.

2 minuty chůze od domu je zastávka autobusu „Kardausova“ (č.173, 229,252), na hlavní ulici pak „Kutnohorská“ (204, 229, 364, 366, noční 903 a 908) směřující převážně na metro =A= Depo Hostivař.

Náklady na bydlení:
nájem 21.000,-Kč / měsíc
parkovací stání +2.000,-Kč/měsíc
zúčtovatelné poplatky (voda, teplo, výtah, apod.) záloha 3.700,- Kč/měsíc/ 2 osoby
elektřina - převod na nájemníka - cca 1.200,-Kč/měsíc
vratná kauce 35.000,- Kč

Dlouhodobý pronájem na min. 1 rok
- Nájemní smlouva na dobu určitou s možností prodloužení (s ohledem na družstevní vlastnictví se zde uzavírá podnájemní smlouva)
- Podnájemní smlouva kopíruje práva nájemní smlouvy, možnost trvalého bydliště/pobytu.
- Povinné uzavření pojištění domácnosti (odpovědnost nájemníka za škody v pronajaté nemovitosti)
- Nájemník musí mluvit česky/slovensky nebo anglicky
- Byt k nastěhování březen/duben 2026

PROHLÍDKY úterý 17.3.2026, 15-19h, pro rezervaci konkrétního času prohlídky je nutné zavolat předem.

Pro více informací a termín prohlídky kontaktujte makléřku.

Makléř

Máte zájem o tento byt?

Tímto, v souladu s nařízením Evropského parlamentu a Rady (EU) 2016/679, v platném znění, prohlašuji, že mi je alespoň 16 let a uděluji tak svůj souhlas se zpracováním zadaných údajů (jméno, telefon, e-mail, ip adresa) společnosti B3 Technology, s.r.o., IČ: 07330600, se sídlem Novostavby 126/23, 435 11 Lom (správce dat), za účelem předání dotazu z tohoto formuláře Vámi vybranému inzerentovi a zpětného kontaktování mé osoby. Osobní údaje bude správce zpracovávat manuálně i automaticky přímo prostřednictvím svých zaměstnanců. Informace předané tímto formulářem budou uloženy v databázi správce maximálně po dobu 10 let. Odvolání souhlasu s uložením a zpracováním poskytnutých dat lze e-mailem na info@origo-reality.cz. V případě podezření na neoprávněné použití Vámi poskytnutých údajů máte právo předat podnět k šetření Úřadu pro ochranu osobních údajů. Více informací
Chystáte se prodat nemovitost?
Pomůžeme Vám!