Prodej rodinného domu, Hnátnice, 82 m2

Hnátnice

4 160 000 Kč
/za nemovitost
Hypotéka od 18 593 Kč /měs. Chci hypotéku

Parametry domu

AdresaHnátnice
ID0426
StavbaCihlová
Stav objektuVelmi dobrý
VybavenoČástečně
Typ objektuPatrový
Druh objektuSamostatný
Lokalita objektuKlidná část obce
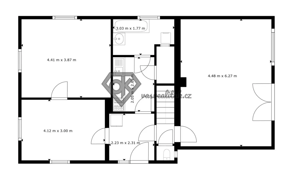
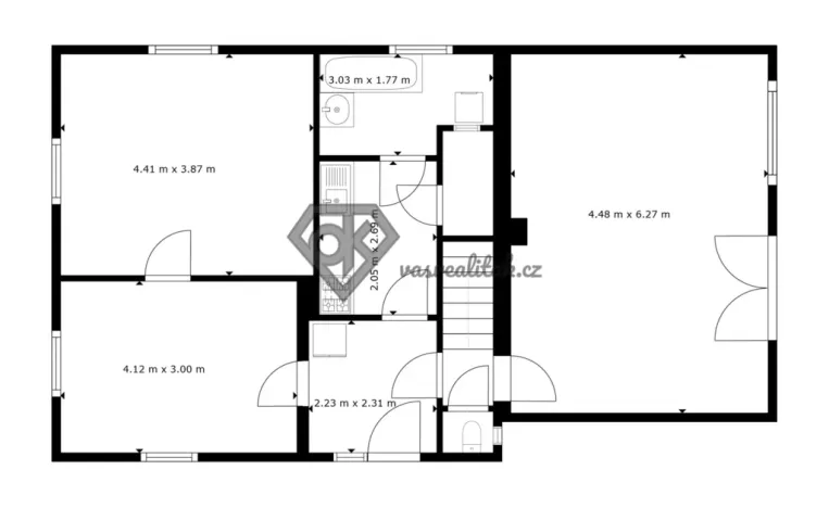
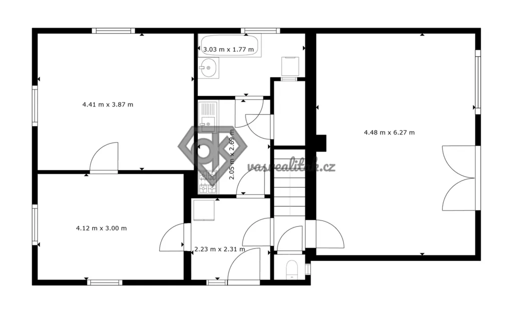
Užitná plocha82 m2
Zastavěná plocha101 m2
Podlahová plocha984 m2
Plocha pozemku984 m2
Plocha zahrady883 m2
Třída energetické náročnostiG - Mimořádně nehospodárná
Elektřina230V, 400V
PlynPlynovod
OdpadVeřejná kanalizace
KomunikaceAsfaltová
DopravaVlak, Silnice, Autobus
VodaVodovod, Studna
Převod do OV

Origo partneři v Hnátnici

Popis

Vítejte v Hnátnici!
Hledáte rodinný dům s pozemkem tak akorát, klidnou atmosférou a možností úprav podle vlastních představ?
Tak tato nabídka, pro Vás může být tou pravou.

Jaká je dispozice domu?
- předsíň
- pokoj s kachlovými kamny
- další pokoj
- kuchyň
- spíž
- koupelna
- toaleta
- dílna, garáž
- podkroví, s potenciálem pro další obytné místnosti

Pár technických údajů?
- užitná plocha domu: 82 m²
- celková plocha pozemku: 984 m²
- prostorná zahrada
– plastová okna
– nová střecha
– vytápění pomocí kachlových kamen a přímotopů
– ohřev vody průtokovým ohřívačem
– na pozemku je také studna s užitkovou vodou
– sítě: elektřina, voda, kanalizace, plyn je přiveden na hranici pozemku (HUP)

Pro koho je dům ideální?
– pro rodinu hledající klidné bydlení s větším pozemkem
– pro ty, kteří hledají dům, který si mohu zařídit přesně podle svých přání a potřeb
– pro milovníky klidu a přírody

O jakou se jedná lokalitu?
Dům se nachází v klidné obci Hnátnice, která leží nedaleko města Ústí nad Orlicí, takže veškerou občanskou vybavenost máte v krátké dojezdové vzdálenosti.
Nabízí příjemné venkovské bydlení s dostatkem soukromí a klidu. V okolí se nachází krásná příroda a množství možností pro procházky, cykloturistiku nebo výlety.
Lokalita je ideální pro ty, kteří hledají klidné bydlení mimo ruch města, ale zároveň chtějí mít město na dosah. Dobrá dostupnost do okolních měst a zároveň příjemné prostředí pro rodinný život

Poznámka:
- uvedené výměry jsou pouze orientační
- v případě více zájemců bude nemovitost prodána nejlepší nabídce a majitel si vyhrazuje právo vybrat kupujícího na základě jim zvolených kritérií
- veškeré zveřejněné údaje obsažené v tomto inzerátu mají pouze informativní charakter a nejsou nabídkou ve smyslu § 1731 nebo § 1732 občanského zákoníku, ani se nejedná o veřejný příslib dle § 1733 občanského zákoníku

Makléř

Máte zájem o tento dům?

Tímto, v souladu s nařízením Evropského parlamentu a Rady (EU) 2016/679, v platném znění, prohlašuji, že mi je alespoň 16 let a uděluji tak svůj souhlas se zpracováním zadaných údajů (jméno, telefon, e-mail, ip adresa) společnosti B3 Technology, s.r.o., IČ: 07330600, se sídlem Novostavby 126/23, 435 11 Lom (správce dat), za účelem předání dotazu z tohoto formuláře Vámi vybranému inzerentovi a zpětného kontaktování mé osoby. Osobní údaje bude správce zpracovávat manuálně i automaticky přímo prostřednictvím svých zaměstnanců. Informace předané tímto formulářem budou uloženy v databázi správce maximálně po dobu 10 let. Odvolání souhlasu s uložením a zpracováním poskytnutých dat lze e-mailem na info@origo-reality.cz. V případě podezření na neoprávněné použití Vámi poskytnutých údajů máte právo předat podnět k šetření Úřadu pro ochranu osobních údajů. Více informací
Chystáte se prodat nemovitost?
Pomůžeme Vám!

Přihlášení k odběru

Nenechte si ujít nejnovější nabídky prodeje rodinných domů v Hnátnici.