Pronájem bytu 3+1, Brno, Tůmova, 89 m2

Tůmova, Brno

29 500 Kč
/za měsíc
+ 3000,- služby / 1 osoba měsíčně
Získejte výhodnou HYPOTÉKU Chci hypotéku

Parametry bytu

AdresaTůmova, Brno
ID26031201
StavbaCihlová
Stav objektuVelmi dobrý
Patro2.
VlastnictvíOsobní
Užitná plocha89 m2
Parkování

Origo partneři v Brně

Popis

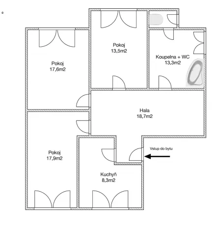
Nabízíme k pronájmu velmi prostorný a světlý byt s parkovacím místem v garáži. Dispozice bytu je 3+1 a celková plocha 89 m². Tento nádherný a prostorný byt se nachází ve 2. nadzemním podlaží bytového domu v jedné z nejvyhledávanějších brněnských lokalit – Masarykově čtvrti, na ulici Tůmova.

Byt zaujme především svou velkorysou dispozicí a příjemnou atmosférou. Dominantou bytu je prostorná a světlá kuchyně vybavená veškerými spotřebiči, která nabízí dostatek prostoru nejen pro vaření, ale i pro pohodlné stolování. Pokoje jsou aktuálně řešeny jako průchozí, nicméně po menší úpravě mohou být plně neprůchozí, což umožňuje flexibilní využití dispozice podle potřeb nájemníků.
Koupelna působí velmi útulně a nabízí příjemný výhled do okolní zeleně.

Velkou výhodou je možnost garážového stání a také možnost využívat zahradu u domu, která nabízí příjemné místo pro posezení, relaxaci či grilování.

Masarykova čtvrť patří mezi nejprestižnější a nejkrásnější rezidenční oblasti Brna. Lokalita je charakteristická množstvím zeleně, vilovou zástavbou a velmi klidnou atmosférou, přesto s výbornou dostupností do centra města. V bezprostřední blízkosti domu se nachází krásný park, hvězdárna, vnitřní i venkovní plavecký bazén a další sportovní i volnočasová zařízení.

V docházkové vzdálenosti najdete také kavárny, restaurace, školy, školky, poštu i další služby potřebné pro pohodlné městské bydlení. Zastávka MHD je vzdálena přibližně 4 minuty chůze. Parkování je bezproblémové také v okolí domu.

Tento byt doporučujeme všem, kteří hledají prostorné městské bydlení v jedinečné lokalitě s atmosférou klidné vilové čtvrti a zároveň s výbornou dostupností do centra.

Pro více informací nebo sjednání prohlídky nás neváhejte kontaktovat.

Makléř

Máte zájem o tento byt?

Tímto, v souladu s nařízením Evropského parlamentu a Rady (EU) 2016/679, v platném znění, prohlašuji, že mi je alespoň 16 let a uděluji tak svůj souhlas se zpracováním zadaných údajů (jméno, telefon, e-mail, ip adresa) společnosti B3 Technology, s.r.o., IČ: 07330600, se sídlem Novostavby 126/23, 435 11 Lom (správce dat), za účelem předání dotazu z tohoto formuláře Vámi vybranému inzerentovi a zpětného kontaktování mé osoby. Osobní údaje bude správce zpracovávat manuálně i automaticky přímo prostřednictvím svých zaměstnanců. Informace předané tímto formulářem budou uloženy v databázi správce maximálně po dobu 10 let. Odvolání souhlasu s uložením a zpracováním poskytnutých dat lze e-mailem na info@origo-reality.cz. V případě podezření na neoprávněné použití Vámi poskytnutých údajů máte právo předat podnět k šetření Úřadu pro ochranu osobních údajů. Více informací
Chystáte se prodat nemovitost?
Pomůžeme Vám!

Přihlášení k odběru

Nenechte si ujít nejnovější nabídky pronájmu bytů 3+1 v Brně.