Prodej pozemku pro bydlení, Kamenice, 783 m2 (ID: 1988138)

Kamenice, Řehořov

2 326 000 Kč
/za nemovitost
Hypotéka od 10 396 Kč /měs. Chci hypotéku

Parametry pozemku

AdresaKamenice, Řehořov
Lokalita objektuOkraj obce
Plocha pozemku783 m2
Elektřina230V, 400V
OdpadVeřejná kanalizace
KomunikaceAsfaltová
TelekomunikaceInternet
DopravaDálnice, Silnice, Autobus
VodaVodovod

Origo partneři v Kamenici

Popis

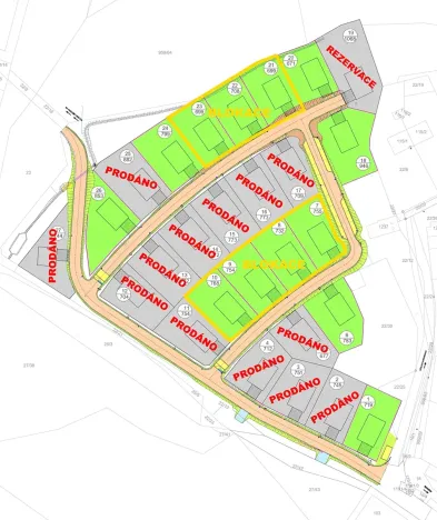
Naše společnost LANDWEALTH CZ s.r.o. vybudovala v Řehořově (Městys Kamenice) 27 jihovýchodně orientovaných stavebních pozemků pro výstavbu rodinných domů s krásným výhledem na Řehořov a okolní krajinu. Na pozemky je přivedena elektřina (400 V), optická síť internetu a přípojky obecního vodovodu a kanalizace. K pozemkům vede nová asfaltová komunikace s veřejným osvětlením.
Jedním z nabízených pozemků je obdélníkový pozemek č. 6 (parc.č. 22/49, k.ú. Řehořov) o výměře 783 m2.
Výstavba rodinného domu není časově omezena! Regulativy - zástavba do max. 1 nadzemního podlaží + obytné podkroví, zastavitelná plocha do 60 %.

Velkým plusem Řehořova je dopravní dostupnost. Dobré spojení je autem i autobusem do Jihlavy (17 km) i do Brna (70 km). Nájezdy na dálnici jsou v obou směrech dosažitelné do 5 minut.
V Řehořově se nachází obchod, pošta, kulturní dům, hřiště na malou kopanou a volný čas, workautové i dětské hřiště.

K nákupu nemovitosti můžete využít výhodnou hypotéku na bydlení od našeho obchodního partnera, který nabízí jednu z nejlepších sazeb na trhu, hypotéku až do 90 % hodnoty nemovitosti, jednoduché a expresní vyřízení. A navíc za Vás uhradíme některé poplatky.
Více informací Vám sdělíme v kanceláři naší společnosti.

Makléř

Máte zájem o tento pozemek?

Tímto, v souladu s nařízením Evropského parlamentu a Rady (EU) 2016/679, v platném znění, prohlašuji, že mi je alespoň 16 let a uděluji tak svůj souhlas se zpracováním zadaných údajů (jméno, telefon, e-mail, ip adresa) společnosti B3 Technology, s.r.o., IČ: 07330600, se sídlem Novostavby 126/23, 435 11 Lom (správce dat), za účelem předání dotazu z tohoto formuláře Vámi vybranému inzerentovi a zpětného kontaktování mé osoby. Osobní údaje bude správce zpracovávat manuálně i automaticky přímo prostřednictvím svých zaměstnanců. Informace předané tímto formulářem budou uloženy v databázi správce maximálně po dobu 10 let. Odvolání souhlasu s uložením a zpracováním poskytnutých dat lze e-mailem na info@origo-reality.cz. V případě podezření na neoprávněné použití Vámi poskytnutých údajů máte právo předat podnět k šetření Úřadu pro ochranu osobních údajů. Více informací
Chystáte se prodat nemovitost?
Pomůžeme Vám!

Přihlášení k odběru

Nenechte si ujít nejnovější nabídky prodeje pozemků pro bydlení v Kamenici (okr. Jihlava).