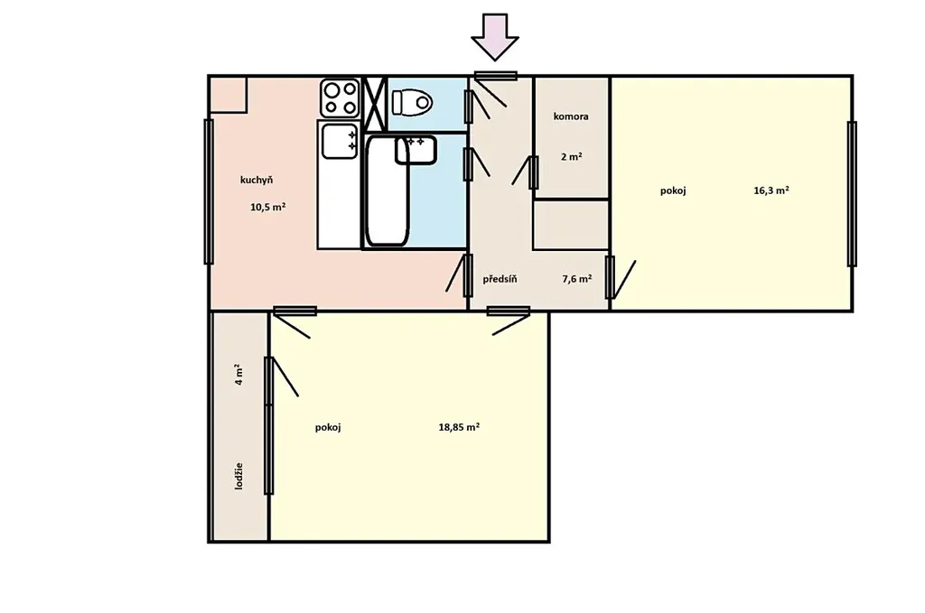
Prodej bytu 2+1, Svitavy, Marie Pujmanové, 58 m2

Marie Pujmanové, Svitavy, Předměstí

2 898 000 Kč
/za nemovitost
provize a veškeré služby a poplatky v ceně
Hypotéka od 12 952 Kč /měs. Chci hypotéku

Parametry bytu

AdresaMarie Pujmanové, Svitavy, Předměstí
ID49
StavbaPanelová
Stav objektuDobrý
Patro3. z 8
VlastnictvíOsobní
Užitná plocha58 m2
Podlahová plocha58 m2
Třída energetické náročnostiD - Méně úsporná
Ukazatel energetické náročnosti76 kWh/m2 za rok
Bezbarierový přístup

Origo partneři v Svitavách

Popis

Nabízíme k prodeji světlý byt (okna na dvě strany) o dispozici 2+1 s lodžií, situovaný ve 3. nadzemním podlaží panelového domu s výtahem na dobrém místě vedle školky, parku a nádraží na sídlišti U nádraží. Byt zaujme především praktickým dispozičním řešením (neprůchozí pokoje) a možností rekonstrukce podle svého vkusu.

Dispozice bytu nabízí samostatnou kuchyň s jídelním koutem, prostorný obývací pokoj i ložnici a praktickou komoru, která je vždy po ruce. Bytové jádro je původní, vhodné k modernizaci. Příjemným benefitem je zasklená lodžie orientovaná na západ, ideální pro odpočinek v odpoledních a podvečerních hodinách.
K bytu náleží také vlastní sklepní kóje, která poskytuje další úložný prostor a v domě je k dispozici ještě několik společných prostor - kolárna, sušárna a další místnost na dočasné uložení např. během rekonstrukce bytu.

Na podlahách je lino s kobercem. Byt je vybaven novými plastovými okny (2024 - trojskla), která přispívají k dobré tepelné i zvukové izolaci. Byt působí světlým a vzdušným dojmem, stromy kolem domu zase v létě vytvoří žádoucí příjemný stín.

V domě je nový výtah, parkování je možné na parkovacích plochách v okolí.

Byt se nachází v místě s dobrou dostupností služeb i centra města, takže může být ideální volbou jak pro vlastní bydlení, tak i jako investiční příležitost. S dotazy či na prohlídku volejte kdykoliv.

Makléř

Máte zájem o tento byt?

Tímto, v souladu s nařízením Evropského parlamentu a Rady (EU) 2016/679, v platném znění, prohlašuji, že mi je alespoň 16 let a uděluji tak svůj souhlas se zpracováním zadaných údajů (jméno, telefon, e-mail, ip adresa) společnosti B3 Technology, s.r.o., IČ: 07330600, se sídlem Novostavby 126/23, 435 11 Lom (správce dat), za účelem předání dotazu z tohoto formuláře Vámi vybranému inzerentovi a zpětného kontaktování mé osoby. Osobní údaje bude správce zpracovávat manuálně i automaticky přímo prostřednictvím svých zaměstnanců. Informace předané tímto formulářem budou uloženy v databázi správce maximálně po dobu 10 let. Odvolání souhlasu s uložením a zpracováním poskytnutých dat lze e-mailem na info@origo-reality.cz. V případě podezření na neoprávněné použití Vámi poskytnutých údajů máte právo předat podnět k šetření Úřadu pro ochranu osobních údajů. Více informací
Chystáte se prodat nemovitost?
Pomůžeme Vám!

Přihlášení k odběru

Nenechte si ujít nejnovější nabídky prodeje bytů 2+1 v Svitavách.