Prodej vícegeneračního domu, Hředle, 398 m2

Hředle

11 900 000 Kč
/za nemovitost
Bez provize, bez zprostředkovatelů.
Hypotéka od 53 186 Kč /měs. Chci hypotéku

Parametry domu

AdresaHředle
StavbaSmíšená
Stav objektuPo rekonstrukci
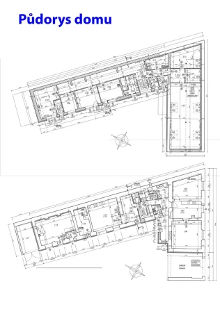
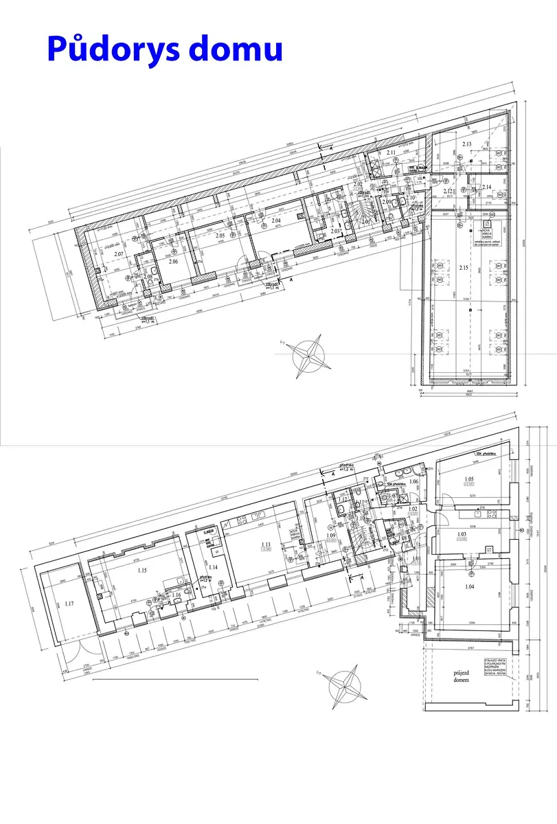
Užitná plocha398 m2
Plocha pozemku1153 m2
Garáž
Sklep
Parkování

Origo partneři v Hředlích

Popis

Rozsáhlá usedlost 400 m² + stodola | pozemek 1153 m² | Hředle u Berouna

Nabízíme k prodeji velkou venkovskou usedlost s obrovským potenciálem v obci Hředle u Berouna, pouhých pár minut od nájezdu na D5 (Praha – Plzeň).

Nemovitost je vhodná jak pro investici, podnikání, vícegenerační bydlení, tak například pro kombinaci bydlení a dílny / skladu.

Základní informace:

- užitná plocha domu: více než 400 m²

- pozemek: 1153 m²

- součástí je velká stodola (dílna / sklad / podnikání)

- část domu již rekonstruována ve vysokém standardu

- na druhou část je platné stavební povolení na rekonstrukci

Investiční potenciál:

Objekt je již částečně pronajímán. Současný měsíční příjem (byty a sklady) - 40 000 Kč / měsíc.

Po rekonstrukci dalších prostor je možné vytvořit další bytové jednotky nebo podnikatelské prostory.

Další možnosti využití:

- vícegenerační bydlení

- menší penzion

- dílna / ateliér / sklad

- kombinace bydlení a podnikání

V projektu rekonstrukce je počítáno například s:

4 pokoji s vlastní koupelnou, společnou jídelnou, krásným prostorem s historickými klenbami vhodným pro kavárnu, obchod nebo showroom.

Lokalita:

Hředle jsou klidná obec v krásné přírodě CHKO Křivoklátsko.
Výborná dostupnost do Prahy i Berouna díky blízkosti dálnice D5.

V případě zájmu nás kontaktujte pro více informací nebo domluvení prohlídky.

Makléř

Máte zájem o tento dům?

Tímto, v souladu s nařízením Evropského parlamentu a Rady (EU) 2016/679, v platném znění, prohlašuji, že mi je alespoň 16 let a uděluji tak svůj souhlas se zpracováním zadaných údajů (jméno, telefon, e-mail, ip adresa) společnosti B3 Technology, s.r.o., IČ: 07330600, se sídlem Novostavby 126/23, 435 11 Lom (správce dat), za účelem předání dotazu z tohoto formuláře Vámi vybranému inzerentovi a zpětného kontaktování mé osoby. Osobní údaje bude správce zpracovávat manuálně i automaticky přímo prostřednictvím svých zaměstnanců. Informace předané tímto formulářem budou uloženy v databázi správce maximálně po dobu 10 let. Odvolání souhlasu s uložením a zpracováním poskytnutých dat lze e-mailem na info@origo-reality.cz. V případě podezření na neoprávněné použití Vámi poskytnutých údajů máte právo předat podnět k šetření Úřadu pro ochranu osobních údajů. Více informací
Chystáte se prodat nemovitost?
Pomůžeme Vám!

Přihlášení k odběru

Nenechte si ujít nejnovější nabídky prodeje vícegeneračních domů v Hředlích (okr. Beroun).