Pronájem obchodního prostoru, Brno, náměstí Svobody, 263 m2

náměstí Svobody, Brno-město

168 000 Kč
/za měsíc
+ energie
Získejte výhodnou HYPOTÉKU Chci hypotéku

Parametry nemovitosti

Adresanáměstí Svobody, Brno-město
StavbaCihlová
Stav objektuVelmi dobrý
Patro1.
Užitná plocha263 m2

Origo partneři v Brně

Popis

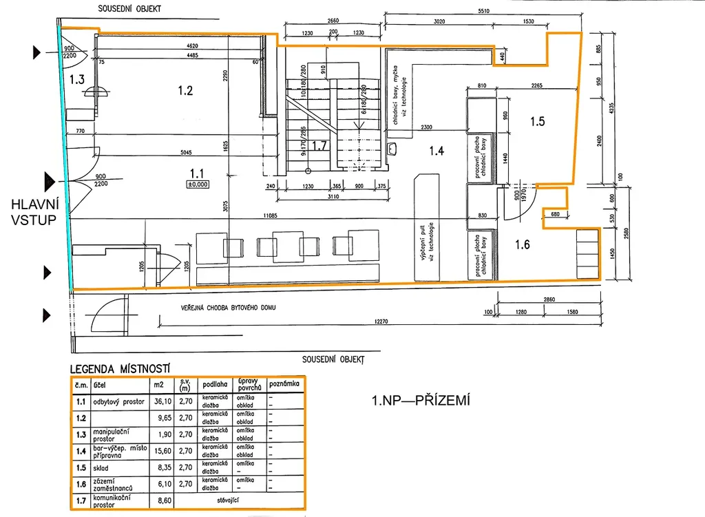
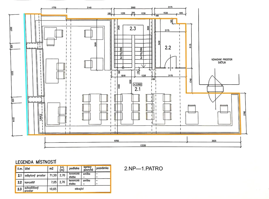
Nabízíme k pronájmu atraktivní obchodní prostor-uzavřený celek, který se nachází v centru Brna na náměstí Svobody.
Prostor je umístěn ve třech patrech, se vstupem, výlohami a okny orientovanými do náměstí.
Jednotlivá patra jsou mezi sebou propojena vnitřním schodištěm.
Celková výměra je 263 m2.
Z toho v přízemí je 85 m2, v 1. patře je 102m2, v suterénu je 76m2.
Hlavní vstup do prostoru je v přízemí.
Odtud se prochází vnitřním schodištěm do 1.patra a také do suterénu.
V prvním patře je převážně nečleněný prostor s velkými okny do náměstí a s jednou oddělenou kanceláří.
V suterénu je technické a sociální zázemí - WC dámské, pánské i pro personál.
Celou dispozici zobrazují schématické půdorysy jednotlivých pater.
Prostor je po předchozím nájemci rozčleněn dle jeho činnosti v gastro provozu.
V případě pronájmu k jiné činnosti si lze prostor upravit podle potřeby a dohody s pronajímatelem.
Dlouhodobý nájem je možný. Počátek nájmu je dohodou.
Nájemné za celý prostor je 168.000,-Kč +DPH.
Kromě nájemného se budou hradit energie a služby podle provozu.
Část služeb (voda a společné služby) se bude hradit pronajímateli současně s nájmem, část se bude přepisovat na nájemce (elektřina, plyn).
Standardní platební podmínky.
V případě zájmu o informace nebo o prohlídku, volejte prosím na tel.číslo uvedené v inzerátu.
Volat můžete i večer nebo o víkendu.

Makléř

Máte zájem o tuto nemovistost?

Tímto, v souladu s nařízením Evropského parlamentu a Rady (EU) 2016/679, v platném znění, prohlašuji, že mi je alespoň 16 let a uděluji tak svůj souhlas se zpracováním zadaných údajů (jméno, telefon, e-mail, ip adresa) společnosti B3 Technology, s.r.o., IČ: 07330600, se sídlem Novostavby 126/23, 435 11 Lom (správce dat), za účelem předání dotazu z tohoto formuláře Vámi vybranému inzerentovi a zpětného kontaktování mé osoby. Osobní údaje bude správce zpracovávat manuálně i automaticky přímo prostřednictvím svých zaměstnanců. Informace předané tímto formulářem budou uloženy v databázi správce maximálně po dobu 10 let. Odvolání souhlasu s uložením a zpracováním poskytnutých dat lze e-mailem na info@origo-reality.cz. V případě podezření na neoprávněné použití Vámi poskytnutých údajů máte právo předat podnět k šetření Úřadu pro ochranu osobních údajů. Více informací
Chystáte se prodat nemovitost?
Pomůžeme Vám!

Přihlášení k odběru

Nenechte si ujít nejnovější nabídky pronájmu obchodních prostor v Brně.