Pronájem kanceláře, Praha - Dejvice, Generála Píky, 620 m2

Generála Píky, Praha, Dejvice

Cena na vyžádání
/za měsíc
Získejte výhodnou HYPOTÉKU Chci hypotéku

Parametry nemovitosti

AdresaGenerála Píky, Praha, Dejvice
StavbaSkeletová
Stav objektuNovostavba
Patro4.
Užitná plocha620 m2
Garáž
Parkování

Origo partneři v Praze 6

Stěhovací služby

Výkup a prodej starého nábytku

Popis

Nabízíme do podnájmu plně vybavený kancelářský prostor s moderním interiérem. Celková velikost jednotky je 620 m2 a nachází se ve 4NP kancelářské budovy Telehouse na Dejvické.

Prostory se nabízí do podnájmu ihned do 01.02.2028 s možností dalšího prodloužení.

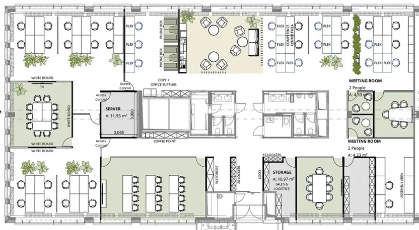
Kancelářské prostory jsou rozděleny na menší celky openspace, menší i větší meetingové místnosti a menší konferenční centrum. Součástí interiéru je prostorná designová kuchyňka. Prostor se nabízí s nábytkem (po domluvě). Přikládáme plánek celého prostoru a fotografie aktuálního stavu.

Budova Telehouse nabízí vysoce kvalitní kanceláře s výbornou dostupností do centra města i na mezinárodní letiště. Telehouse má sofistikovanou architekturu a díky modernímu technickému vybavení dosahuje i certifikátu BREEAM Very Good. Vše podtrhuje vynikající lokalita poblíž metra A – Dejvická a množství tramvajových spojů.

Parking 110 EUR/místo/měs. + DPH. Zároveň je možné bezpečné parkování kol pro nadšené cyklisty.

Domluvte si prohlídku!

Makléř

Máte zájem o tuto nemovistost?

Tímto, v souladu s nařízením Evropského parlamentu a Rady (EU) 2016/679, v platném znění, prohlašuji, že mi je alespoň 16 let a uděluji tak svůj souhlas se zpracováním zadaných údajů (jméno, telefon, e-mail, ip adresa) společnosti B3 Technology, s.r.o., IČ: 07330600, se sídlem Novostavby 126/23, 435 11 Lom (správce dat), za účelem předání dotazu z tohoto formuláře Vámi vybranému inzerentovi a zpětného kontaktování mé osoby. Osobní údaje bude správce zpracovávat manuálně i automaticky přímo prostřednictvím svých zaměstnanců. Informace předané tímto formulářem budou uloženy v databázi správce maximálně po dobu 10 let. Odvolání souhlasu s uložením a zpracováním poskytnutých dat lze e-mailem na info@origo-reality.cz. V případě podezření na neoprávněné použití Vámi poskytnutých údajů máte právo předat podnět k šetření Úřadu pro ochranu osobních údajů. Více informací
Chystáte se prodat nemovitost?
Pomůžeme Vám!

Přihlášení k odběru

Nenechte si ujít nejnovější nabídky pronájmu kanceláří v Praze 6.