Prodej pozemku, Častolovice, Na Skalce, 251 m2

Na Skalce, Častolovice

1 195 000 Kč

včetně provize RK
Hypotéka od 5 341 Kč /měs. Chci hypotéku

Parametry pozemku

AdresaNa Skalce, Častolovice
ID0063
Lokalita objektuCentrum obce
Plocha pozemku251 m2

Origo partneři v Častolovicích

Popis

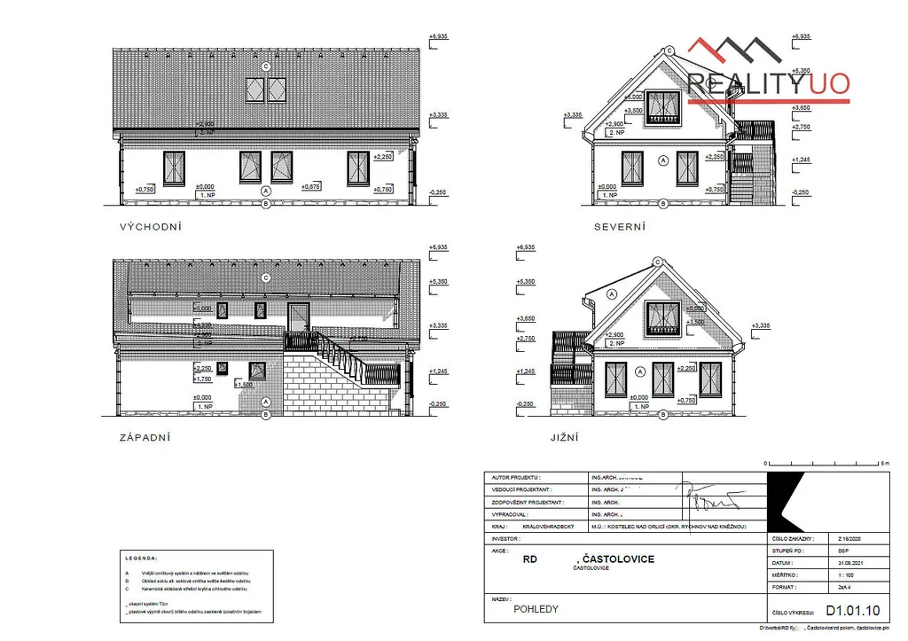
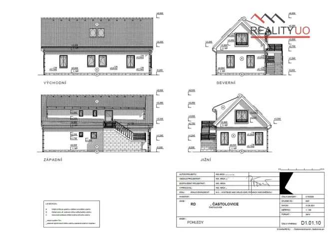
Nabízíme k prodeji stavební pozemek připravený k okamžité realizaci dvoupodlažního rodinného domu. Zapomeňte na roky vyřizování dokumentace – zde je vše hotové.

Stav připravenosti: Na pozemku jsou hotové základy po původní stavbě, stačí položit rozvody a betonovou desku.

Inženýrské sítě: Obecní vodovod, kanalizace i elektřina (sloup ČEZ) jsou přímo na pozemku a připraveny k napojení.

Projekt v ceně: Projektová dokumentace na 2-podlažní dům, schválená památkáři se všemi povoleními.

Bonusy na pozemku: Plechový sklad na materiál, zásoba kamene a starých cihel na stylové oplocení/záhony, břidlicový obklad, hranoly a další materiál využitelný při stavbě.

Doporučení: Pokud máte v plánu žádat o dotace "Oprav dům po Babičce", nečekejte na červen. Od dubna vyhledejte certifikovaného poradce (seznam bude na webu novazelenausporam. cz), aby vám připravil renovační pas. Bez něj se v nové vlně dotací pravděpodobně nepohnete.

Máte za sebou tu nejúnavnější část – „papírovou válku“ s úřady a památkáři, a k tomu připravenou infrastrukturu.
Tato nabídka šetří minimálně 2 roky vašeho času, který byste jinak strávili projektováním a úředním procesem.

Makléř

Máte zájem o tento pozemek?

Tímto, v souladu s nařízením Evropského parlamentu a Rady (EU) 2016/679, v platném znění, prohlašuji, že mi je alespoň 16 let a uděluji tak svůj souhlas se zpracováním zadaných údajů (jméno, telefon, e-mail, ip adresa) společnosti B3 Technology, s.r.o., IČ: 07330600, se sídlem Novostavby 126/23, 435 11 Lom (správce dat), za účelem předání dotazu z tohoto formuláře Vámi vybranému inzerentovi a zpětného kontaktování mé osoby. Osobní údaje bude správce zpracovávat manuálně i automaticky přímo prostřednictvím svých zaměstnanců. Informace předané tímto formulářem budou uloženy v databázi správce maximálně po dobu 10 let. Odvolání souhlasu s uložením a zpracováním poskytnutých dat lze e-mailem na info@origo-reality.cz. V případě podezření na neoprávněné použití Vámi poskytnutých údajů máte právo předat podnět k šetření Úřadu pro ochranu osobních údajů. Více informací
Chystáte se prodat nemovitost?
Pomůžeme Vám!

Přihlášení k odběru

Nenechte si ujít nejnovější nabídky prodeje pozemků v Častolovicích.

Podobné nabídky