Remax Monarcha

Pronájem kanceláře, Olomouc, Palackého, 155 m2

Palackého, Olomouc

49 000 Kč
/za měsíc
bez provize RK, k nájemnému bude účtováno DPH, + 15 000,-Kč/měs - zálohy za komplexní služby a energie, včetně právního servisu
Získejte výhodnou HYPOTÉKU Chci hypotéku

Parametry nemovitosti

AdresaPalackého, Olomouc
ID03177
StavbaCihlová
Stav objektuNovostavba
Patro1. z 2
VybavenoNe
Typ objektuPatrový
Druh objektuRohový
Lokalita objektuCentrum obce
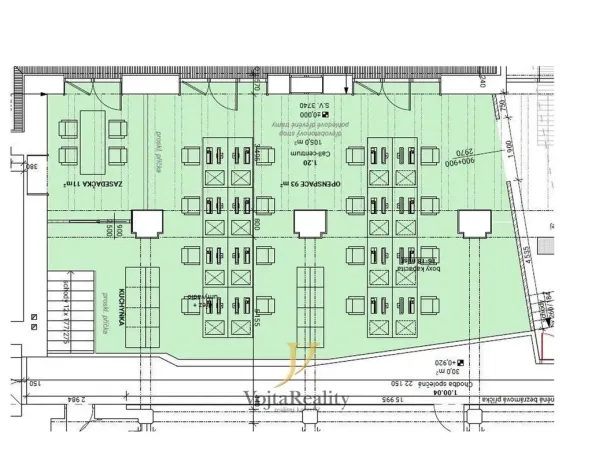
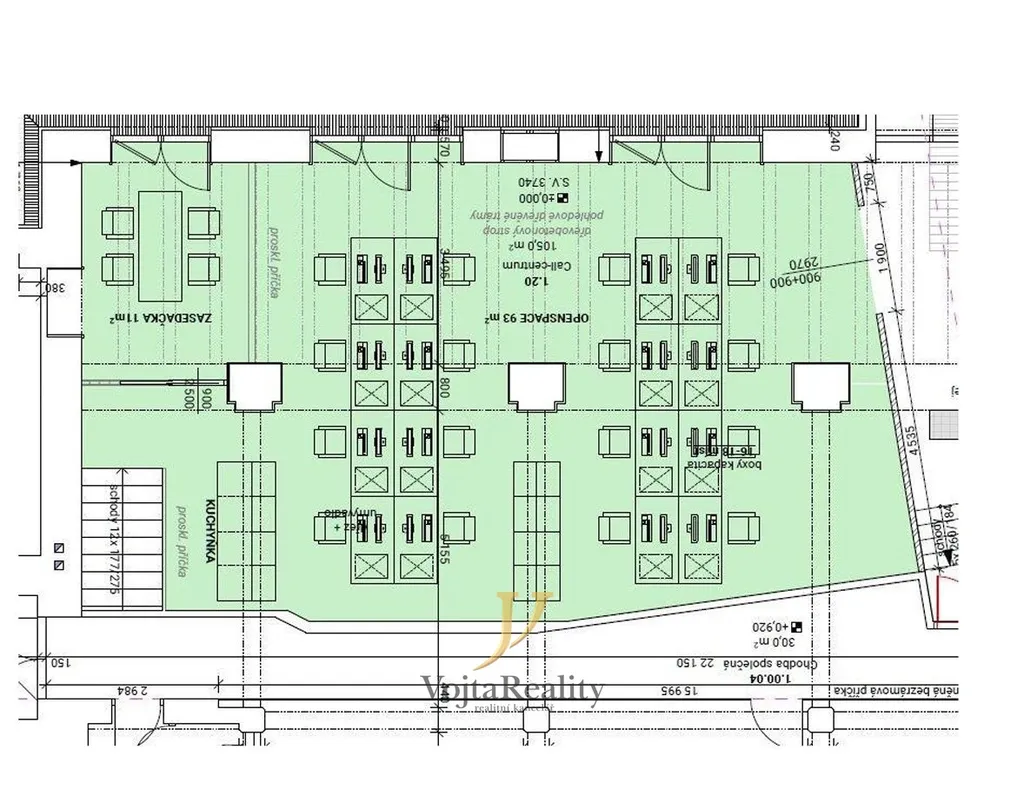
Užitná plocha155 m2
Elektřina230V, 400V
PlynPlynovod
OdpadVeřejná kanalizace
TopeníÚstřední plynové
KomunikaceBetonová, Dlážděná, Asfaltová
TelekomunikaceTelefon, Internet, Kabelová televize, Kabelové rozvody, Ostatní
DopravaVlak, Dálnice, Silnice, MHD, Autobus
VodaVodovod
Výtah
Bezbarierový přístup

Origo partneři v Olomouci

Popis

Vážení klienti.

Dovolujeme si Vám nabídnou originálně řešené komerční prostory v blízkosti centra Olomouce, v Palackého ulici, v DOMĚ U PARKU.

Jednotka je vhodná pro umístění vysoce reprezentativního pracoviště administrativy, projekční kanceláře, ateliéru, studia atd.

Prostory se nachází ve vnitřním traktu polyfunkční stavby DŮM U PARKU. Prostory jsou přístupné, jak z hlavní ulice hlavním vchodem, taktéž i prostřednictvím prosklených portálů v jednotce.

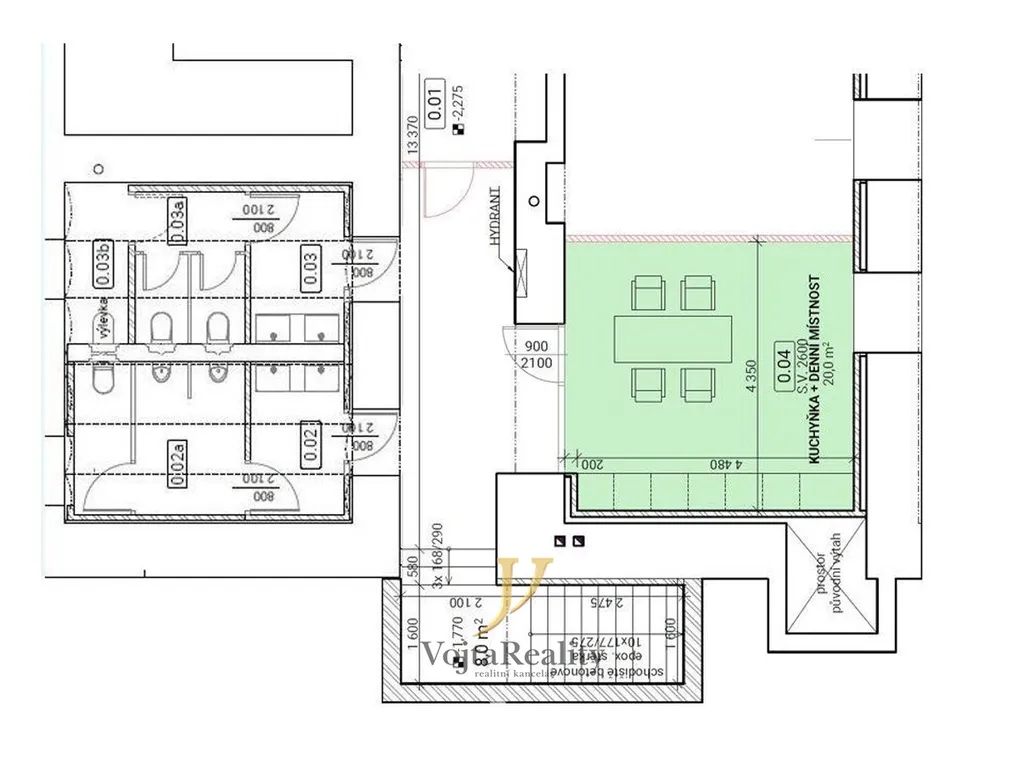
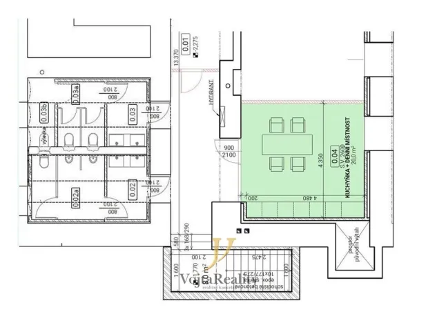
Jednotka je koncipována jako open-space s jednou oddělenou místností, jakožto kanceláří pro management subjektu v I. NP. Hygienické zázemí včetně denní místnosti a skladovací jednotky je umístěno v I.PP.

Prostory jsou vybaveny tlumící podlahovou krytinou, okna a portály osazena troj-skelným systémem.

Služby, jenž jsou součástí pronájmu, jsou mmjn. i zajištění přístupu 24/7 prostřednictvím čipového systému, elektronické napojení na PCO, kamerový systém, možnost využívání společenského sálu, komplexní správa budovy vlastníkem.

V objektu sídlí řada renomovaných společností s širokým záběrem podnikatelských oborů.

DŮM U PARKU sídlí na strategicky výhodném místě, v blízkosti městských parků a centra města. Díky své poloze jsou v bezprostřední blízkosti další doplňující služby, které zvyšují atraktivitu předmětného sídla.

Parkování lze zajistit po dohodě s vlastníkem budovy ve vnitrobloku.

Cenová nabídka platí při uzavření smlouvy o pronájmu v době trvání tří let.
Provize RK NENÍ v tomto případě účtována.
Vratná kauce činí dvě úhrady nájemného vč. DPH.

V případě zájmu o pronájem prosím kontaktujte makléře.

Makléř

Máte zájem o tuto nemovistost?

Tímto, v souladu s nařízením Evropského parlamentu a Rady (EU) 2016/679, v platném znění, prohlašuji, že mi je alespoň 16 let a uděluji tak svůj souhlas se zpracováním zadaných údajů (jméno, telefon, e-mail, ip adresa) společnosti B3 Technology, s.r.o., IČ: 07330600, se sídlem Novostavby 126/23, 435 11 Lom (správce dat), za účelem předání dotazu z tohoto formuláře Vámi vybranému inzerentovi a zpětného kontaktování mé osoby. Osobní údaje bude správce zpracovávat manuálně i automaticky přímo prostřednictvím svých zaměstnanců. Informace předané tímto formulářem budou uloženy v databázi správce maximálně po dobu 10 let. Odvolání souhlasu s uložením a zpracováním poskytnutých dat lze e-mailem na info@origo-reality.cz. V případě podezření na neoprávněné použití Vámi poskytnutých údajů máte právo předat podnět k šetření Úřadu pro ochranu osobních údajů. Více informací
Chystáte se prodat nemovitost?
Pomůžeme Vám!

Přihlášení k odběru

Nenechte si ujít nejnovější nabídky pronájmu kanceláří v Olomouci.