Pronájem restaurace, Batelov, Jihlavská, 37 m2

Jihlavská, Batelov

5 500 Kč
/za měsíc
plus zálohy za služby
Získejte výhodnou HYPOTÉKU Chci hypotéku

Parametry nemovitosti

AdresaJihlavská, Batelov
ID935732
StavbaCihlová
Stav objektuVelmi dobrý
VybavenoNe
Lokalita objektuKlidná část obce
VlastnictvíOsobní
Užitná plocha37 m2
Plocha pozemku2733 m2

Origo partneři v Batelově

Popis

Nabízíme k pronájmu nově rekonstruovaný kiosek na čerpací stanici v Batelově.

Objekt o celkové výměře 37 m² nabízí užitnou plochu přibližně 25 m² a je ideální pro provoz bistra, kavárenského okénka, prodeje čerstvého občerstvení, kávy nebo základních potravin.

Díky čerstvé kolaudaci pro prodej tepelně zpracovaného jídla je prostor připraven k okamžitému zahájení gastro provozu.

Kiosek je vybaven klimatizací a vlastním sociálním zařízením. Interiér je připraven k dokončení dle představ budoucího nájemce, takže si můžete provoz přizpůsobit přesně podle svého konceptu.

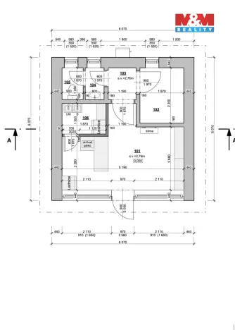
Dispozice prostoru:

provozní místnost: 14,3 m²

elektrorozvodna: 4,4 m²

sklad potravin: 2,43 m²

chodba, předsíň a WC: cca 3,9 m²

Výhodou je umístění přímo u čerpací stanice, které zajišťuje stálý pohyb zákazníků a skvělý potenciál pro gastro podnikání.

Pro více informací nebo sjednání prohlídky mě neváhejte kontaktovat.

Makléř

Máte zájem o tuto nemovistost?

Tímto, v souladu s nařízením Evropského parlamentu a Rady (EU) 2016/679, v platném znění, prohlašuji, že mi je alespoň 16 let a uděluji tak svůj souhlas se zpracováním zadaných údajů (jméno, telefon, e-mail, ip adresa) společnosti B3 Technology, s.r.o., IČ: 07330600, se sídlem Novostavby 126/23, 435 11 Lom (správce dat), za účelem předání dotazu z tohoto formuláře Vámi vybranému inzerentovi a zpětného kontaktování mé osoby. Osobní údaje bude správce zpracovávat manuálně i automaticky přímo prostřednictvím svých zaměstnanců. Informace předané tímto formulářem budou uloženy v databázi správce maximálně po dobu 10 let. Odvolání souhlasu s uložením a zpracováním poskytnutých dat lze e-mailem na info@origo-reality.cz. V případě podezření na neoprávněné použití Vámi poskytnutých údajů máte právo předat podnět k šetření Úřadu pro ochranu osobních údajů. Více informací
Chystáte se prodat nemovitost?
Pomůžeme Vám!

Přihlášení k odběru

Nenechte si ujít nejnovější nabídky pronájmu restaurací v Batelově.