Pronájem obchodního prostoru, Cheb, 26. dubna, 115 m2 (ID: 1985282)

26. dubna, Cheb

30 000 Kč
/za měsíc
+ energie, kauce a poplatek RK
Získejte výhodnou HYPOTÉKU Chci hypotéku

Parametry nemovitosti

Adresa26. dubna, Cheb
ID5714
StavbaCihlová
Stav objektuVelmi dobrý
Patro1. z 2
Lokalita objektuCentrum obce
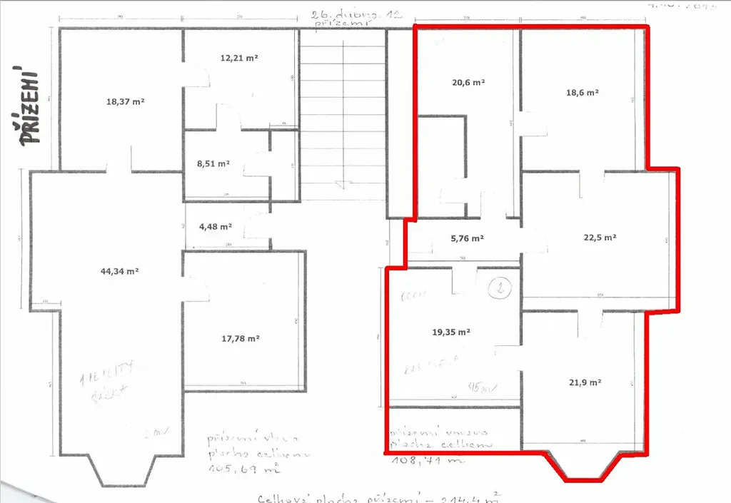
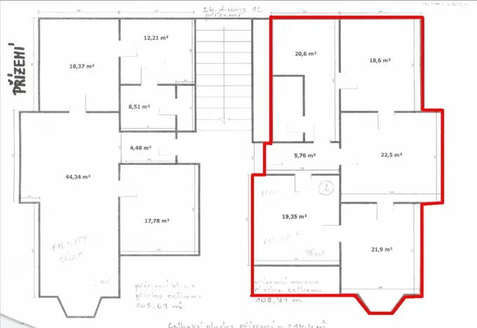
Užitná plocha115 m2
Třída energetické náročnostiG - Mimořádně nehospodárná
Elektřina230V, 400V
PlynPlynovod
OdpadVeřejná kanalizace
KomunikaceAsfaltová
TelekomunikaceInternet
DopravaVlak, Silnice, MHD, Autobus
VodaVodovod
Topné tělesoRadiátory
Zdroj topeníPlynový kotel
Zdroj teplé vodyPlynový kotel
Bezbarierový přístup

Origo partneři v Chebu

Pojištění a finance

Popis

Pronájem – komerční prostory v centru Chebu, ul. 26. dubna

Nabízíme k pronájmu atraktivní nebytový prostor o užitné ploše 115 m² v přízemí domu (1. NP) s vlastním samostatným vstupem. Jedná se o velmi dobře dostupnou a viditelnou lokalitu v samém centru Chebu, ideální pro širokou škálu podnikatelských aktivit.

Dispozice a stav prostoru

Prostor tvoří:

4 prostorné místnosti (možnost stavebních úprav či propojení podle potřeb nájemce),
chodba,
sklad,
kuchyňka,
sociální zázemí (toalety).

Prostory jsou aktuálně ve stavu probíhající rekonstrukce – výsledná podoba bude dokončena dle přání nájemce, což poskytuje výjimečnou flexibilitu při přípravě na konkrétní typ provozu.

Technické informace

Centrální plynové vytápění včetně ohřevu teplé vody.
Možnost pronájmu celku i jednotlivých částí.
Možnost parkování před domem

Vhodné využití

Díky poloze v centru města jsou prostory vhodné zejména pro:

obchod,
služby,
kavárnu,
ordinaci či jiné zdravotnické zařízení,
sportovní nebo relaxační studio,
a mnoho dalších podnikatelských záměrů.

Prostor nabízí výbornou dostupnost, dostatek světla i možnost plného přizpůsobení vašim podnikatelským potřebám.

Nájem: 30.000 Kč/měsíc.

Energie: 7.000 Kč/měsíc

Kauce: 60.000 Kč, poplatek RK: 30.000 Kč + DPH.

Bez PENB – energ. tř. „G“.

Makléř

Máte zájem o tuto nemovistost?

Tímto, v souladu s nařízením Evropského parlamentu a Rady (EU) 2016/679, v platném znění, prohlašuji, že mi je alespoň 16 let a uděluji tak svůj souhlas se zpracováním zadaných údajů (jméno, telefon, e-mail, ip adresa) společnosti B3 Technology, s.r.o., IČ: 07330600, se sídlem Novostavby 126/23, 435 11 Lom (správce dat), za účelem předání dotazu z tohoto formuláře Vámi vybranému inzerentovi a zpětného kontaktování mé osoby. Osobní údaje bude správce zpracovávat manuálně i automaticky přímo prostřednictvím svých zaměstnanců. Informace předané tímto formulářem budou uloženy v databázi správce maximálně po dobu 10 let. Odvolání souhlasu s uložením a zpracováním poskytnutých dat lze e-mailem na info@origo-reality.cz. V případě podezření na neoprávněné použití Vámi poskytnutých údajů máte právo předat podnět k šetření Úřadu pro ochranu osobních údajů. Více informací
Chystáte se prodat nemovitost?
Pomůžeme Vám!
Theleadway banner

Přihlášení k odběru

Nenechte si ujít nejnovější nabídky pronájmu obchodních prostor v Chebu.