Prodej rodinného domu, Těrlicko, Stodolní, 125 m2 (ID: 1983824)

Stodolní, Těrlicko

8 850 000 Kč
/za nemovitost
Hypotéka od 39 554 Kč /měs. Chci hypotéku

Parametry domu

AdresaStodolní, Těrlicko
ID13
StavbaCihlová
Stav objektuNovostavba
Druh objektuSamostatný
Lokalita objektuKlidná část obce
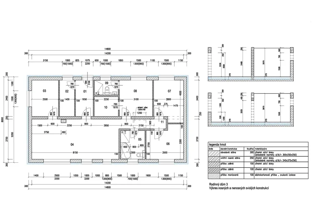
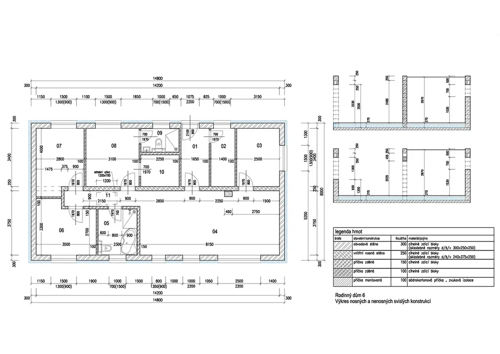
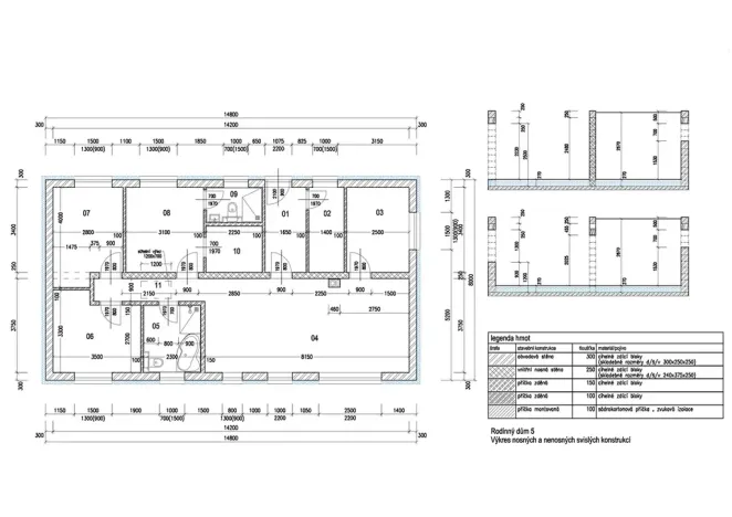
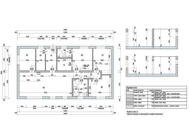
Užitná plocha125 m2
Zastavěná plocha170 m2
Podlahová plocha100 m2
Plocha pozemku823 m2
Třída energetické náročnostiB - Velmi úsporná
Ukazatel energetické náročnosti96 kWh/m2 za rok
Elektřina230V, 400V
OdpadČOV pro celý objekt
KomunikaceZpevněná
VodaVodovod
Zdroj topeníTepelné čerpadlo
Zdroj teplé vodyTepelné čerpadlo
Bezbarierový přístup
Parkování

Origo partneři v Těrlicku

Popis

Moderní ECO novostavby v Těrlicku – Váš nový domov s duší přírody

Hledáte domov, který spojuje moderní design, ekologické technologie a prostor pro skutečný život? V malebné obci Těrlicko v blízkostí Těrlické přehrady, vznikají jedinečné novostavby o dispozici 5kk a užitné ploše 125 m², které budou připraveny k nastěhování v 2. čtvrtletí 2026. Každý dům stojí na slunném pozemku o výměře 813 a 823 m², s kompletním oplocením, zpevněnými plochami a parkováním pro více vozů.

Co dělá tyto domy výjimečnými:

Energeticky úsporný standard s šestikomorovými okny a izolačními trojskly

Tepelné čerpadlo DAIKIN 9kW pro vytápění i podlahové topení

Klimatizace DAIKIN Sensira s WiFi ovládáním pro komfort v každém ročním období

Příprava pro venkovní žaluzie a fotovoltaiku – budoucnost bez kompromisů

V rámci standardu je dům vybaven retenční nádrží s technologií umožňující využití dešťové vody pro splachování WC. Tento systém přináší ekologický provoz, nižší náklady na vodné a stočné a vyšší soběstačnost domácnosti.

Komín Schiedel pro případné napojení krbu – teplo domova v jeho pravém smyslu

Vlastní přístupová komunikace a prostorná terasa s francouzským oknem

Promyšlený interiér pro každodenní pohodlí:

Dvě koupelny, šatna v hlavní ložnici, výklenky pro vestavěné skříně

Flexibilní místnost vedle obývací části – ideální jako pracovna, pokoj nebo kuchyň

Otevřený strop v obýváku a přímý vstup na terasu – vzdušnost a světlo

Půda s 20 m² úložného prostoru

Dvě varianty provedení podle vašich představ:

1️⃣ Kompletní - zkolaudovaný a plně dokončený dům. Cena: 8 850 000 Kč
2️⃣ Premium - kompletně dokončený dům + přístřešek pro 2 vozy + krytý vstup.
Cena: 9 150 000 Kč


Domy jsou napojeny na obecní vodovod, odpadní vody řešeny ČOV. V případě zájmu o financování vám rádi pomohou naše hypoteční specialistky.

Makléř

Máte zájem o tento dům?

Tímto, v souladu s nařízením Evropského parlamentu a Rady (EU) 2016/679, v platném znění, prohlašuji, že mi je alespoň 16 let a uděluji tak svůj souhlas se zpracováním zadaných údajů (jméno, telefon, e-mail, ip adresa) společnosti B3 Technology, s.r.o., IČ: 07330600, se sídlem Novostavby 126/23, 435 11 Lom (správce dat), za účelem předání dotazu z tohoto formuláře Vámi vybranému inzerentovi a zpětného kontaktování mé osoby. Osobní údaje bude správce zpracovávat manuálně i automaticky přímo prostřednictvím svých zaměstnanců. Informace předané tímto formulářem budou uloženy v databázi správce maximálně po dobu 10 let. Odvolání souhlasu s uložením a zpracováním poskytnutých dat lze e-mailem na info@origo-reality.cz. V případě podezření na neoprávněné použití Vámi poskytnutých údajů máte právo předat podnět k šetření Úřadu pro ochranu osobních údajů. Více informací
Chystáte se prodat nemovitost?
Pomůžeme Vám!

Přihlášení k odběru

Nenechte si ujít nejnovější nabídky prodeje rodinných domů v Těrlicku.