Prodej rodinného domu, Vidice, 300 m2 (ID: 1983671)

Vidice, Karlov t. Doubrava

3 990 000 Kč
/za nemovitost
Hypotéka od 17 833 Kč /měs. Chci hypotéku

Parametry domu

AdresaVidice, Karlov t. Doubrava
IDN116657
StavbaCihlová
Stav objektuDobrý
VybavenoNe
Druh objektuSamostatný
Lokalita objektuOkraj obce
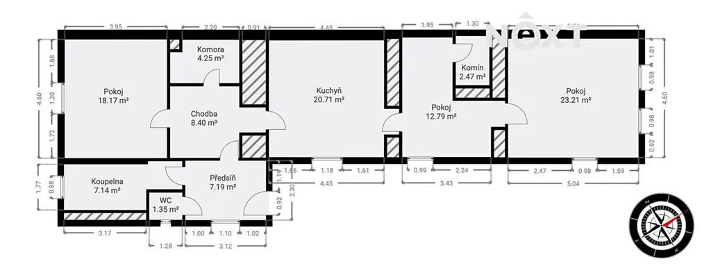
Užitná plocha300 m2
Zastavěná plocha275 m2
Plocha pozemku1488 m2
Třída energetické náročnostiG - Mimořádně nehospodárná
Elektřina230V, 400V
OdpadVeřejná kanalizace, Septik
KomunikaceAsfaltová
DopravaSilnice, Autobus
VodaVodovod
Topné tělesoKrbová kamna
Bezbarierový přístup

Origo partneři v Vidicích

Popis

Pozastaveno do jara

Pokud hledáte klid, možnost chovu drobného zvířectva a také spousty nadměrných věcí, zahajujeme prodej právě takového domu se zahradou určenou k další možné výstavbě, pár minut jízdy od Kolína, v obci Karlov T.Doubrava.

Orientační dispozice obytné části dle fotoprezentace + velmi rozměrná, takřka téměř vyklizená, kamenná stodola se dvěma podlažími.

IS: elektřina 230/400, kanalizace a voda připojitelné bez problému. Vytápění zajišťují z majoritní části krbová kamna.

Zastavěná plocha a nádvoří 888 m2 (reálně zastavěno 275 m2), zahrada 600 m2

Nemovitost je bez jakéhokoliv omezení či zástavního práva.

Karlov je součástí obce Vidice, v ní se nachází škola, školka, Veškerá občanská vybavenost ideálně Kolín či Kutná Hora cca 15min jízdy od domu.

Zdarma Vám zajistíme nejlevnější hypoteční úvěr na trhu.

Doporučuji si zajistit prohlídku. Pro komunikaci uvádějte evidenční číslo zakázky N116657.

Makléř

Máte zájem o tento dům?

Tímto, v souladu s nařízením Evropského parlamentu a Rady (EU) 2016/679, v platném znění, prohlašuji, že mi je alespoň 16 let a uděluji tak svůj souhlas se zpracováním zadaných údajů (jméno, telefon, e-mail, ip adresa) společnosti B3 Technology, s.r.o., IČ: 07330600, se sídlem Novostavby 126/23, 435 11 Lom (správce dat), za účelem předání dotazu z tohoto formuláře Vámi vybranému inzerentovi a zpětného kontaktování mé osoby. Osobní údaje bude správce zpracovávat manuálně i automaticky přímo prostřednictvím svých zaměstnanců. Informace předané tímto formulářem budou uloženy v databázi správce maximálně po dobu 10 let. Odvolání souhlasu s uložením a zpracováním poskytnutých dat lze e-mailem na info@origo-reality.cz. V případě podezření na neoprávněné použití Vámi poskytnutých údajů máte právo předat podnět k šetření Úřadu pro ochranu osobních údajů. Více informací
Chystáte se prodat nemovitost?
Pomůžeme Vám!

Přihlášení k odběru

Nenechte si ujít nejnovější nabídky prodeje rodinných domů v Vidicích (okr. Kutná Hora).