Pronájem obchodního prostoru, Praha - Holešovice, Ortenovo náměstí, 150 m2

Ortenovo náměstí, Praha 7 - Holešovice

69 900 Kč
/za měsíc
měsíční poplatky 5 000 Kč
Získejte výhodnou HYPOTÉKU Chci hypotéku

Parametry nemovitosti

AdresaOrtenovo náměstí, Praha 7 - Holešovice
IDJ002610
Lokalita objektuCentrum obce
VlastnictvíOsobní
Užitná plocha150 m2
Třída energetické náročnostiC - Úsporná

Origo partneři v Praze 7

Stěhovací služby

Výkup a prodej starého nábytku

Popis

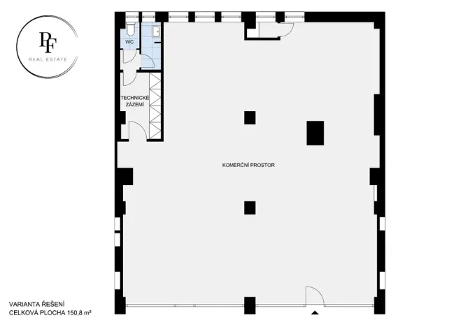
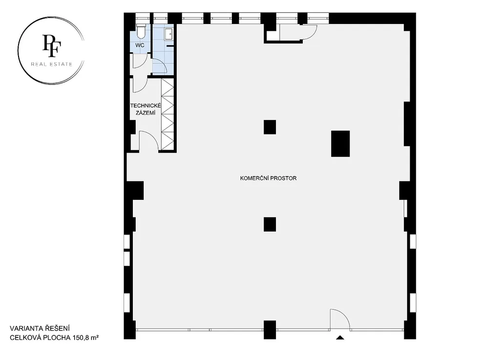
K pronájmu nabízíme komerční prostor o užitné ploše 150,8 m² v jedné z nejžádanějších částí Prahy 7 na Ortenově náměstí. Prostor se nachází ve zrekonstruovaném domě a má přímý vstup z ulice. Lokalita je dlouhodobě silná pro komerční provoz díky výborné dostupnosti MHD a přirozenému pohybu lidí v okolí. Prostor je vhodný pro klientské centrum, větší služby, showroom, studio nebo kombinaci provozu a zázemí. Konkrétní využití je možné nastavit dle dohody.

Velkou výhodou je variabilita dispozice. Dle zamýšleného využití je možné zvětšit otevřenou prodejní nebo klientskou plochu úpravou dispozice (viz. půdorys), například odstraněním vybraných příček. Konkrétní řešení bude záležet na plánovaném provozu a dohodě.

Prostor je v současné době řádně užíván stávajícím nájemcem.

K dispozici od 15. 7. 2026
Užitná plocha: 150,8 m²
Nájemné: 69 900 Kč/měsíc
Služby: 5 000 Kč/měsíc (měsíční zálohy na energie a služby spojené s užíváním prostoru dle předpisu SVJ)
Provize RK: ve výši 1 měsíčního nájemného

Elektřina v prostoru se přepisuje na nájemce.

Pro více informací a domluvení prohlídky mě neváhejte kontaktovat.

Makléř

Máte zájem o tuto nemovistost?

Tímto, v souladu s nařízením Evropského parlamentu a Rady (EU) 2016/679, v platném znění, prohlašuji, že mi je alespoň 16 let a uděluji tak svůj souhlas se zpracováním zadaných údajů (jméno, telefon, e-mail, ip adresa) společnosti B3 Technology, s.r.o., IČ: 07330600, se sídlem Novostavby 126/23, 435 11 Lom (správce dat), za účelem předání dotazu z tohoto formuláře Vámi vybranému inzerentovi a zpětného kontaktování mé osoby. Osobní údaje bude správce zpracovávat manuálně i automaticky přímo prostřednictvím svých zaměstnanců. Informace předané tímto formulářem budou uloženy v databázi správce maximálně po dobu 10 let. Odvolání souhlasu s uložením a zpracováním poskytnutých dat lze e-mailem na info@origo-reality.cz. V případě podezření na neoprávněné použití Vámi poskytnutých údajů máte právo předat podnět k šetření Úřadu pro ochranu osobních údajů. Více informací
Chystáte se prodat nemovitost?
Pomůžeme Vám!