Prodej bytu 2+1, Větrný Jeníkov, 58 m2

Větrný Jeníkov

3 250 000 Kč
/za nemovitost
Hypotéka od 14 526 Kč /měs. Chci hypotéku

Parametry bytu

AdresaVětrný Jeníkov
ID25113
StavbaPanelová
Stav objektuDobrý
Patro3. z 3
Typ objektuPatrový
VlastnictvíOsobní
Užitná plocha58 m2
Podlahová plocha58 m2
Třída energetické náročnostiG - Mimořádně nehospodárná
TopeníLokální plynové
VodaVodovod
Balkon
Sklep
Bezbarierový přístup
Parkování

Origo partneři v Větrném Jeníkově

Popis

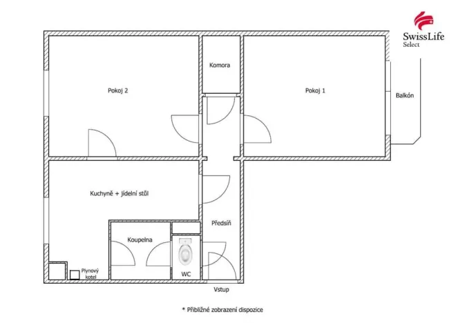
Nabízím ke koupi bytovou jednotku o dispozici 2+1 a ploše přibližně 58 m ve Větrném Jeníkově. Byt je umístěn ve 3. nadzemním podlaží z celkových 3 v zatepleném bytovém domě o sedmi bytech bez výtahu.

K bytu náleží sklepní kóje v přízemí o ploše přibližně 1,5 m a 2 m balkón na jižní straně. Vytápění a ohřev vody jsou řešeny vlastním plynovým kotlem.

Parkování pohodlné přímo před bytovým domem.

Větrný Jeníkov je vyhledávaný městys s kompletní občanskou vybaveností mateřská a základní škola, obchody, restaurace, pošta i sportovní areál. Výborná dostupnost do Jihlavy a rychlé napojení na D1 zajišťují pohodlné každodenní dojíždění.

K bytu je možné za zvýhodněnou cenu dokoupit pár set metrů vzdálenou zahradu o velikosti 308 m. Cena samostatně 390.000 Kč, cena zahrady při koupi dohromady s tímto bytem bude 300.000 Kč.

Pro domluvení prohlídky neváhejte zavolat.

Makléř

Máte zájem o tento byt?

Tímto, v souladu s nařízením Evropského parlamentu a Rady (EU) 2016/679, v platném znění, prohlašuji, že mi je alespoň 16 let a uděluji tak svůj souhlas se zpracováním zadaných údajů (jméno, telefon, e-mail, ip adresa) společnosti B3 Technology, s.r.o., IČ: 07330600, se sídlem Novostavby 126/23, 435 11 Lom (správce dat), za účelem předání dotazu z tohoto formuláře Vámi vybranému inzerentovi a zpětného kontaktování mé osoby. Osobní údaje bude správce zpracovávat manuálně i automaticky přímo prostřednictvím svých zaměstnanců. Informace předané tímto formulářem budou uloženy v databázi správce maximálně po dobu 10 let. Odvolání souhlasu s uložením a zpracováním poskytnutých dat lze e-mailem na info@origo-reality.cz. V případě podezření na neoprávněné použití Vámi poskytnutých údajů máte právo předat podnět k šetření Úřadu pro ochranu osobních údajů. Více informací
Chystáte se prodat nemovitost?
Pomůžeme Vám!

Přihlášení k odběru

Nenechte si ujít nejnovější nabídky prodeje bytů 2+1 v Větrném Jeníkově.