Prodej bytu 2+kk, Pardubice, Na Spravedlnosti, 53 m2

Na Spravedlnosti, Pardubice, Zelené Předměstí

6 890 000 Kč
/za nemovitost
včetně poplatků, včetně provize, včetně právního servisu
Hypotéka od 30 794 Kč /měs. Chci hypotéku

Parametry bytu

AdresaNa Spravedlnosti, Pardubice, Zelené Předměstí
ID00256
StavbaSmíšená
Stav objektuVelmi dobrý
Patro6. z 13
VybavenoNe
Lokalita objektuKlidná část obce
VlastnictvíOsobní
Užitná plocha53 m2
Podlahová plocha77 m2
Třída energetické náročnostiB - Velmi úsporná
Ukazatel energetické náročnosti59 kWh/m2 za rok
Elektřina230V
OdpadVeřejná kanalizace
KomunikaceAsfaltová
TelekomunikaceInternet
DopravaSilnice, MHD, Autobus
VodaVodovod
Topné tělesoRadiátory
Zdroj topeníCentrální dálkové
Zdroj teplé vodyCentrální dálkový ohřev
Terasa
Výtah
Parkování

Origo partneři v Pardubicích

Popis

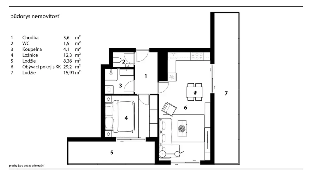
Tento prostorný byt nabídne prostor, světlo i venkovní život ve vyhledávané pardubické lokalitě Višňovka. Ta kombinuje klid rezidenční čtvrti s výbornou dostupností do centra města i ke kompletní občanské vybavenosti. V docházkové vzdálenosti najdete obchody, kavárny, restaurace, školy, školky i zastávky MHD. Zároveň jste během pár minut v centru Pardubic nebo na hlavních dopravních tazích. Je to lokalita, kde můžete pohodlně fungovat bez auta, ale zároveň mít vše rychle dostupné.

Byt se nachází v 6. nadzemním podlaží moderního domu s výtahem. Jeho celková plocha zahrnuje byt s plochou 53 m2, terasu o ploše 16 m2 a druhou terasu velkou 8 m2. Díky vyššímu patru je z teras příjemný nadhled, více světla a větší pocit soukromí. Celý byt je ve velmi pěkném stavu a připravený k okamžitému nastěhování bez nutnosti dalších investic. Nabízí se jako nezařízený, před předáním bude vyklizen. Dům byl dokončen v roce 2021, takže splňuje současné nároky na komfort, energetickou úspornost i moderní standard bydlení.

Měsíční náklady na bydlení dle předpisu plateb SVJ pro 1 osobu jsou 3 186 Kč (z toho fond oprav 442 Kč) a k tomu elektřina dle spotřeby, cca 1 300 Kč. V případě zájmu je možné samostatně dokoupit také venkovní parkovací stání, což je v této lokalitě praktický benefit.

Srdcem bytu je velkorysý obývací pokoj s kuchyňským koutem, který tvoří otevřený a vzdušný prostor, přirozeně prosvětlený ze dvou stran. Kuchyňský kout je elegantně zakomponovaný tak, aby byl plně funkční, ale nerušil obytnou část. Z vestavěných spotřebičů nabídne sklokeramickou varnou desku, troubu s digestoří a myčku nádobí. Z tohoto prostoru vstupujete na velkou terasu cca 16 m2 orientovanou na západ. Ta přirozeně rozšiřuje obytný prostor a dává bytu další rozměr. Představte si letní západy slunce, bylinky v květináčích a klidná posezení s výhledem na střechy okolních domů.

Ložnice je samostatná, klidná a dostatečně prostorná pro pohodlné útočiště. Bez problémů se sem vejde manželská postel, šatní skříň i pracovní kout. Je odtud vstup na druhou, ještě větší, severně orientovanou terasu o výměře cca 8 m². Ani zde se fantazii meze nekladou – může zde malá zahrádka či příjemné posezení, kde se ukryjete před sluncem.

Vstupní předsíň je prostorná a prakticky řešená. Nachází se zde skříň i botník a díky své velikosti působí vzdušně, nikoli stísněně. Navíc centrálně propojuje všechny místnosti, což zajišťuje logickou a pohodlnou dispozici bez zbytečných chodeb.

Koupelna je vybavena sprchovým koutem a působí moderně a čistě. Toaleta je samostatná, což zvyšuje komfort každodenního fungování, zejména pokud v bytě bydlí pár nebo přijde návštěva.

Tento byt je ideální volbou pro pár i jednotlivce, který chce víc prostoru, nebo jako investice v jedné z nejvyhledávanějších pardubických lokalit. Nabízí moderní dům, výtah, dvě velkorysé terasy a dispozici, která dává smysl. Pokud hledáte bydlení, které kombinuje městský život s vlastním venkovním prostorem, právě jste ho našli. Zavolejte mi a přijďte se podívat osobně.

Makléř

Máte zájem o tento byt?

Tímto, v souladu s nařízením Evropského parlamentu a Rady (EU) 2016/679, v platném znění, prohlašuji, že mi je alespoň 16 let a uděluji tak svůj souhlas se zpracováním zadaných údajů (jméno, telefon, e-mail, ip adresa) společnosti B3 Technology, s.r.o., IČ: 07330600, se sídlem Novostavby 126/23, 435 11 Lom (správce dat), za účelem předání dotazu z tohoto formuláře Vámi vybranému inzerentovi a zpětného kontaktování mé osoby. Osobní údaje bude správce zpracovávat manuálně i automaticky přímo prostřednictvím svých zaměstnanců. Informace předané tímto formulářem budou uloženy v databázi správce maximálně po dobu 10 let. Odvolání souhlasu s uložením a zpracováním poskytnutých dat lze e-mailem na info@origo-reality.cz. V případě podezření na neoprávněné použití Vámi poskytnutých údajů máte právo předat podnět k šetření Úřadu pro ochranu osobních údajů. Více informací
Chystáte se prodat nemovitost?
Pomůžeme Vám!

Přihlášení k odběru

Nenechte si ujít nejnovější nabídky prodeje bytů 2+kk v Pardubicích.