Prodej bytu 1+kk, Praha - Žižkov, Hartigova, 45 m2

Hartigova, Praha, Žižkov

8 400 000 Kč
/za nemovitost
Cena včetně nábytku, provize, právního servisu a DPH. Není potřeba nic doplácet!
Hypotéka od 37 543 Kč /měs. Chci hypotéku

Parametry bytu

Náklady na bydlení3356
AdresaHartigova, Praha, Žižkov
StavbaSmíšená
Stav objektuNovostavba
Patro1.
VlastnictvíOsobní
Užitná plocha45 m2
Třída energetické náročnostiB - Velmi úsporná
Balkon
Sklep

Origo partneři v Praze 3

Stěhovací služby

Výkup a prodej starého nábytku

Popis

Exkluzivně nabízíme stylový byt 1+kk s balkonem v rezidenci Žižkovské Pavlače, Praha 3 – Žižkov.

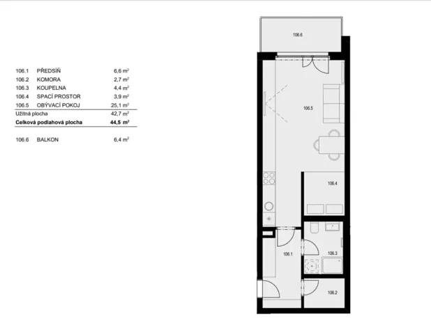
Byt o celkové ploše 44,6 m² + balkon 6,4 m² se nachází v 1. patře moderní novostavby na adrese Hartigova 1016/41a.

Interiér je plně zařízený designovým nábytkem na míru a nabízí nadstandardní výšku stropů 3,1 m, která vytváří příjemný pocit prostoru a světla.
Okna jsou orientována do klidné zeleně parku Vítkov, což zajišťuje příjemné a tiché bydlení.

Součástí bytu je také prostorná sklepní kóje (4,5 m²) v suterénu domu.

✔ moderní rezidenční projekt
✔ klidná lokalita u parku
✔ skvělá investiční příležitost i ideální bydlení

Projekt Žižkovské Pavlače

Moderní rezidenční komplex tvoří 5 budov s celkem 141 byty o dispozicích od 1+kk do 4+kk. Projekt citlivě kombinuje moderní architekturu s historickou atmosférou Žižkova a přirozeně zapadá do okolní zástavby z konce 19. století.

Lokalita – Praha 3 Žižkov

Byt se nachází v jedné z nejžádanějších částí Prahy. Park Vítkov je doslova pár kroků od domu a nabízí množství zeleně, sportu i relaxace.
Žižkov je známý svou živou atmosférou, restauracemi, kavárnami a bary, a zároveň nabízí skvělou občanskou vybavenost – školy, školky, zdravotnická zařízení i nákupní centra.
Velkou výhodou je rychlá dostupnost do centra Prahy – Václavské náměstí je vzdálené pouhých 5 minut.
Dopravní dostupnost je výborná jak MHD, tak i autem díky snadnému napojení na ulici Spojovací a městský okruh.

Makléř

Máte zájem o tento byt?

Tímto, v souladu s nařízením Evropského parlamentu a Rady (EU) 2016/679, v platném znění, prohlašuji, že mi je alespoň 16 let a uděluji tak svůj souhlas se zpracováním zadaných údajů (jméno, telefon, e-mail, ip adresa) společnosti B3 Technology, s.r.o., IČ: 07330600, se sídlem Novostavby 126/23, 435 11 Lom (správce dat), za účelem předání dotazu z tohoto formuláře Vámi vybranému inzerentovi a zpětného kontaktování mé osoby. Osobní údaje bude správce zpracovávat manuálně i automaticky přímo prostřednictvím svých zaměstnanců. Informace předané tímto formulářem budou uloženy v databázi správce maximálně po dobu 10 let. Odvolání souhlasu s uložením a zpracováním poskytnutých dat lze e-mailem na info@origo-reality.cz. V případě podezření na neoprávněné použití Vámi poskytnutých údajů máte právo předat podnět k šetření Úřadu pro ochranu osobních údajů. Více informací
Chystáte se prodat nemovitost?
Pomůžeme Vám!

Přihlášení k odběru

Nenechte si ujít nejnovější nabídky prodeje bytů 1+kk v Praze 3.