Prodej bytu 2+1, Hranice - Hranice I-Město, Kpt. Jaroše, 53 m2

Kpt. Jaroše, Hranice I-Město

3 250 000 Kč
/za nemovitost
Hypotéka od 14 526 Kč /měs. Chci hypotéku

Parametry bytu

AdresaKpt. Jaroše, Hranice I-Město
IDN2056
StavbaCihlová
Stav objektuVelmi dobrý
Patro5. z 5
VybavenoČástečně
Typ objektuPatrový
VlastnictvíOsobní
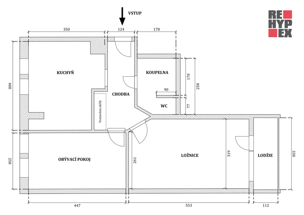
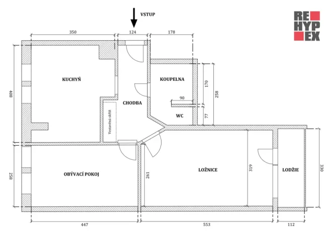
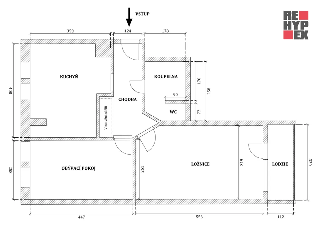
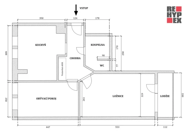
Užitná plocha53 m2
Podlahová plocha53 m2
Třída energetické náročnostiG - Mimořádně nehospodárná
TopeníÚstřední dálkové
Sklep
Lodžie
Výtah

Origo partneři v Hranicích

Popis

Nabízíme k prodeji světlý a velmi příjemný byt o dispozici 2+1 +lodžie, který se nachází v jedné z nejklidnějších částí města. Byt se nachází v posledním patře, zateplená střecha zajišťuje tepelný komfort a zároveň poskytuje naprostý klid - byt nemá žádného přímého souseda. Díky své poloze poskytuje nádherný výhled do krajiny. K bytu náleží sklepní kóje. Stav bytu umožňuje okamžité nastěhování nebo lze jednoduchou úpravou změnit dispozici bytu na 3+KK a získat tak prostorný obývací pokoj s kuchyňským koutem a lodžií, k tomu dvě ložnice.
Byt je ideální pro lidi, kteří hledají vlastní bydlení v příjemném prostředí, nebo také pro investory, kteří chtějí bezpečně uložit prostředky – byt je vhodný k okamžitému pronájmu.

Hlavní přednosti bytu
- Dispozice 2+1 s možností přestavby na 3+KK - ideální pro rodinu
- Klidná lokalita s dostatkem zeleně
- Krásné výhledy, které dodávají bytu jedinečnou atmosféru
- Dobrá dostupnost do centra města
- Nízké provozní náklady
Pro další informace nebo prohlídku volejte makléři.

Makléř

Máte zájem o tento byt?

Tímto, v souladu s nařízením Evropského parlamentu a Rady (EU) 2016/679, v platném znění, prohlašuji, že mi je alespoň 16 let a uděluji tak svůj souhlas se zpracováním zadaných údajů (jméno, telefon, e-mail, ip adresa) společnosti B3 Technology, s.r.o., IČ: 07330600, se sídlem Novostavby 126/23, 435 11 Lom (správce dat), za účelem předání dotazu z tohoto formuláře Vámi vybranému inzerentovi a zpětného kontaktování mé osoby. Osobní údaje bude správce zpracovávat manuálně i automaticky přímo prostřednictvím svých zaměstnanců. Informace předané tímto formulářem budou uloženy v databázi správce maximálně po dobu 10 let. Odvolání souhlasu s uložením a zpracováním poskytnutých dat lze e-mailem na info@origo-reality.cz. V případě podezření na neoprávněné použití Vámi poskytnutých údajů máte právo předat podnět k šetření Úřadu pro ochranu osobních údajů. Více informací
Chystáte se prodat nemovitost?
Pomůžeme Vám!

Přihlášení k odběru

Nenechte si ujít nejnovější nabídky prodeje bytů 2+1 v Hranicích (okr. Přerov).