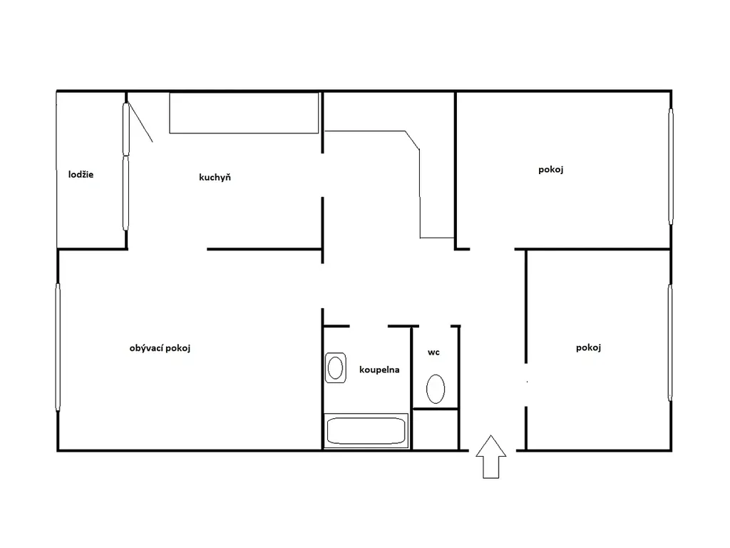
Pronájem bytu 3+1, Praha - Kamýk, Pšenčíkova, 68 m2

Pšenčíkova, Praha, Kamýk

23 600 Kč
/za měsíc
+ poplatky + provize RK
Získejte výhodnou HYPOTÉKU Chci hypotéku

Parametry bytu

AdresaPšenčíkova, Praha, Kamýk
StavbaPanelová
Stav objektuPo rekonstrukci
Patro11.
VybavenoČástečně
Lokalita objektuSídliště
VlastnictvíOsobní
Užitná plocha68 m2
Zdroj topeníÚstřední dálkové
Sklep
Lodžie
Výtah
Bezbarierový přístup

Origo partneři v Praze 4

Stěhovací služby

Výkup a prodej starého nábytku

Popis

Nabízíme k dlouhodobému pronájmu byt 3+1 v 10. patře panelového domu s výtahem. Byt je po kompletní rekonstrukci – zděné jádro, nová kuchyňská linka se spotřebiči (plynový sporák, el. trouba, digestoř, myčka, lednice s mrazákem), plastová okna osázená venkovními roletami. Koupelna s vanou, toaleta zvlášť. Byt je částečně zařízen, k dispozici pračka i lednice. V chodbě jsou vestavěné skříně. Součástí bytu je lodžie a sklípek. Dům je zateplen a disponuje solárními panely (vlastní levnější elektřina). Nachází se v klidné lokalitě pár metrů od autobusové zastávky, 11 min. autobusem na stanici metra Kačerov. V okolí veškerá občanská vybavenost - školka, škola, obchody. Pře domem je parkoviště bez omezení parkování.

Makléř

Máte zájem o tento byt?

Tímto, v souladu s nařízením Evropského parlamentu a Rady (EU) 2016/679, v platném znění, prohlašuji, že mi je alespoň 16 let a uděluji tak svůj souhlas se zpracováním zadaných údajů (jméno, telefon, e-mail, ip adresa) společnosti B3 Technology, s.r.o., IČ: 07330600, se sídlem Novostavby 126/23, 435 11 Lom (správce dat), za účelem předání dotazu z tohoto formuláře Vámi vybranému inzerentovi a zpětného kontaktování mé osoby. Osobní údaje bude správce zpracovávat manuálně i automaticky přímo prostřednictvím svých zaměstnanců. Informace předané tímto formulářem budou uloženy v databázi správce maximálně po dobu 10 let. Odvolání souhlasu s uložením a zpracováním poskytnutých dat lze e-mailem na info@origo-reality.cz. V případě podezření na neoprávněné použití Vámi poskytnutých údajů máte právo předat podnět k šetření Úřadu pro ochranu osobních údajů. Více informací
Chystáte se prodat nemovitost?
Pomůžeme Vám!