Pronájem kanceláře, Praha - Smíchov, Nádražní, 98 m2 (ID: 1980538)

Nádražní, Praha 5

38 875 Kč
/za měsíc
+ služby 20 444 Kč/měs. + DPH
Získejte výhodnou HYPOTÉKU Chci hypotéku

Parametry nemovitosti

AdresaNádražní, Praha 5
ID975644
StavbaSmíšená
Stav objektuVelmi dobrý
Patro3. z 4
Typ objektuPatrový
VlastnictvíOsobní
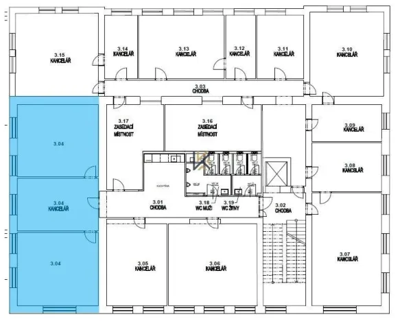
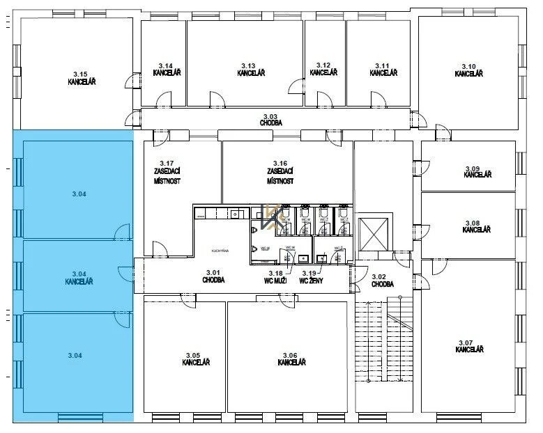
Užitná plocha98 m2
Plocha nebytových prostor98 m2
Třída energetické náročnostiD - Méně úsporná
Elektřina230V
TopeníJiné
DopravaVlak, Silnice, MHD
Výtah
Parkování

Origo partneři v Praze 5

Stěhovací služby

Výkup a prodej starého nábytku

Popis

Neplatíte provizi ! Nabízíme k pronájmu kancelář o výměře 98m2 v 2. patře administrativní budovy Business Centrum Smíchov v ul. Nádražní, Praha 5 Smíchov. V březnu 2024 byla dokončena zdařilá rekonstrukce interierů (podhledy, světla, koberce, dlažba, kuchyňky vč. spotřebičů, toalety, dveře, vstupní recepce). Nájemcům je k dispozici centrální recepce s provozem Po Pá 7:00 19:00, neomezený přístup 24/7, security, kolárna, sprcha, střešní terasa 90m2 s výhledem na řeku, sdílená zasedací místnost, klimatizace, otevíratelná okna, výtah.

Možnost parkování přímo u budovy (3 500 Kč/měs.)

Pouze pár kroků od stanice metra (B) Smíchovské nádražní + Tram + Bus + Vlak.

Zdarma pro Vás připravíme nabídku kanceláří z více jak 300 budov po celé Praze.

Makléř

Máte zájem o tuto nemovistost?

Tímto, v souladu s nařízením Evropského parlamentu a Rady (EU) 2016/679, v platném znění, prohlašuji, že mi je alespoň 16 let a uděluji tak svůj souhlas se zpracováním zadaných údajů (jméno, telefon, e-mail, ip adresa) společnosti B3 Technology, s.r.o., IČ: 07330600, se sídlem Novostavby 126/23, 435 11 Lom (správce dat), za účelem předání dotazu z tohoto formuláře Vámi vybranému inzerentovi a zpětného kontaktování mé osoby. Osobní údaje bude správce zpracovávat manuálně i automaticky přímo prostřednictvím svých zaměstnanců. Informace předané tímto formulářem budou uloženy v databázi správce maximálně po dobu 10 let. Odvolání souhlasu s uložením a zpracováním poskytnutých dat lze e-mailem na info@origo-reality.cz. V případě podezření na neoprávněné použití Vámi poskytnutých údajů máte právo předat podnět k šetření Úřadu pro ochranu osobních údajů. Více informací
Chystáte se prodat nemovitost?
Pomůžeme Vám!

Přihlášení k odběru

Nenechte si ujít nejnovější nabídky pronájmu kanceláří v Praze 5.