Prodej obchodního prostoru, Mělník, Krombholcova, 300 m2 (ID: 1979228)

Krombholcova, Mělník

Cena na vyžádání
/za nemovitost
Na přání majitele cenu neuvádět
Získejte výhodnou HYPOTÉKU Chci hypotéku

Parametry nemovitosti

AdresaKrombholcova, Mělník
ID905131
StavbaCihlová
Stav objektuDobrý
VybavenoČástečně
Lokalita objektuCentrum obce
VlastnictvíOsobní
Užitná plocha300 m2

Origo partneři v Mělníku

Popis

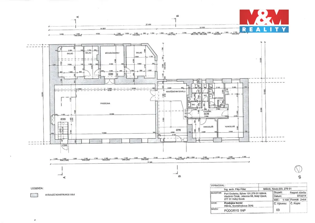
Nabízíme k prodeji obchodní objekt nedaleko centra Mělníka. Tato cihlová stavba o užitné ploše cca 300 m² je přízemní. Největší místnost má cca 100 m2 a v současné době je využívána jako prodejna. Dalších šest místností je možno využít jako sklady a kanceláře. Objekt je v dobrém stavu , v současné době je pronajat a nabízí se k prodeji s nájemní smlouvou. Díky své poloze poblíž centra je ideálním místem pro obchody, kanceláře nebo služby. Dobrá dostupnost a zvýšený pohyb lidí zajišťují potenciál pro možnosti podnikání. Pro více informací nás neváhejte kontaktovat.

Makléř

Máte zájem o tuto nemovistost?

Tímto, v souladu s nařízením Evropského parlamentu a Rady (EU) 2016/679, v platném znění, prohlašuji, že mi je alespoň 16 let a uděluji tak svůj souhlas se zpracováním zadaných údajů (jméno, telefon, e-mail, ip adresa) společnosti B3 Technology, s.r.o., IČ: 07330600, se sídlem Novostavby 126/23, 435 11 Lom (správce dat), za účelem předání dotazu z tohoto formuláře Vámi vybranému inzerentovi a zpětného kontaktování mé osoby. Osobní údaje bude správce zpracovávat manuálně i automaticky přímo prostřednictvím svých zaměstnanců. Informace předané tímto formulářem budou uloženy v databázi správce maximálně po dobu 10 let. Odvolání souhlasu s uložením a zpracováním poskytnutých dat lze e-mailem na info@origo-reality.cz. V případě podezření na neoprávněné použití Vámi poskytnutých údajů máte právo předat podnět k šetření Úřadu pro ochranu osobních údajů. Více informací
Chystáte se prodat nemovitost?
Pomůžeme Vám!

Přihlášení k odběru

Nenechte si ujít nejnovější nabídky prodeje obchodních prostor v Mělníku.