Pronájem bytu 2+kk, Praha - Ruzyně, Drnovská, 54 m2

Drnovská, Praha 6

22 500 Kč
/za měsíc
Nájemné je 22500, Kč měsičně plus poplatky 5900, Kč (dvě osoby). Dodávku elektrické energie si podnájemce zajistí převodem smlouvy na svou osobu. Náklady na elektřinu nejsou zahrnuty v měsíčních poplatcích.
Získejte výhodnou HYPOTÉKU Chci hypotéku

Parametry bytu

AdresaDrnovská, Praha 6
ID975567
StavbaSkeletová
Stav objektuNovostavba
Patro5. z 6
VlastnictvíDružstevní
Užitná plocha54 m2
Podlahová plocha54 m2
Třída energetické náročnostiB - Velmi úsporná
Elektřina230V
DopravaDálnice, Silnice, MHD
VodaVodovod
Balkon
Výtah

Origo partneři v Praze 6

Stěhovací služby

Výkup a prodej starého nábytku

Popis

SVĚTLÝ BYT S BALKONEM 2+kk V SRDCI PŘÍRODY A PŘITOM PÁR MINUT OD CENTRA K PODNÁJMU.
Ráno káva na balkoně, odpoledne procházka v Šáreckém údolí a večer bez přestupu do centra Prahy.
Tak může vypadat Vaše nové bydlení.
Nabízím k pronájmu světlý a velmi příjemný byt v jedinečné lokalitě Prahy 6, v prestižním rezidenčním projektu Rezidence U Šárky.
Byt se nachází ve 4. NP moderního domu a nabízí praktickou, promyšlenou dispozici:
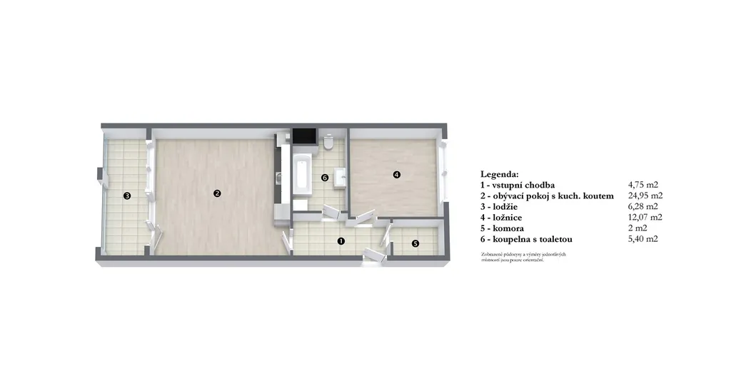
• Předsíň: 4,75 m²
• Obývací pokoj s kuchyňským koutem: 24,95 m²
• Ložnice: 12,07 m²
• Komora v bytě: 2 m²
• Koupelna s vanou a toaletou: 5,4 m²
• Balkon orientovaný do klidného vnitrobloku: 6,28 m²
V bytě je instalována nová, moderní a plně funkční kuchyňská linka se spotřebiči.
Finanční podmínky:

Nájemné: 22.500 Kč / měsíc
Poplatky: 5.900 Kč / měsíc (dvě osoby)
Dodávku elektrické energie si podnájemce zajistí převodem smlouvy na svou osobu. Náklady na elektřinu nejsou zahrnuty v měsíčních poplatcích.
Kauce: 45.000 Kč (2 měsíční nájmy)
Provize RK: 1 měsíční nájem + DPH (27 250 Kč)
CELKOVÁ první investice činí 100.650, Kč

Lokalita, která má duši
Do nádherné přírody Šáreckého údolí se dostanete za pouhých 7 minut chůze. Tramvají se bez přestupu pohodlně dostanete do centra města.
Praha 6 patří dlouhodobě mezi nejvyhledávanější městské části. Její kouzlo spočívá v harmonickém spojení elegantních vilových čtvrtí, rozlehlých přírodních parků a vyhlášených kaváren i restaurací.
Přímo u domu se nachází dětské , sportovní i fotbalové hřiště. Za sportem tak nemusíte chodit daleko – fitness pod širým nebem máte doslova pár kroků od domova.
Tento byt je ideální pro ty, kteří chtějí spojit klid, zeleň, aktivní životní styl a výbornou dostupnost do centra.
V případě zájmu o prohlídku mě neváhejte kontaktovat.
Bc. Elena Vinogradova
Certifikovaný realitní makléř
č. 2/3/2022, Asociace realitních kanceláří ČR

Makléř

Máte zájem o tento byt?

Tímto, v souladu s nařízením Evropského parlamentu a Rady (EU) 2016/679, v platném znění, prohlašuji, že mi je alespoň 16 let a uděluji tak svůj souhlas se zpracováním zadaných údajů (jméno, telefon, e-mail, ip adresa) společnosti B3 Technology, s.r.o., IČ: 07330600, se sídlem Novostavby 126/23, 435 11 Lom (správce dat), za účelem předání dotazu z tohoto formuláře Vámi vybranému inzerentovi a zpětného kontaktování mé osoby. Osobní údaje bude správce zpracovávat manuálně i automaticky přímo prostřednictvím svých zaměstnanců. Informace předané tímto formulářem budou uloženy v databázi správce maximálně po dobu 10 let. Odvolání souhlasu s uložením a zpracováním poskytnutých dat lze e-mailem na info@origo-reality.cz. V případě podezření na neoprávněné použití Vámi poskytnutých údajů máte právo předat podnět k šetření Úřadu pro ochranu osobních údajů. Více informací
Chystáte se prodat nemovitost?
Pomůžeme Vám!

Přihlášení k odběru

Nenechte si ujít nejnovější nabídky pronájmu bytů 2+kk v Praze 6.