Prodej bytu 1+kk, Bílovice nad Svitavou, Šebelova, 35 m2 (ID: 1978880)

Šebelova, Bílovice nad Svitavou

4 670 000 Kč
/za nemovitost
Cena je včetně provize RK a právního servisu
Hypotéka od 20 872 Kč /měs. Chci hypotéku

Parametry bytu

Náklady na bydlení4.000,- Kč/měs.
AdresaŠebelova, Bílovice nad Svitavou
ID000378
StavbaCihlová
Stav objektuVelmi dobrý
Patro1.
VybavenoAno
VlastnictvíOsobní
Užitná plocha35 m2
Plocha zahrady20 m2
Třída energetické náročnostiG - Mimořádně nehospodárná
DopravaVlak, Silnice, MHD
Zdroj topeníPlynový kondenzační kotel
Zdroj teplé vodyPlynový kondenzační kotel
Sklep
Terasa
Bezbarierový přístup

Origo partneři v Bílovicích nad Svitavou

Popis

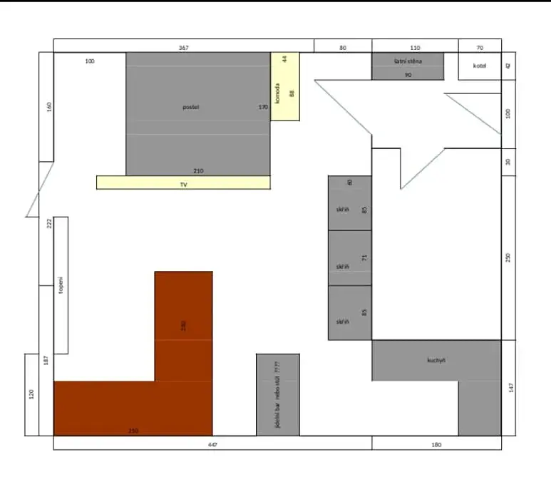
Přicházíme s nabídkou prodeje prostorné a prakticky řešené jednotky v OV s dispozicemi 1+kk, s celkovou výměrou 35 m2 v klidné ulici Šebelova, v obci Bílovice nad Svitavou, v oblasti klidu a zeleně.
Bytově upravený prostor se nachází v přízemí dvoupatrového cihlového zatepleného domu, z obývacího pokoje je výstup francouzským oknem na zahrádku (20 m2) s terasou pro příjemné posezení a oplocením ze dřeva. Pozemek je pronajatý od obce s poplatkem 1.500,- Kč/ročně.
Dispozice nemovitosti: obývací pokoj s vestavěnou samostatnou částí na spaní, kuchyňský kout, velká koupelna s vanou, toaletou a předsíň. K dispozici je sklepní kóje a společná sušárna na stejném podlaží. Jednotka je vedena jako nebytový prostor.
Vytápění je řešeno vlastním novým plynovým kotlem s ohřevem vody. Jednotka má vlastní měřidla.
Součástí prodeje je i nové zařízení nábytkem „na míru“ dle architektonického návrhu s přihlédnutím k optimálnímu využití prostoru a doplněným velkými šatními skříněmi, vše zajišťuje komfort moderního bydlení. Kromě sedací soupravy a TV může být ponecháno.
K dispozici je šikovně využitý prostor pro kuchyňský kout se sporákem se sklokeramickou varnou deskou a horkovzdušnou troubou, digestoří a lednicí, celé vybavení umocňuje domácí pohodu.
Okna jsou plastová s horizontálními žaluziemi, na podlahách částečně dlažba a PVC.
Dům je zateplený, ve velmi dobré kondici s okolní parkovou úpravou. Vstup do domu je upravený, ve vstupní chodbě se nachází poštovní schránky.
Jednotka není zatížena žádným závazkem, je volně převoditelná, bez nájemní vazby. Užívání kupujícím je možné ihned.
Měsíční náklady činí 4.000,- Kč (FO je nyní 300,- Kč/měs.).
Bezproblémové parkování na komunikaci u domu nebo možnost pronájmu parkovacího místa od obce v ceně 3.000,- Kč/rok.
Umístění ve vyhledávané lokalitě s výbornou dostupností do Brna vlakem i MHD (cca 20 min.). Možnost vycházek do přírody, obec Bílovice je zasazena do lesů a protknuta turistickými stezkami i cyklostezkami směrem k Moravskému krasu i na Jižní Moravu. V obci je veškerá potřebná občanská vybavenost.
Vaše dotazy Vám ráda zodpoví a na společnou prohlídku se těší naše makléřka.

Makléř

Máte zájem o tento byt?

Tímto, v souladu s nařízením Evropského parlamentu a Rady (EU) 2016/679, v platném znění, prohlašuji, že mi je alespoň 16 let a uděluji tak svůj souhlas se zpracováním zadaných údajů (jméno, telefon, e-mail, ip adresa) společnosti B3 Technology, s.r.o., IČ: 07330600, se sídlem Novostavby 126/23, 435 11 Lom (správce dat), za účelem předání dotazu z tohoto formuláře Vámi vybranému inzerentovi a zpětného kontaktování mé osoby. Osobní údaje bude správce zpracovávat manuálně i automaticky přímo prostřednictvím svých zaměstnanců. Informace předané tímto formulářem budou uloženy v databázi správce maximálně po dobu 10 let. Odvolání souhlasu s uložením a zpracováním poskytnutých dat lze e-mailem na info@origo-reality.cz. V případě podezření na neoprávněné použití Vámi poskytnutých údajů máte právo předat podnět k šetření Úřadu pro ochranu osobních údajů. Více informací
Chystáte se prodat nemovitost?
Pomůžeme Vám!

Přihlášení k odběru

Nenechte si ujít nejnovější nabídky prodeje bytů 1+kk v Bílovicích nad Svitavou.