Prodej bytu 2+1, Nový Bor, Tř. T. G. Masaryka, 74 m2

Tř. T. G. Masaryka, Nový Bor

4 200 000 Kč
/za nemovitost
Hypotéka od 18 771 Kč /měs. Chci hypotéku

Parametry bytu

AdresaTř. T. G. Masaryka, Nový Bor
StavbaCihlová
Stav objektuPo rekonstrukci
Patro2.
VlastnictvíOsobní
Užitná plocha74 m2
Garáž
Parkování

Origo partneři v Novém Boru

Rekonstrukce

Úklidové služby

Popis

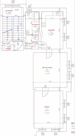
Exkluzivně nabízíme ke koupi slunný a vkusně zrekonstruovaný byt v osobním vlastnictví o dispozici 2+1 a výměře 74 m² s garáží 25m2 . Byt se nachází ve 2. patře klidného udržovaného bytového domu v atraktivní lokalitě v Novém Boru na hlavní třídě T.G.M.

Byt prošel kompletní rekonstrukcí – nové rozvody elektřiny a vody, byly instalovány moderní podlahy, koupelna s vanou, nová kuchyňská linka s ostrůvkem, sklokeramickou deskou, digestoří, troubou a vestavěnou myčkou. V celém bytě jsou také nové interiérové dveře. Dispozice nabízí prostorný obývací pokoj, kde byla nainstalována klimatizační jednotka, ložnici, kuchyni a koupelnu s WC.

K bytu náleží také zrekonstruovaná garáž o velikosti 25m2 se sekvenčními vraty na dálkové ovládání a nově vydlážděnou podlahou.

Velkou výhodou je oplocené nádvoří vedle domu, kde je možné další parkování.

Lokalita a občanská vybavenost: Byt se nachází v dostupné vzdálenosti od centra města 10 minut pěšky. V těsné blízkosti je zastávka MHD. V dostupné vzdálenosti je škola, zdravotnické zařízení, nákupní centrum, banka a městský park.

Náklady na bydlení:
Fond oprav SVJ : 1500 Kč
Elektrická energie 1000 Kč
Plyn: 1000 Kč
Voda: 500 Kč

Cena 4.200.000 Kč
Financovat lze i hypotékou, zajistíme Vám nejvýhodnější podmínky na trhu.

Byt je k nastěhování od 15.3.2026

Pro více informací a prohlídku kontaktujte makléře.

Makléř

Máte zájem o tento byt?

Tímto, v souladu s nařízením Evropského parlamentu a Rady (EU) 2016/679, v platném znění, prohlašuji, že mi je alespoň 16 let a uděluji tak svůj souhlas se zpracováním zadaných údajů (jméno, telefon, e-mail, ip adresa) společnosti B3 Technology, s.r.o., IČ: 07330600, se sídlem Novostavby 126/23, 435 11 Lom (správce dat), za účelem předání dotazu z tohoto formuláře Vámi vybranému inzerentovi a zpětného kontaktování mé osoby. Osobní údaje bude správce zpracovávat manuálně i automaticky přímo prostřednictvím svých zaměstnanců. Informace předané tímto formulářem budou uloženy v databázi správce maximálně po dobu 10 let. Odvolání souhlasu s uložením a zpracováním poskytnutých dat lze e-mailem na info@origo-reality.cz. V případě podezření na neoprávněné použití Vámi poskytnutých údajů máte právo předat podnět k šetření Úřadu pro ochranu osobních údajů. Více informací
Chystáte se prodat nemovitost?
Pomůžeme Vám!

Přihlášení k odběru

Nenechte si ujít nejnovější nabídky prodeje bytů 2+1 v Novém Boru.