Soccer reality

Prodej rodinného domu, Nehvizdy, 120 m2

Nehvizdy

10 459 990 Kč
/za nemovitost
včetně právního a hypotečního servisu
Hypotéka od 46 750 Kč /měs. Chci hypotéku

Parametry domu

AdresaNehvizdy
ID00220
StavbaCihlová
Stav objektuVe výstavbě
VybavenoNe
Druh objektuV bloku
Lokalita objektuKlidná část obce
Užitná plocha120 m2
Podlahová plocha120 m2
Plocha pozemku410 m2
Třída energetické náročnostiG - Mimořádně nehospodárná
Elektřina230V, 400V
PlynPlynovod
OdpadVeřejná kanalizace
KomunikaceDlážděná
DopravaDálnice, Silnice, MHD, Autobus
VodaVodovod
Parkování

Origo partneři v Nehvizdech

Popis

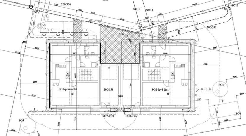
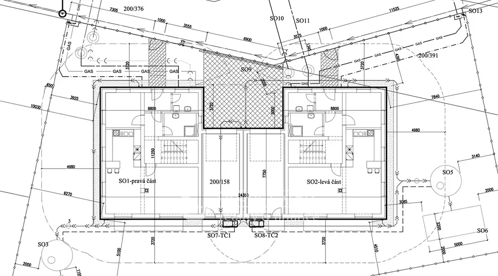
K prodeji nabízíme pravou půlku patrového dvojdomku 5+kk o rozloze cca 120 m² s pozemkem přibližně 410 m² v oblíbené lokalitě pro bydlení v obci Nehvizdy.

Tento moderní dům bude součástí nové zástavby rodinných domů, což zaručuje příjemné, klidné bydlení a zároveň dobrou dostupnost do Prahy, nebo okolních měst.

Zděný dům bude prodáván jako hrubá stavba, s novými kvalitními okny a vstupními dveřmi, to vám umožní přizpůsobit interiér podle vašich představ. Fasáda a interiér domu bude k dokončení po dohodě s realizující firmou, nebo si můžete vybrat stavební firmu podle vlastního uvážení.
Tímto způsobem získáte možnost vytvořit si domov přesně podle svých potřeb a vkusu.

Dům bude připojen na veškeré dostupné sítě – elektřinu, plyn, vodu, kanalizaci a optiku.

Pozemek bude v zadní části oplocen, pro zajištění potřebného soukromí a bezpečnosti. Vjezdová brána není součástí dodávky a tím budete mít možnost zvolit si vlastní řešení. Dokončení hrubé stavby je plánováno na léto 2026, termín vám dává dostatek času na přípravu a plánování vašeho nového bydlení.

Tato nemovitost představuje skvělou investici do budoucnosti, ať už hledáte rodinný dům pro sebe, nebo zajímavou příležitost na trhu s nemovitostmi.

Neváhejte nás kontaktovat pro více informací.

Makléř

Máte zájem o tento dům?

Tímto, v souladu s nařízením Evropského parlamentu a Rady (EU) 2016/679, v platném znění, prohlašuji, že mi je alespoň 16 let a uděluji tak svůj souhlas se zpracováním zadaných údajů (jméno, telefon, e-mail, ip adresa) společnosti B3 Technology, s.r.o., IČ: 07330600, se sídlem Novostavby 126/23, 435 11 Lom (správce dat), za účelem předání dotazu z tohoto formuláře Vámi vybranému inzerentovi a zpětného kontaktování mé osoby. Osobní údaje bude správce zpracovávat manuálně i automaticky přímo prostřednictvím svých zaměstnanců. Informace předané tímto formulářem budou uloženy v databázi správce maximálně po dobu 10 let. Odvolání souhlasu s uložením a zpracováním poskytnutých dat lze e-mailem na info@origo-reality.cz. V případě podezření na neoprávněné použití Vámi poskytnutých údajů máte právo předat podnět k šetření Úřadu pro ochranu osobních údajů. Více informací
Chystáte se prodat nemovitost?
Pomůžeme Vám!

Přihlášení k odběru

Nenechte si ujít nejnovější nabídky prodeje rodinných domů v Nehvizdech.