Pronájem bytu 5+kk, Praha - Žižkov, Řehořova, 131 m2 (ID: 1977834)

Řehořova, Praha, Žižkov

50 000 Kč
/za měsíc
Poplatky za služby a energie se hradí zvlášť. Informace v popisu.
Získejte výhodnou HYPOTÉKU Chci hypotéku

Parametry bytu

AdresaŘehořova, Praha, Žižkov
ID971591
StavbaCihlová
Stav objektuPo rekonstrukci
Patro5.
VybavenoČástečně
VlastnictvíOsobní
Užitná plocha131 m2
Podlahová plocha133 m2
Třída energetické náročnostiG - Mimořádně nehospodárná
Elektřina230V
PlynPlynovod
DopravaSilnice, MHD
VodaVodovod
Terasa
Výtah

Origo partneři v Praze 3

Stěhovací služby

Výkup a prodej starého nábytku

Popis

Zrekonstruovaný moderní duplex 5+kk (4 ložnice, 2 koupelny), o celkové ploše 134m², je situovaný v 5.MP a 6.NP (posledním patře), rezidenční budovy s výtahem, se nachází v atraktivní části nazývané "Pražský Montmartr“, která je vyhledávanou oblastí pražských bohémů, umělců i studentů, na Praze 3 Žižkově, ulice Řehořova.

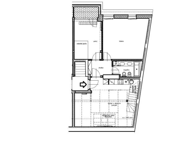
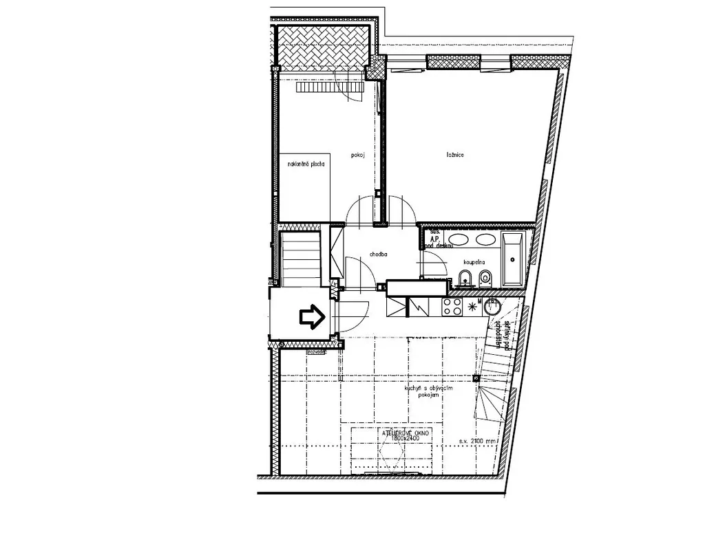
Interiér bytu je částečně zařízený a dispozičně nabízí v dolním podlaží: vstup (2,5 m²) přímo do světlé obývací místnosti propojené s kuchyňským prostorem (31,7 m²), chodbu (4,7 m²) vedoucí do pokojů – prostorné ložnice (22,1 m²), dalšího pokoje (13,2 m²) se vstupem na terasu (2,8 m²) – a do moderní koupelny (3,5 m²) s vanou, toaletou a bidetem.
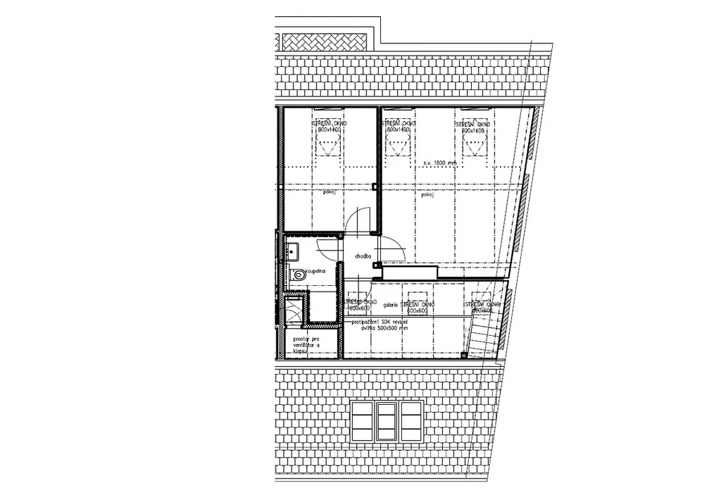
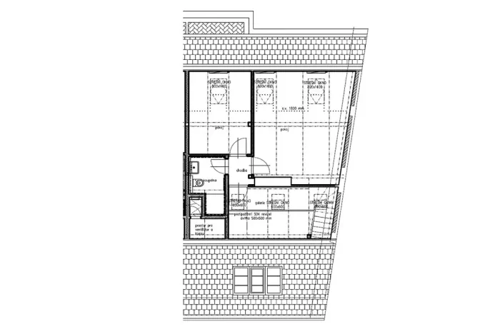
Horní patro bytu nabízí galerii (9,5 m²), dvě oddělené podkrovní ložnice (24,8 m² a 12,4 m²) a druhou koupelnu se sprchovým koutem a toaletou.
Součástí vybavení jsou elektrospotřebiče: lednice s mrazákem, myčka, varná deska, trouba a pračka, a také částečný nábytek – vestavěné skříně a postele zobrazené na fotografiích.

Dům se nachází ve vyhledávané rezidenční lokalitě na Praze 3, nedaleko parku Vítkov s krásným výhledem na Prahu, s veškerou občanskou vybaveností v blízkém okolí (široká škála restaurací, bister, kaváren, množství supermarketů a různorodých obchůdků, poblíž butiků s nákupní zónou v srdci Prahy, a mnoho dalšího). Lokalita poskytuje sociální i kulturní vyžití (Palác Akropolis, Žižkovské divadlo Járy Cimrmana, Žižkovská televizní věž, Park Riegrovy Sady) a další kulturní akce.
Výborná dopravní dostupnost do centra města i všech částí Prahy. Tramvajová zastávka "Viktoria Žižkov" je vzdálena jenom pár minut pěšky od domu. Stanice nejbližšího metra (linka C) Hlavní nádraží je vzdálená 1 stanici tramvají, nebo cca 10 min. pěšky.

Měsíční zálohy na služby a energie spojené s užíváním bytu jsou výši 2 500 Kč/měsíčně/na osobu, (včetně zálohy na teplo a teplou vodu). Elektřina za byt je převedena na nájemce. Vratná kauce (jistota) je ve výší 2 nájmů. Provize RK.
Byt je vhodný pro zájemce bez zvířat.
Byt je určený pro dlouhodobý pronájem, min. 1 rok. Podnájem, Airbnb, Booking nejsou možné.

Makléř

Máte zájem o tento byt?

Tímto, v souladu s nařízením Evropského parlamentu a Rady (EU) 2016/679, v platném znění, prohlašuji, že mi je alespoň 16 let a uděluji tak svůj souhlas se zpracováním zadaných údajů (jméno, telefon, e-mail, ip adresa) společnosti B3 Technology, s.r.o., IČ: 07330600, se sídlem Novostavby 126/23, 435 11 Lom (správce dat), za účelem předání dotazu z tohoto formuláře Vámi vybranému inzerentovi a zpětného kontaktování mé osoby. Osobní údaje bude správce zpracovávat manuálně i automaticky přímo prostřednictvím svých zaměstnanců. Informace předané tímto formulářem budou uloženy v databázi správce maximálně po dobu 10 let. Odvolání souhlasu s uložením a zpracováním poskytnutých dat lze e-mailem na info@origo-reality.cz. V případě podezření na neoprávněné použití Vámi poskytnutých údajů máte právo předat podnět k šetření Úřadu pro ochranu osobních údajů. Více informací
Chystáte se prodat nemovitost?
Pomůžeme Vám!