Prodej bytu 1+kk, Praha - Hlubočepy, Gollové, 24 m2

Gollové, Praha 5

5 799 000 Kč
/za nemovitost
Včetně provize a právního servisu.
Hypotéka od 25 918 Kč /měs. Chci hypotéku

Parametry bytu

AdresaGollové, Praha 5
ID32112
StavbaSmíšená
Stav objektuVe výstavbě
Patro3. z 6
VlastnictvíDružstevní
Užitná plocha24 m2
Podlahová plocha24 m2
Třída energetické náročnostiB - Velmi úsporná
TopeníLokální elektrické
Balkon
Lodžie

Origo partneři v Praze 5

Stěhovací služby

Výkup a prodej starého nábytku

Popis

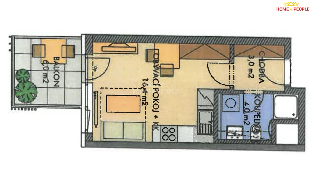
Nabízíme k prodeji moderní byt 1+kk o celkové ploše 24,2 m² + lodžie 6 m², v oblíbeném rezidenčním projektu Kaskády Barrandov společnosti FINEP. Byt se nachází v klidné ulici Gollové s výbornou dostupností do centra města. Jednotka je umístěna v budově N.
Předpokládané dokončení stavby je říjen 2026.

Byt bude proveden v nadstandardu, což znamená, že byt disponuje nadstandardně řešenou koupelnou a kvalitními interiérovými dveřmi.

Byt se nachází ve 3. nadzemním podlaží z celkových šesti a je v osobním vlastnictví. Okna i lodžie jsou orientovány na západ a také do vnitrobloku, kde nejsou žádná auta. Díky praktickému řešení je byt vhodný jak pro vlastní bydlení, tak i jako investice k pronájmu.

Projekt je v současné době ve fázi výstavby. Budoucí majitel tak má stále možnost vybrat si zařizovací předměty, kuchyňskou linku, povrchové materiály i celkovou vnitřní barevnost bytu.

Výhody družstevního vlastnictví:
Bez nutnosti dokládat příjem
Není třeba hypoteční úvěr
Cena bytu je splácena formou měsíčních splátek (anuita)
Platby začínají až po kolaudaci – do té doby nic neplatíte

Financování:
Odstupné za byt (zaplatíte teď): 1.777.743,- Kč
Anuita k bytu: 4.021.257,- Kč
Měsíční splátky: 17.411,- Kč. Platí se až po převzetí nemovitosti

Cena celkem: 5.799.000 ,- Kč
Možnost mimořádných splátek nebo úplného doplacení anuity s převodem bytu do osobního vlastnictví.

V přímé blízkosti se nachází veškerá občanská vybavenost včetně škol, školek, lékařů, obchodů a restaurací. Nákupní centrum Nový Smíchov je vzdáleno jen 10 minut jízdy. V docházkové vzdálenosti je mnoho možností k relaxaci a sportu, jako jsou Prokopské údolí a Hlubočepy. Výborné dopravní spojení do města: 3 minuty chůze na MHD, 12 minut na metro B, zastávka Smíchovské nádraží, a na letiště Václava Havla jen 20 minut jízdy. Lokalita je vhodná jak k vlastnímu bydlení, tak za účelem pronajímání. Skvělá investiční příležitost. Ev. číslo: 32112.

Makléř

Máte zájem o tento byt?

Tímto, v souladu s nařízením Evropského parlamentu a Rady (EU) 2016/679, v platném znění, prohlašuji, že mi je alespoň 16 let a uděluji tak svůj souhlas se zpracováním zadaných údajů (jméno, telefon, e-mail, ip adresa) společnosti B3 Technology, s.r.o., IČ: 07330600, se sídlem Novostavby 126/23, 435 11 Lom (správce dat), za účelem předání dotazu z tohoto formuláře Vámi vybranému inzerentovi a zpětného kontaktování mé osoby. Osobní údaje bude správce zpracovávat manuálně i automaticky přímo prostřednictvím svých zaměstnanců. Informace předané tímto formulářem budou uloženy v databázi správce maximálně po dobu 10 let. Odvolání souhlasu s uložením a zpracováním poskytnutých dat lze e-mailem na info@origo-reality.cz. V případě podezření na neoprávněné použití Vámi poskytnutých údajů máte právo předat podnět k šetření Úřadu pro ochranu osobních údajů. Více informací
Chystáte se prodat nemovitost?
Pomůžeme Vám!

Přihlášení k odběru

Nenechte si ujít nejnovější nabídky prodeje bytů 1+kk v Praze 5.