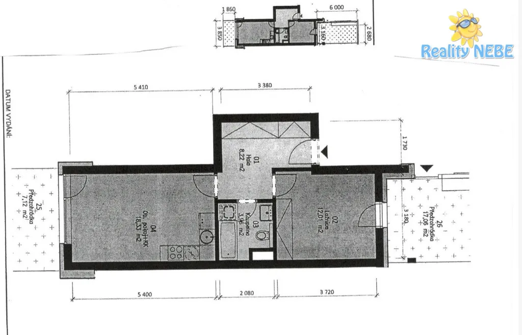
Prodej bytu 2+kk, Praha - Hodkovičky, Šífařská, 68 m2

Šífařská, Hodkovičky - Praha 4

8 900 000 Kč
/za nemovitost
5.000 Kč měsíční poplatky
Hypotéka od 39 778 Kč /měs. Chci hypotéku

Parametry bytu

AdresaŠífařská, Hodkovičky - Praha 4
IDN5344
StavbaCihlová
Stav objektuNovostavba
Patro1. z 5
VybavenoČástečně
Typ objektuPatrový
VlastnictvíOsobní
Užitná plocha68 m2
Podlahová plocha44 m2
Plocha zahrady24 m2
Třída energetické náročnostiG - Mimořádně nehospodárná
Elektřina230V
TopeníÚstřední dálkové
TelekomunikaceTelefon, Internet
DopravaMHD
VodaVodovod
Garáž
Sklep
Terasa
Výtah
Bezbarierový přístup
Parkování

Origo partneři v Praze 4

Stěhovací služby

Výkup a prodej starého nábytku

Popis

Prodej bytu 2kk 44m2 se dvěma předzahrádkama 24m2 v novostavbě na ulici Šífařská Praha 4 Hodkovičky. Novostavba je z roku 2017, je velmi dobře situována do klidného zákoutí v blízkosti golfového hřiště, v bezprostřední dostupnosti stanice MHD (15 min do centra). Byt má vstupní halu s šatními skříněmi a botníkem, zrcadlem, obývací pokoj s kuchyňským koutem. Nová rohová kuchyň má všechny moderní vestavné spotřebiče: Lednice s mrazákem, vestavnou mikrovlnku, el. troubu, sklokeramickou destku s digestoří, myčku. Okna plastová s venkovními bezpečnostními žaluziemi Z obýváku je vstup na terasu a zahrádku 7m2. Samostatná ložnice s šatníkmi skříněmi na protilehlé straně bytu má také vstup na předzahrádku 17m2. Můžete tak využívat slunka nebo stínu po celý den. Koupelna je se sprchovým koutem, žebrovým topením, toaletou. K bytu náleží sklep a garážové stání. Možno přikoupit další garážové stání a další sklep. Byt je vhodný na investici, nyní je pronajat vzornému klientovi.

Makléř

Máte zájem o tento byt?

Tímto, v souladu s nařízením Evropského parlamentu a Rady (EU) 2016/679, v platném znění, prohlašuji, že mi je alespoň 16 let a uděluji tak svůj souhlas se zpracováním zadaných údajů (jméno, telefon, e-mail, ip adresa) společnosti B3 Technology, s.r.o., IČ: 07330600, se sídlem Novostavby 126/23, 435 11 Lom (správce dat), za účelem předání dotazu z tohoto formuláře Vámi vybranému inzerentovi a zpětného kontaktování mé osoby. Osobní údaje bude správce zpracovávat manuálně i automaticky přímo prostřednictvím svých zaměstnanců. Informace předané tímto formulářem budou uloženy v databázi správce maximálně po dobu 10 let. Odvolání souhlasu s uložením a zpracováním poskytnutých dat lze e-mailem na info@origo-reality.cz. V případě podezření na neoprávněné použití Vámi poskytnutých údajů máte právo předat podnět k šetření Úřadu pro ochranu osobních údajů. Více informací
Chystáte se prodat nemovitost?
Pomůžeme Vám!

Přihlášení k odběru

Nenechte si ujít nejnovější nabídky prodeje bytů 2+kk v Praze 4.