Prodej rodinného domu, Svratka, 135 m2

Svratka

1 350 000 Kč
/za nemovitost
včetně právního servisu, poplatků i zprostředkovatelské provize
Hypotéka od 6 034 Kč /měs. Chci hypotéku

Parametry domu

AdresaSvratka
StavbaSmíšená
Stav objektuPřed rekonstrukcí
Užitná plocha135 m2
Zastavěná plocha185 m2
Plocha pozemku335 m2
Elektřina230V
PlynPlynovod
OdpadVeřejná kanalizace
VodaVodovod, Studna
Sklep
Parkování

Origo partneři v Svratce

Popis

RD Svratka, ul. Libušina, v blízkosti centra města, IHNED VOLNÝ, vynikající občanská vybavenost (obchody, restaurace, kavárna, cukrárna, pekárna, pošta, knihovna, lékaři, lékárna, optika, základní škola, mateřská škola a další)
K rekonstrukci na trvalé bydlení, rekreaci, pronájem nebo jako stavební pozemek.

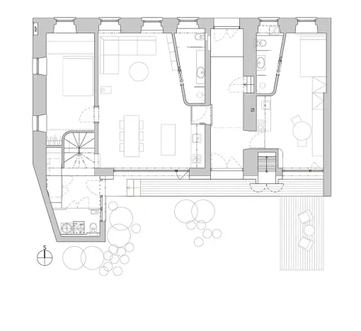
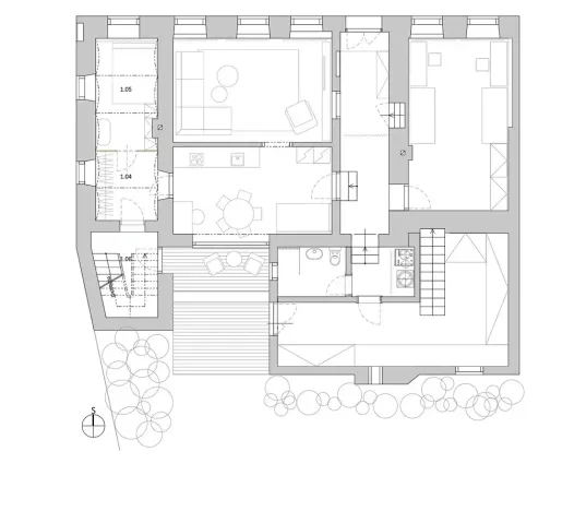
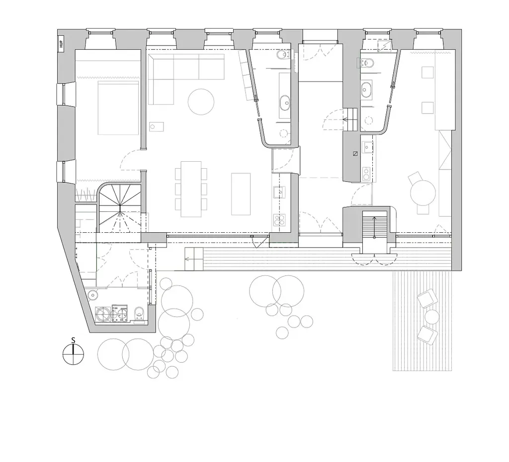
Zastavěná plocha 185m2, plocha pozemku 335m2, na pozemek, zahradu orientovanou na Jih je vjezd a vstup z boční ulice.

Dům je připojen na všechny inženýrské sítě: elektřina, plyn, voda, kanalizace (splašková a dešťová), studna ve sklepě.

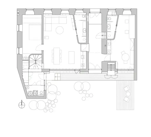
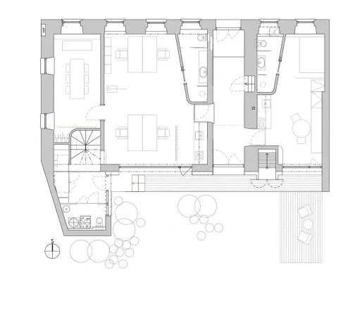
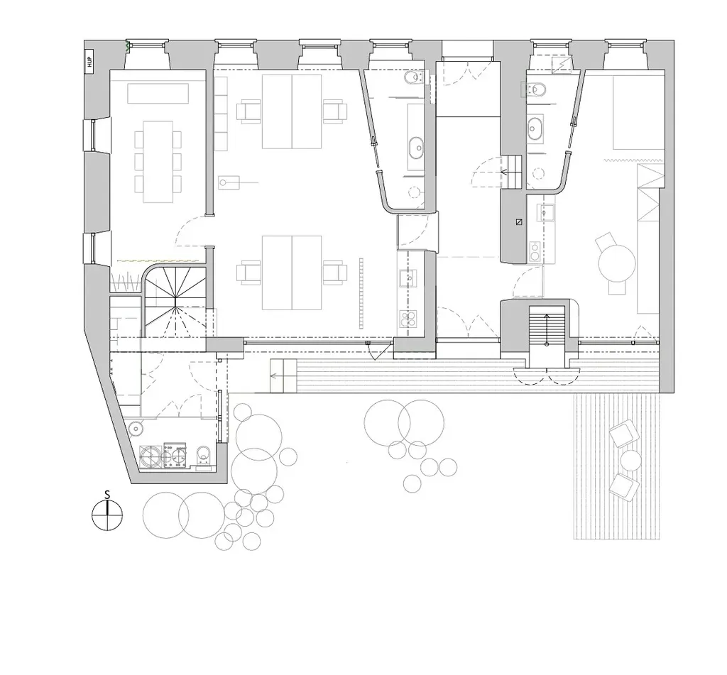
Stávající dispozice 4+1, vstupní chodba 13m2, pokoje 22 + 23 + 9, podkrovní pokoj 12 m2, kuchyně 18m2, chodba 6+15m2, koupelna 4m2, WC 2m2, dílna 10m2, sklep 9m2, na zahradě kůlna.

Možné využití domu: rekreační chalupa, pronájem apartmánů, rodinný dům, sídlo firmy.
Na nemovitosti nebyl v minulosti čerpán žádný dotační projekt.
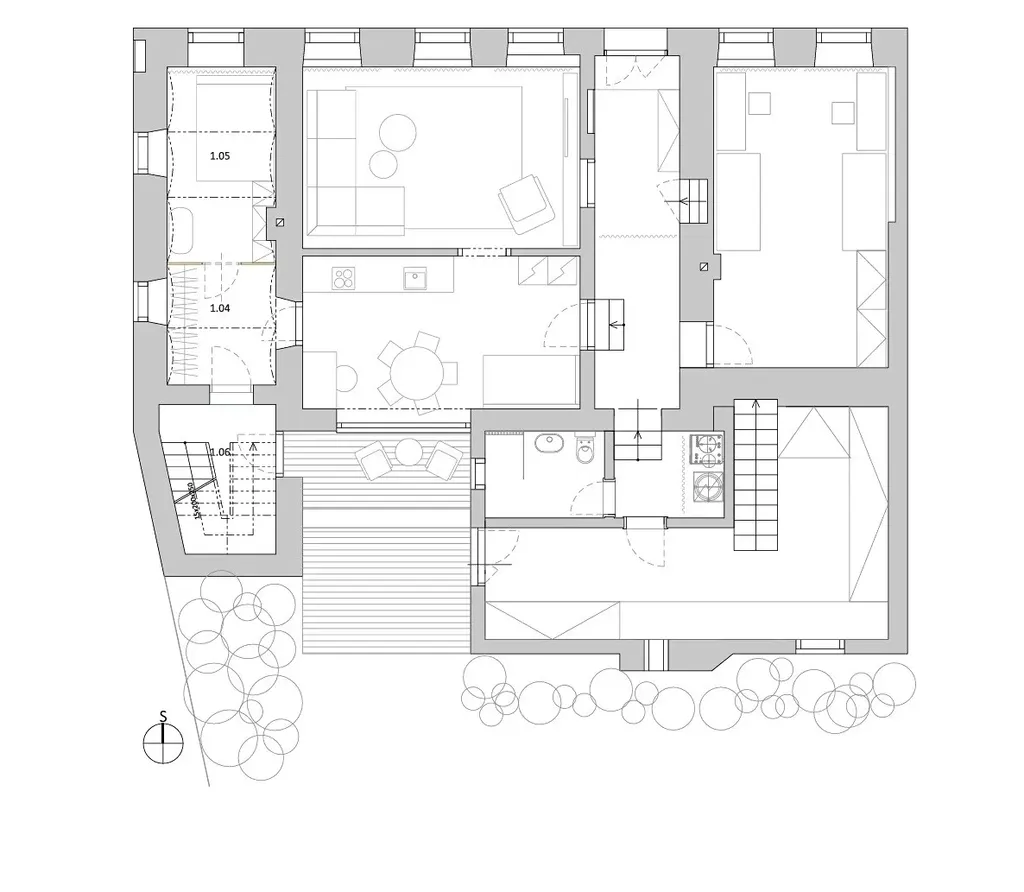
Je vydáno platné stavební povolení na stavební úpravy domu pro podnikatelské účely (kanceláře, sklad, studio) se 4 parkovacími místy. Dále je zpracován návrh několika variant účelu využití: RD s kanceláří/provozovnou, kanceláře s možností přespání/bydlení, apartmány k pronájmu. Projektová dokumentace v RK.
Další foto a dokumentace žádejte u makléře.
K dispozici a prohlídkám ihned

Makléř

Máte zájem o tento dům?

Tímto, v souladu s nařízením Evropského parlamentu a Rady (EU) 2016/679, v platném znění, prohlašuji, že mi je alespoň 16 let a uděluji tak svůj souhlas se zpracováním zadaných údajů (jméno, telefon, e-mail, ip adresa) společnosti B3 Technology, s.r.o., IČ: 07330600, se sídlem Novostavby 126/23, 435 11 Lom (správce dat), za účelem předání dotazu z tohoto formuláře Vámi vybranému inzerentovi a zpětného kontaktování mé osoby. Osobní údaje bude správce zpracovávat manuálně i automaticky přímo prostřednictvím svých zaměstnanců. Informace předané tímto formulářem budou uloženy v databázi správce maximálně po dobu 10 let. Odvolání souhlasu s uložením a zpracováním poskytnutých dat lze e-mailem na info@origo-reality.cz. V případě podezření na neoprávněné použití Vámi poskytnutých údajů máte právo předat podnět k šetření Úřadu pro ochranu osobních údajů. Více informací
Chystáte se prodat nemovitost?
Pomůžeme Vám!

Přihlášení k odběru

Nenechte si ujít nejnovější nabídky prodeje rodinných domů v Svratce.