Prodej činžovního domu, Praha - Smíchov, Arbesovo náměstí, 930 m2 (ID: 1976382)

Arbesovo náměstí, Praha, Smíchov

Cena na vyžádání
/za nemovitost
info v RK
Získejte výhodnou HYPOTÉKU Chci hypotéku

Parametry nemovitosti

AdresaArbesovo náměstí, Praha, Smíchov
ID00183
StavbaCihlová
Stav objektuVelmi dobrý
VybavenoČástečně
Lokalita objektuCentrum obce
Užitná plocha930 m2
Podlahová plocha930 m2
Třída energetické náročnostiG - Mimořádně nehospodárná
Garáž
Výtah
Parkování

Origo partneři v Praze 5

Stěhovací služby

Výkup a prodej starého nábytku

Popis

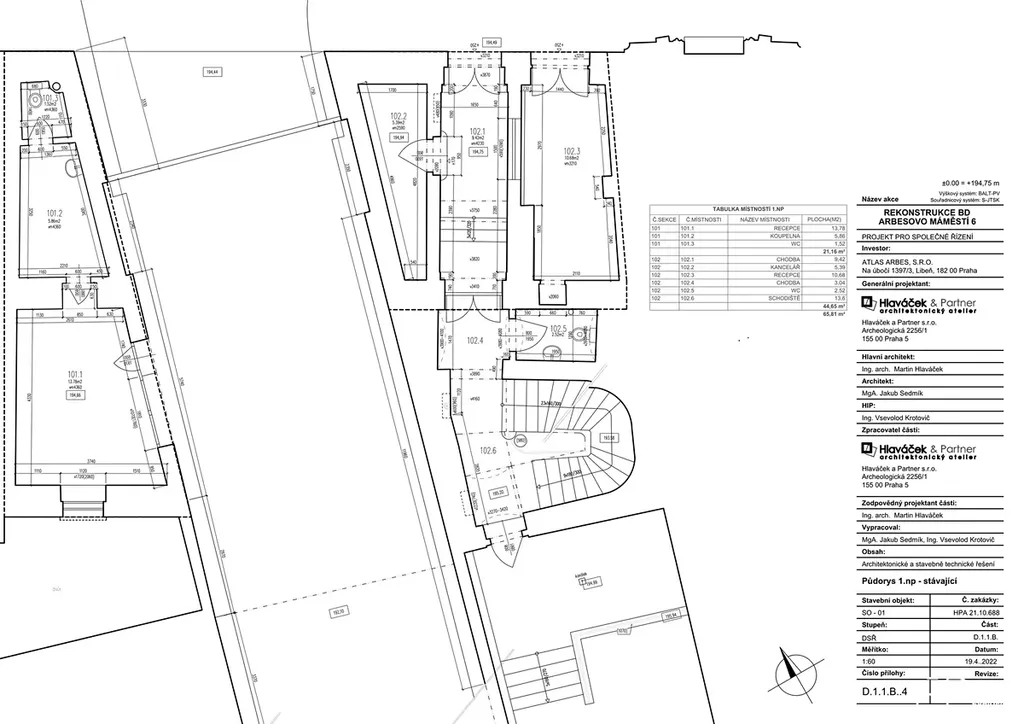
Arbesovo náměstí 6, Praha 5 – Smíchov
Dlouhodobý nájem | mezinárodní nájemce | indexace | share deal

Vážené dámy, vážení pánové,


dovolujeme si Vám nabídnout k prodeji prémiovou výnosovou nemovitost ARBES PARK, situovanou v jedné z nejžádanějších lokalit centra Prahy – na Arbesově náměstí, v bezprostřední blízkosti Malé Strany a Anděla.


Nemovitost prošla kompletní rekonstrukcí v roce 2024 a je plně pronajata mezinárodní společnosti, která nemovitost dlouhodobě provozuje a řádně a včas plní všechny své platební povinnosti. Nájemní smlouva je uzavřena na dlouhodobý horizont a obsahuje indexaci nájemného.

Základní parametry nemovitosti

Adresa: Arbesovo náměstí 6, Praha 5 – Smíchov

Stav: kompletní rekonstrukce 2024 (bez nutnosti dalších investic)

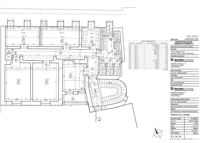
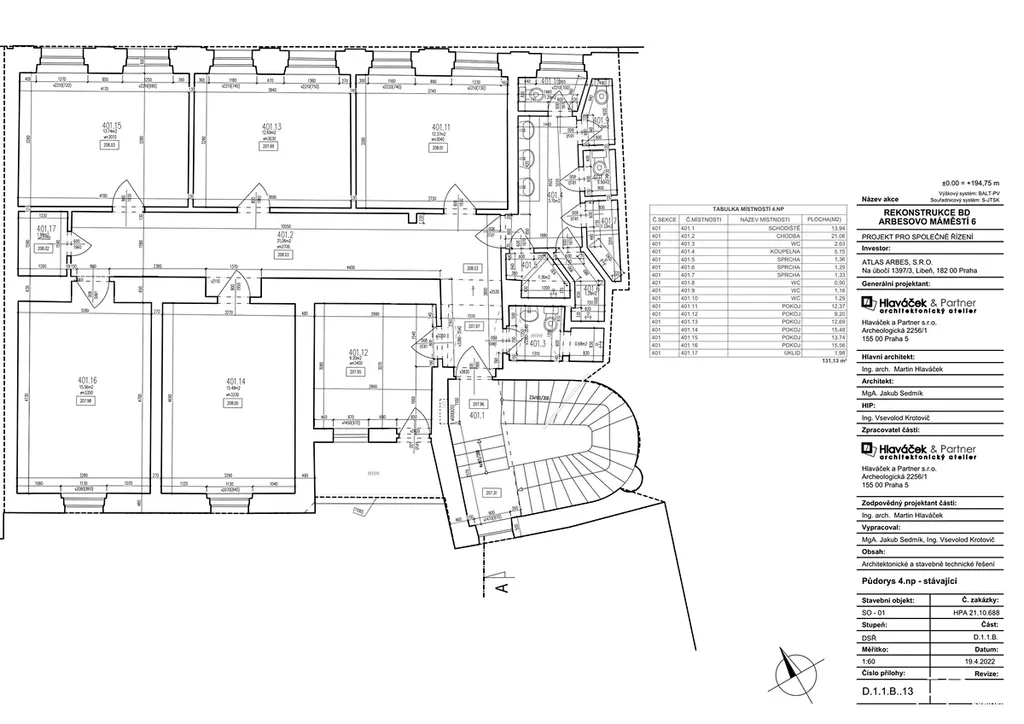
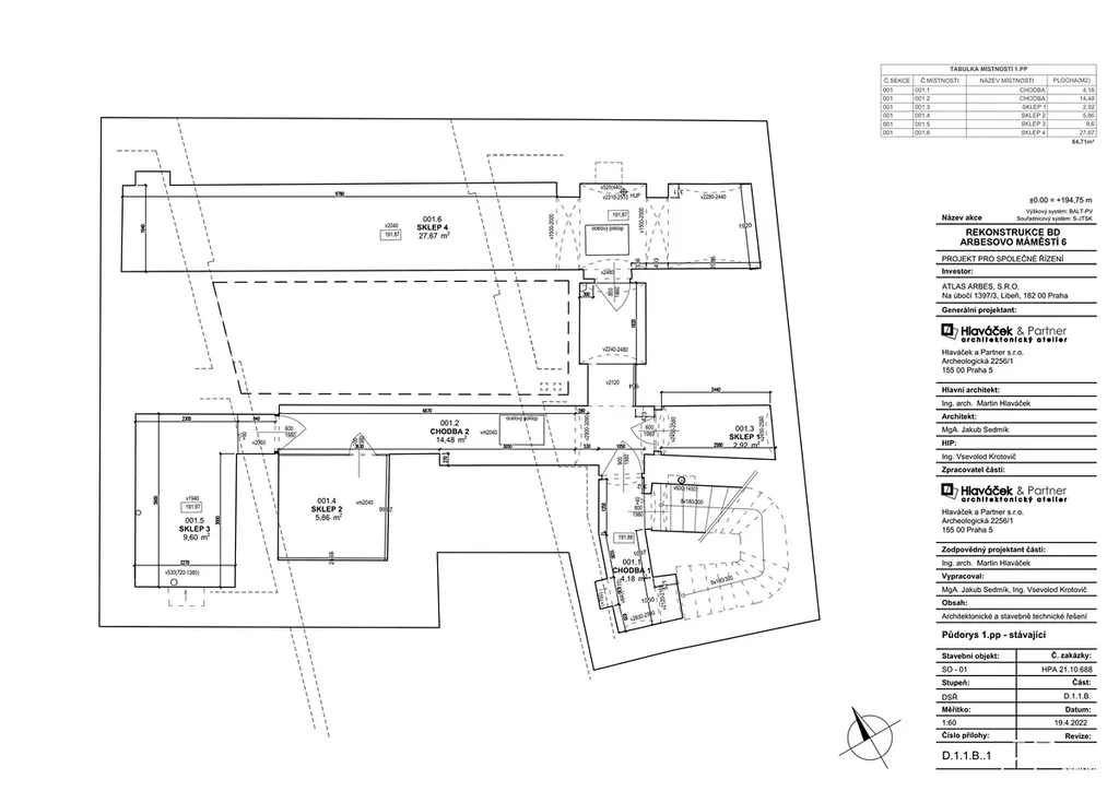
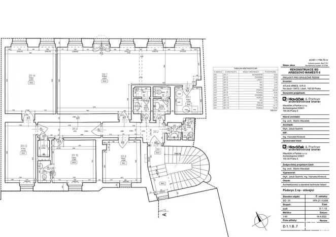
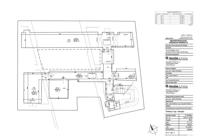
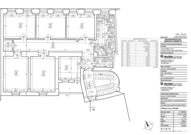
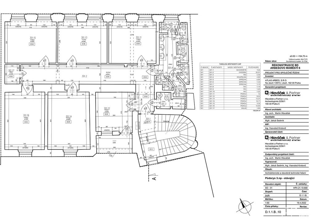
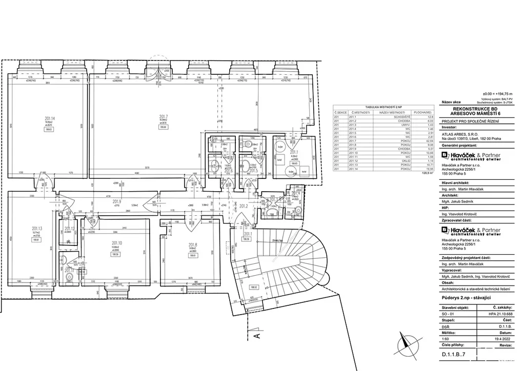
Podlažnost: 6 NP (4 nadzemní podlaží + přízemí + suterén)

HPP: 929,66 m²

Pozemky: 255 m²

Vlastnictví: osobní

Provozní charakteristika

Kolaudace: objekt je zkolaudován pro provoz ubytovacího zařízení

Kapacita: 116 lůžek

Dispozice: pokoje, recepce s přístupem z ulice, společenské prostory, dvůr, kompletní sociální zázemí

Sociální zázemí: 16 WC, 12 sprchových kabin, 16 umyvadel

Technické a provozní zázemí: 4 úklidové místnosti

Průjezd budovou Arbesovo náměstí 6 je řešen věcným břemenem ve prospěch třetí strany, bez omezení běžného provozu ubytovacího zařízení.


Lokalita & budoucí potenciál

Arbesovo náměstí patří mezi tradiční a dlouhodobě vyhledávané městské lokality Prahy 5.
Díky své poloze mezi Andělem, Újezdem a Malou Stranou, výborné dopravní dostupnosti (metro, tramvaje) a postupné revitalizaci širšího okolí Smíchova má lokalita výrazný dlouhodobý růstový potenciál.

Z pohledu investora se jedná o kombinaci:

stabilního cash-flow,

atraktivního městského umístění,

a silného potenciálu dalšího zhodnocení v čase.



Cena: na vyžádání
Kompletní ekonomické podklady, detailní informace k nájemní smlouvě a návrh transakční struktury poskytneme vážným zájemcům na základě NDA.

Rádi rovněž zajistíme osobní prohlídku a odpovíme na veškeré technické i investiční dotazy.

Makléř

Máte zájem o tuto nemovistost?

Tímto, v souladu s nařízením Evropského parlamentu a Rady (EU) 2016/679, v platném znění, prohlašuji, že mi je alespoň 16 let a uděluji tak svůj souhlas se zpracováním zadaných údajů (jméno, telefon, e-mail, ip adresa) společnosti B3 Technology, s.r.o., IČ: 07330600, se sídlem Novostavby 126/23, 435 11 Lom (správce dat), za účelem předání dotazu z tohoto formuláře Vámi vybranému inzerentovi a zpětného kontaktování mé osoby. Osobní údaje bude správce zpracovávat manuálně i automaticky přímo prostřednictvím svých zaměstnanců. Informace předané tímto formulářem budou uloženy v databázi správce maximálně po dobu 10 let. Odvolání souhlasu s uložením a zpracováním poskytnutých dat lze e-mailem na info@origo-reality.cz. V případě podezření na neoprávněné použití Vámi poskytnutých údajů máte právo předat podnět k šetření Úřadu pro ochranu osobních údajů. Více informací
Chystáte se prodat nemovitost?
Pomůžeme Vám!

Přihlášení k odběru

Nenechte si ujít nejnovější nabídky prodeje činžovních domů v Praze 5.