Prodej bytu 3+1, Znojmo, Dukelských bojovníků, 72 m2

Dukelských bojovníků, Znojmo

4 290 000 Kč
/za nemovitost
včetně poplatků, včetně provize, včetně právního servisu
Hypotéka od 19 174 Kč /měs. Chci hypotéku

Parametry bytu

AdresaDukelských bojovníků, Znojmo
ID00255
StavbaPanelová
Stav objektuVelmi dobrý
Patro4. z 6
VybavenoNe
Lokalita objektuKlidná část obce
VlastnictvíOsobní
Užitná plocha72 m2
Třída energetické náročnostiB - Velmi úsporná
Ukazatel energetické náročnosti93 kWh/m2 za rok
Elektřina230V
OdpadVeřejná kanalizace
KomunikaceAsfaltová
DopravaSilnice, MHD, Autobus
VodaVodovod
Topné tělesoRadiátory
Zdroj topeníÚstřední dálkové
Zdroj teplé vodyCentrální dálkový ohřev
Balkon
Sklep
Výtah

Origo partneři v Znojmu

Popis

Tento byt je hotovým, funkčním a příjemným domovem – čeká jen na to, až do něho přinesete vlastní život. Nabízí jistotu panelového domu po kompletní revitalizaci, praktickou dispozici a prostor pro rodinu, která hledá pohodlí bez nutnosti zásadních investic.

Nachází v klidné obytné zástavbě ve Znojmě, na ulici Dukelských bojovníků. Jen pár kroků od domu je autobusová zastávka Dukelská, sídliště, díky které máte pohodlné spojení do dalších částí města. Stejně blízko naleznete obchod s potravinami Hruška, restauraci, lékárnu či školku, kus opodál pak poštu, velký supermarket Kaufland nebo třeba bazén a spoustu dalších služeb. Za domem se navíc nachází dětské hřiště a malý skatepark, což ocení zejména rodiny s dětmi. 

Samotný dům prošel revitalizací – má novou fasádu, nová okna, nové vstupy i nový výtah. Společné prostory působí udržovaně a dům jako celek dává jasně najevo, že je o něj pečováno. Byt se nachází ve 3. patře, což znamená příjemnou kombinaci dostatečné výšky pro klid a soukromí, ale zároveň pohodlné dostupnosti díky výtahu. Vytápění je řešeno dálkově, takže odpadá starost o vlastní zdroj tepla a vše funguje jednoduše a komfortně. K bytu náleží také sklep, který poskytne další úložný prostor na sezónní věci, sportovní vybavení nebo cokoli, co nechcete mít přímo v bytě.

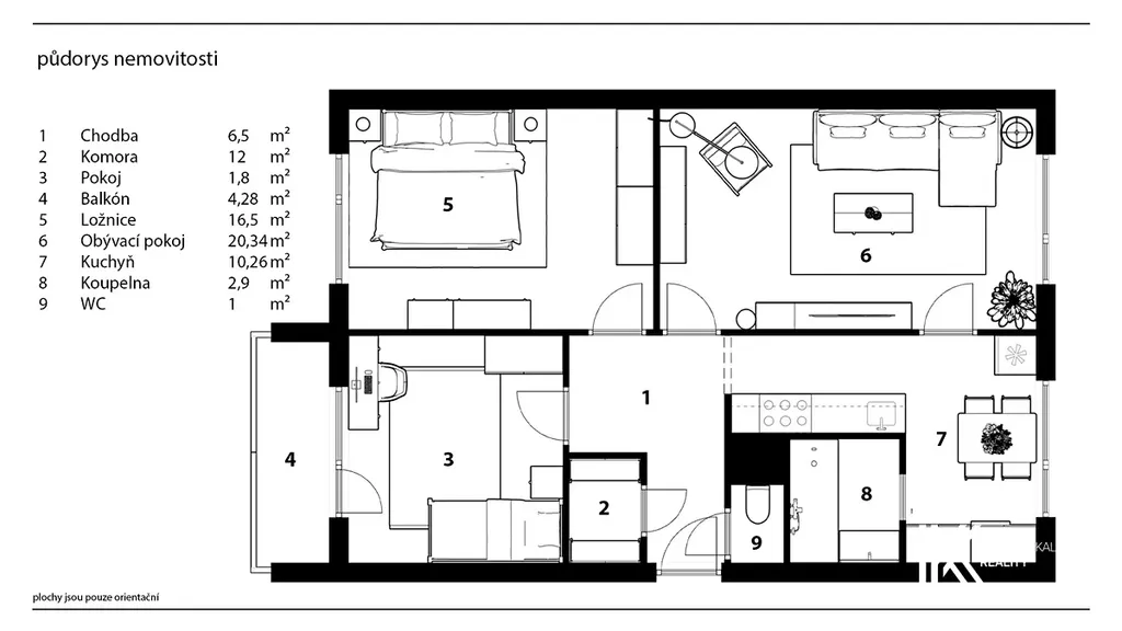
Dispozice 3+1 patří mezi nejoblíbenější a nejpraktičtější. Byt prošel rekonstrukcí přibližně před deseti lety a je ve velmi pěkném, udržovaném a nadčasovém stavu. Nepůsobí zastarale, ale zároveň si zachovává útulnost skutečného domova. Po vstupu do bytu vás přivítá chodba, která přirozeně propojuje jednotlivé místnosti. Je zde dostatek prostoru pro úložné řešení – vestavěnou skříň, botník i místo na kabáty, takže hned u dveří může vzniknout praktické zázemí pro každodenní fungování.

Obývací pokoj je přístupný jak z chodby, tak z kuchyně, což mu dodává příjemnou otevřenost a variabilitu. Díky propojení s kuchyní působí vzdušně a světle, a přitom si zachovává dostatek soukromí. Kuchyně je samostatná, řešená do tvaru L, s vlastní jídelní částí. Je to prostor, kde má všechno své místo – pracovní plocha, úložné skříňky i stůl, u kterého můžete začínat den společnou snídaní. Díky oddělení od obývací části zůstává vaření přirozeně oddělené, ale zároveň jste stále v kontaktu s děním v bytě.

Další dva pokoje jsou samostatné a neprůchozí. Jeden z nich má navíc vlastní balkon – místo, kde si ráno vychutnáte kávu, večer sklenku vína nebo kde můžete pěstovat bylinky a květiny. Tento pokoj může sloužit jako ložnice s příjemným napojením na venkovní prostor, nebo jako dětský pokoj. Další pokoj se pak může stát druhým dětským pokojem, pracovnou nebo třeba pokojem pro hosty – podle aktuálních potřeb rodiny.

Koupelna je vybavena vanou, což oceníte při večerním relaxu i při koupání dětí. Toaleta je samostatná, což je praktické řešení zejména pro vícečlennou domácnost. Celý byt působí čistě, udržovaně a připraveně k okamžitému bydlení bez nutnosti zásadních úprav.

Tento byt je ideální volbou pro rodinu hledající stabilní a pohodlné bydlení, pro pár plánující budoucnost i jako investice k pronájmu. Nabízí funkční dispozici, balkon, revitalizovaný dům i klidnou lokalitu s kompletní občanskou vybaveností. Je to místo, kde můžete začít novou kapitolu - zavolejte mi a přijďte se podívat osobně.

Makléř

Máte zájem o tento byt?

Tímto, v souladu s nařízením Evropského parlamentu a Rady (EU) 2016/679, v platném znění, prohlašuji, že mi je alespoň 16 let a uděluji tak svůj souhlas se zpracováním zadaných údajů (jméno, telefon, e-mail, ip adresa) společnosti B3 Technology, s.r.o., IČ: 07330600, se sídlem Novostavby 126/23, 435 11 Lom (správce dat), za účelem předání dotazu z tohoto formuláře Vámi vybranému inzerentovi a zpětného kontaktování mé osoby. Osobní údaje bude správce zpracovávat manuálně i automaticky přímo prostřednictvím svých zaměstnanců. Informace předané tímto formulářem budou uloženy v databázi správce maximálně po dobu 10 let. Odvolání souhlasu s uložením a zpracováním poskytnutých dat lze e-mailem na info@origo-reality.cz. V případě podezření na neoprávněné použití Vámi poskytnutých údajů máte právo předat podnět k šetření Úřadu pro ochranu osobních údajů. Více informací
Chystáte se prodat nemovitost?
Pomůžeme Vám!

Přihlášení k odběru

Nenechte si ujít nejnovější nabídky prodeje bytů 3+1 v Znojmu.