Remax Power 2

Pronájem skladu, Příbram - Příbram I, Plynárenská, 1159 m2

Plynárenská, Příbram I

127 490 Kč
/za měsíc
+ DPH, + energie (cca 10tis Kč), + vratná kauce 1 nájem, neplatíte provizi RK
Získejte výhodnou HYPOTÉKU Chci hypotéku

Parametry nemovitosti

AdresaPlynárenská, Příbram I
IDN04105
StavbaCihlová
Stav objektuPo rekonstrukci
VybavenoAno
Typ objektuPatrový
Lokalita objektuOkraj obce
VlastnictvíOsobní
Užitná plocha1159 m2
Podlahová plocha1159 m2
Třída energetické náročnostiG - Mimořádně nehospodárná
Elektřina230V
PlynPlynovod
OdpadVeřejná kanalizace
TopeníLokální elektrické, Jiné
KomunikaceAsfaltová
TelekomunikaceTelefon, Internet
DopravaVlak, Dálnice, Silnice, MHD, Autobus

Origo partneři v Příbrami

Revize elektrických zařízení

Popis

Nabízíme moderní skladové a kancelářské prostory (1. NP a 2. NP) po rekonstrukci z roku 2014
vhodné pro výrobní, logistické či obchodní společnosti.

K nastěhování od 1. 4. 2026

Preferujeme pronájem celku (skladové i kancelářské prostory).

Základní údaje:

• Nájemné sklad: 110kč/m2
• Parkování: velký počet míst - dle dohody.
• Dopravní dostupnost: 4 minuty pěšky od zastávky Příbram, Plynárenská
• Minimální doba nájmu: 1rok s možností prodloužení
• Možnost úprav prostor dle potřeb nájemce: Ano

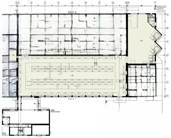
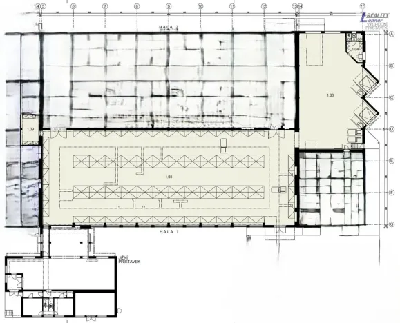
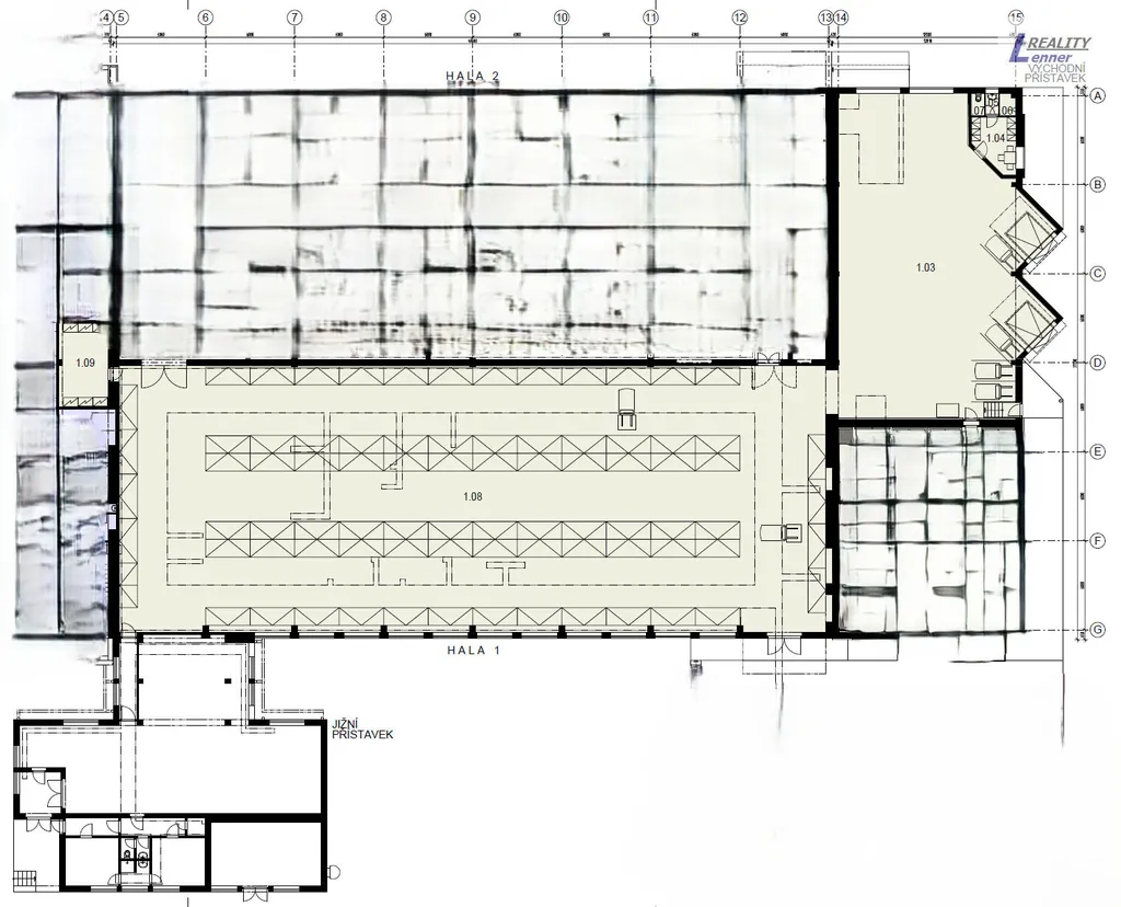
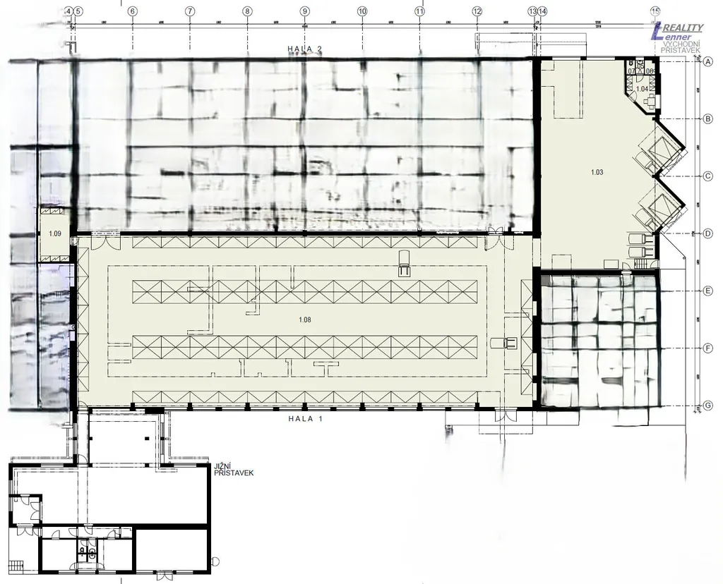
SKLADOVÉ PROSTORY - 1 159,45 m²

Parametry:

• Světla výška: 5m
• Typ podlahy skladu: házený a leštěný drákobeton
• Nosnost podlahy: 2000kg/ m2
• Vybavení: včetně regálového systému
• Zateplení: NE
• Nákladové vjezdy:
2x nakládací rampy SPEDOS vhodné pro vykládku přímo z auta
1x venkovní betovoná rampa s vraty

Volitelná možnost:
Jižní přístavek – 371,6 m²
Multifunkční prostor s infrastrukturou
Užitná plocha: 371,6 m²
Světlá výška: 3,0 m
Sociální zázemí: ano (kuchyňka, WC)
Vytápění: přípojka k dispozici
Voda: přípojka k dispozici

V případě zájmu volejte výhradně zprostředkovatele spravujícího tutu nemovitost.

Makléř

Máte zájem o tuto nemovistost?

Tímto, v souladu s nařízením Evropského parlamentu a Rady (EU) 2016/679, v platném znění, prohlašuji, že mi je alespoň 16 let a uděluji tak svůj souhlas se zpracováním zadaných údajů (jméno, telefon, e-mail, ip adresa) společnosti B3 Technology, s.r.o., IČ: 07330600, se sídlem Novostavby 126/23, 435 11 Lom (správce dat), za účelem předání dotazu z tohoto formuláře Vámi vybranému inzerentovi a zpětného kontaktování mé osoby. Osobní údaje bude správce zpracovávat manuálně i automaticky přímo prostřednictvím svých zaměstnanců. Informace předané tímto formulářem budou uloženy v databázi správce maximálně po dobu 10 let. Odvolání souhlasu s uložením a zpracováním poskytnutých dat lze e-mailem na info@origo-reality.cz. V případě podezření na neoprávněné použití Vámi poskytnutých údajů máte právo předat podnět k šetření Úřadu pro ochranu osobních údajů. Více informací
Chystáte se prodat nemovitost?
Pomůžeme Vám!

Přihlášení k odběru

Nenechte si ujít nejnovější nabídky pronájmu skladů v Příbrami.