Pronájem bytu 1+kk, Ústí nad Labem, Obvodová, 31 m2

Obvodová, Ústí nad Labem, Krásné Březno

7 800 Kč
/za měsíc
Zálohy na služby (SV, TUV, teplo, spol. el. atd.) 1 450 Kč/měs., elektřina se píše na nájemce.
Získejte výhodnou HYPOTÉKU Chci hypotéku

Parametry bytu

AdresaObvodová, Ústí nad Labem, Krásné Březno
ID633
StavbaPanelová
Stav objektuVelmi dobrý
Patro3.
VlastnictvíOsobní
Užitná plocha31 m2
Třída energetické náročnostiD - Méně úsporná
Elektřina230V
OdpadVeřejná kanalizace
VodaVodovod
Zdroj topeníCentrální dálkové
Zdroj teplé vodyCentrální dálkový ohřev
Sklep

Origo partneři v Ústí nad Labem

Okna a dveře

Rekonstrukce

Popis

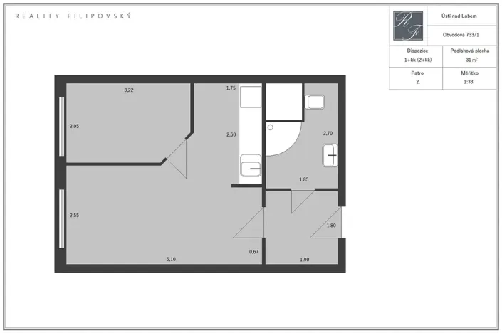
Dovoluji si Vám nabídnout pronájem mimořádně dobře řešeného bytu 1+kk, který je dispozičně upraven na dispozici 2+kk.

Do vzniklé oddělené místnosti lze umístit plnohodnotné dvoulůžko i menší úložné prostory. Předsíň pak nabízí spoustu místa pro šatní skříň, kuchyňská linka je vybavena varnou deskou i troubou a do koupelny lze připojit vrchem plněnou automatickou pračku.

Nájemné činí 7 800 Kč/měs., zálohy na služby (SV, TUV, teplo, spol. el. atd.) 1 450 Kč/měs., elektřina se píše na nájemce. Kauce 15 000 Kč, provize RK 7 000 Kč.

Makléř

Máte zájem o tento byt?

Tímto, v souladu s nařízením Evropského parlamentu a Rady (EU) 2016/679, v platném znění, prohlašuji, že mi je alespoň 16 let a uděluji tak svůj souhlas se zpracováním zadaných údajů (jméno, telefon, e-mail, ip adresa) společnosti B3 Technology, s.r.o., IČ: 07330600, se sídlem Novostavby 126/23, 435 11 Lom (správce dat), za účelem předání dotazu z tohoto formuláře Vámi vybranému inzerentovi a zpětného kontaktování mé osoby. Osobní údaje bude správce zpracovávat manuálně i automaticky přímo prostřednictvím svých zaměstnanců. Informace předané tímto formulářem budou uloženy v databázi správce maximálně po dobu 10 let. Odvolání souhlasu s uložením a zpracováním poskytnutých dat lze e-mailem na info@origo-reality.cz. V případě podezření na neoprávněné použití Vámi poskytnutých údajů máte právo předat podnět k šetření Úřadu pro ochranu osobních údajů. Více informací
Chystáte se prodat nemovitost?
Pomůžeme Vám!