Pronájem bytu 2+kk, Praha - Hostivař, Bratislavská, 64 m2

Bratislavská, Praha, Hostivař

22 000 Kč
/za měsíc
+ domovní služby 4590 Kč/měsíc + elektřina převodem
Získejte výhodnou HYPOTÉKU Chci hypotéku

Parametry bytu

AdresaBratislavská, Praha, Hostivař
IDN00311
StavbaCihlová
Stav objektuNovostavba
Patro6. z 6
VybavenoNe
Lokalita objektuKlidná část obce
VlastnictvíOsobní
Užitná plocha64 m2
Podlahová plocha64 m2
Třída energetické náročnostiB - Velmi úsporná
Elektřina230V
OdpadVeřejná kanalizace
TopeníÚstřední dálkové
TelekomunikaceInternet, Kabelová televize
DopravaSilnice, MHD, Autobus
Topné tělesoRadiátory
Zdroj topeníÚstřední dálkové
Zdroj teplé vodyCentrální dálkový ohřev
Balkon
Garáž
Sklep
Výtah
Bezbarierový přístup
Parkování

Origo partneři v Praze 10

Stěhovací služby

Výkup a prodej starého nábytku

Popis

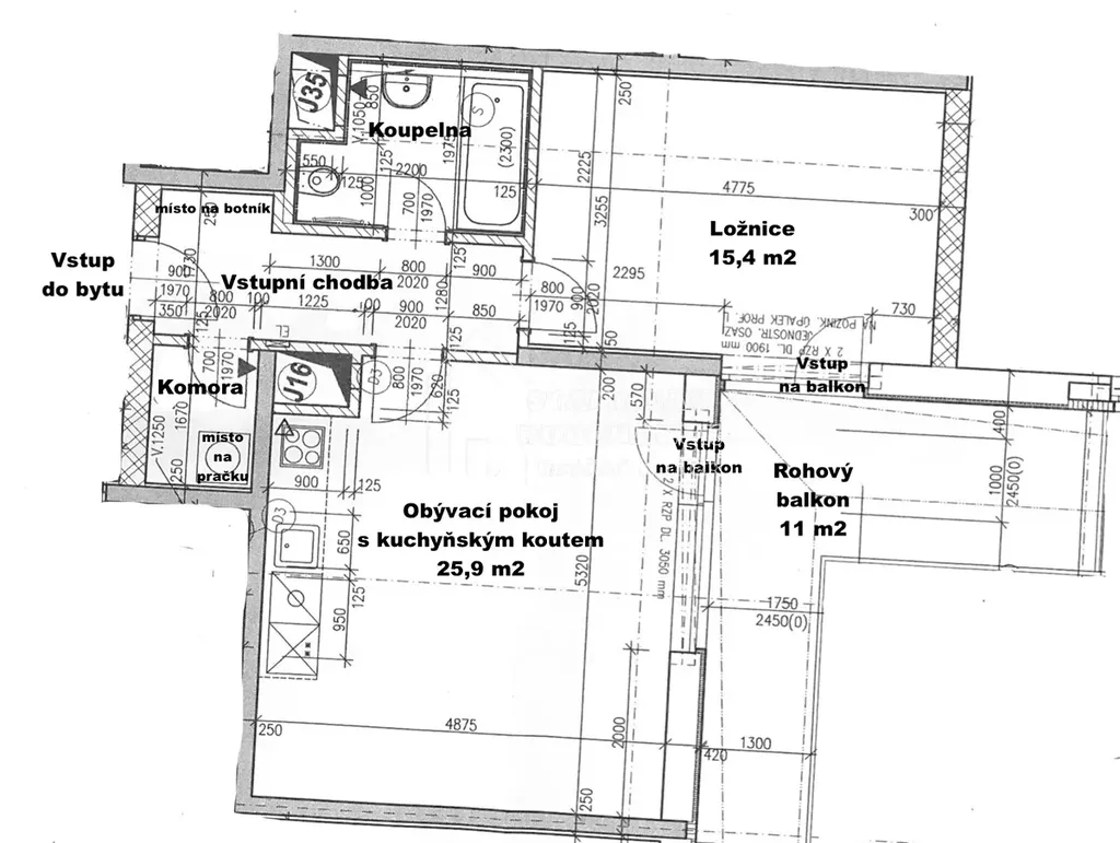
Od 4.3.2026 je Vám k dispozici ke dlouhodobému pronájmu tento hezký, nevybavený byt 2+kk, 53 m2 + balkon 11 m2, s garážovým stáním a sklepem, Praha 10-Hostivař, ul. Bratislavská.

Byt je situován v nejvyšším, 6. patře cihlové novostavby s výtahem. Obývací pokoj s kuchyňským koutem má orientaci na jih, ložnice pak na západ. Z obou pokojů je možné vstoupit na rohový balkon.

Součástí kuchyňské linky je elektrická trouba se sklokeramickou varnou deskou, digestoř s externím odtahem, myčka, vestavěná lednička s mrazákem a mikrovlnka. V koupelně je vana a WC. V bytě je též komora, kde je přípojka na pračku/sušičku.

Makléř

Máte zájem o tento byt?

Tímto, v souladu s nařízením Evropského parlamentu a Rady (EU) 2016/679, v platném znění, prohlašuji, že mi je alespoň 16 let a uděluji tak svůj souhlas se zpracováním zadaných údajů (jméno, telefon, e-mail, ip adresa) společnosti B3 Technology, s.r.o., IČ: 07330600, se sídlem Novostavby 126/23, 435 11 Lom (správce dat), za účelem předání dotazu z tohoto formuláře Vámi vybranému inzerentovi a zpětného kontaktování mé osoby. Osobní údaje bude správce zpracovávat manuálně i automaticky přímo prostřednictvím svých zaměstnanců. Informace předané tímto formulářem budou uloženy v databázi správce maximálně po dobu 10 let. Odvolání souhlasu s uložením a zpracováním poskytnutých dat lze e-mailem na info@origo-reality.cz. V případě podezření na neoprávněné použití Vámi poskytnutých údajů máte právo předat podnět k šetření Úřadu pro ochranu osobních údajů. Více informací
Chystáte se prodat nemovitost?
Pomůžeme Vám!

Přihlášení k odběru

Nenechte si ujít nejnovější nabídky pronájmu bytů 2+kk v Praze 10.