Prodej rodinného domu, Moravský Písek, Ostrožská, 178 m2 (ID: 1975012)

Ostrožská, Moravský Písek

4 295 000 Kč
/za nemovitost
včetně poplatků, včetně provize, včetně právního servisu
Hypotéka od 19 196 Kč /měs. Chci hypotéku

Parametry domu

AdresaOstrožská, Moravský Písek
ID03476
StavbaCihlová
Stav objektuVelmi dobrý
VybavenoČástečně
Typ objektuPatrový
Druh objektuSamostatný
Lokalita objektuKlidná část obce
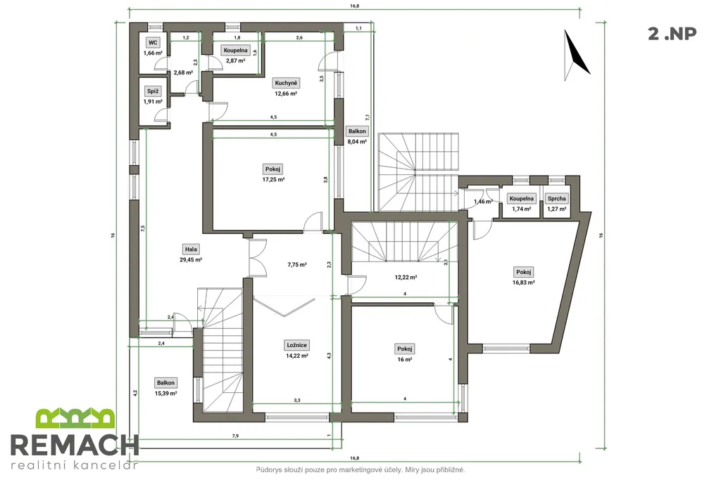
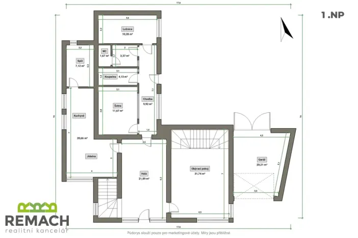
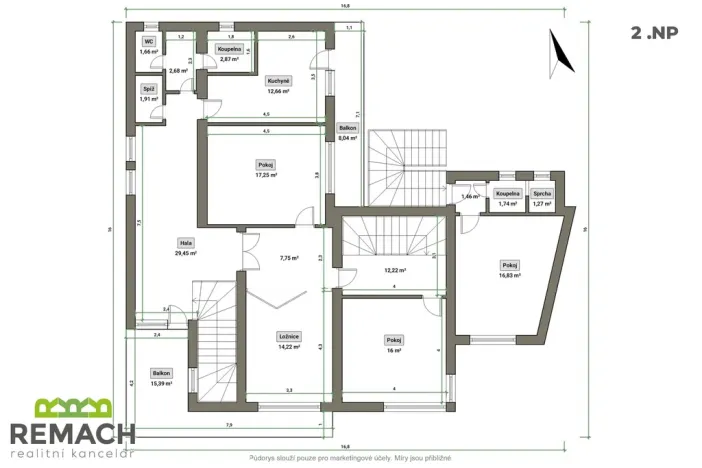
Užitná plocha178 m2
Zastavěná plocha191 m2
Plocha pozemku716 m2
Plocha zahrady424 m2
Třída energetické náročnostiG - Mimořádně nehospodárná
Elektřina230V, 400V
OdpadVeřejná kanalizace
KomunikaceBetonová, Asfaltová
DopravaVlak, Silnice, Autobus
VodaMístní zdroj vody, Vodovod
Balkon
Garáž
Terasa
Parkování

Origo partneři v Moravském Písku

Popis

Rodinný dům v Moravském Písku – komfortní bydlení v klidné lokalitě

S užitnou plochou 178 m² v hlavní budově a celkovým pozemkem o velikosti 716 m² se jedná o ideální prostor pro ty, kteří chtějí bydlet v klidném prostředí s dostatkem soukromí a prostoru. Z celkové rozlohy pozemku připadá 424 m² na zahradu, kde si můžete vytvořit relaxační oázu nebo prostor pro rodinné aktivity. Vzrostlé stromy za domem jen podpoří soukromí a rodinnou pohodu.

Stávající dispozice nemusí být finálním řešením. Zde můžete rozehrát svoji symfonii a prostor si upravot podle vlastních potřeb a představ.
Dům disponuje balkónem a terasou, které vám poskytnou prostor k odpočinku, ranní kávě nebo posezení s přáteli.

Dostatek parkovacího prostoru. Velkým benefitem této nemovitosti je garáž, která svými rozměry pamatuje a na novější a tedy objemnější auta. Další možnost parkování je před domem a to až pro 3 auta. Tohle jistě ocení každá rodina s více vozy nebo návštěvami.

Skvělá lokalita. Moravský Písek je vyhledávaná lokalita s klidným prostředím a dobrou dostupností do okolních měst. Navíc nyní, po otevření dálnice, to máte s dostupností o dost jednoduší, a rychlejší, nejen do Hradiště, Bzence ale i Zlína.

Makléř

Máte zájem o tento dům?

Tímto, v souladu s nařízením Evropského parlamentu a Rady (EU) 2016/679, v platném znění, prohlašuji, že mi je alespoň 16 let a uděluji tak svůj souhlas se zpracováním zadaných údajů (jméno, telefon, e-mail, ip adresa) společnosti B3 Technology, s.r.o., IČ: 07330600, se sídlem Novostavby 126/23, 435 11 Lom (správce dat), za účelem předání dotazu z tohoto formuláře Vámi vybranému inzerentovi a zpětného kontaktování mé osoby. Osobní údaje bude správce zpracovávat manuálně i automaticky přímo prostřednictvím svých zaměstnanců. Informace předané tímto formulářem budou uloženy v databázi správce maximálně po dobu 10 let. Odvolání souhlasu s uložením a zpracováním poskytnutých dat lze e-mailem na info@origo-reality.cz. V případě podezření na neoprávněné použití Vámi poskytnutých údajů máte právo předat podnět k šetření Úřadu pro ochranu osobních údajů. Více informací
Chystáte se prodat nemovitost?
Pomůžeme Vám!

Přihlášení k odběru

Nenechte si ujít nejnovější nabídky prodeje rodinných domů v Moravském Písku.