Prodej rodinného domu, Kraslice, Dukelská, 650 m2 (ID: 1974973)

Dukelská, Kraslice

3 419 000 Kč
/za nemovitost
Hypotéka od 15 281 Kč /měs. Chci hypotéku

Parametry domu

AdresaDukelská, Kraslice
ID884172
StavbaCihlová
Stav objektuDobrý
VybavenoČástečně
Druh objektuSamostatný
Lokalita objektuKlidná část obce
VlastnictvíOsobní
Užitná plocha650 m2
Plocha pozemku460 m2

Origo partneři v Kraslicích

Popis

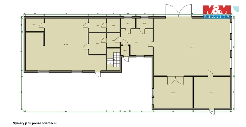
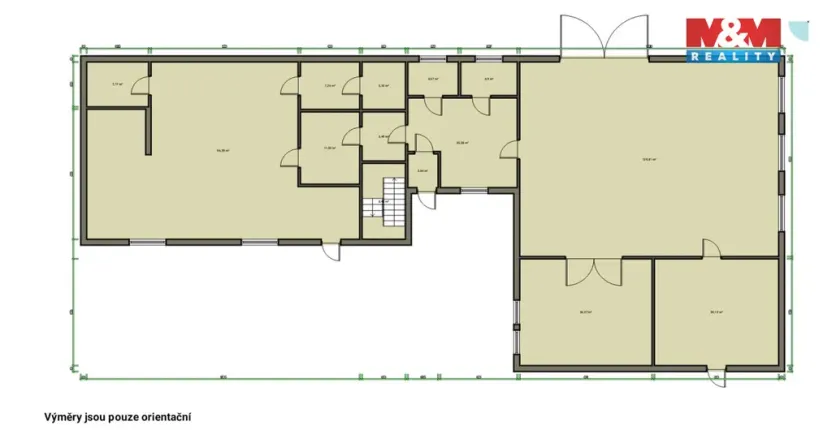
Prodej víceúčelové nemovitosti – investice a podnikání, Kraslice

Nabízíme k prodeji soubor dvou budov v klidné části města Kraslice, který představuje atraktivní příležitost pro investory i podnikatele.

První budova je dispozičně řešena jako dům se dvěma bytovými jednotkami, vhodný k okamžitému pronájmu nebo vlastnímu bydlení. U této budovy je navíc zateplená střecha, což přispívá k lepší energetické úspornosti a nižším provozním nákladům. Druhá budova je připravena k využití pro podnikání, skladování, dílnu či provozovnu a zároveň nabízí možnost vybudování dalších bytových jednotek, čímž lze výrazně navýšit investiční potenciál celé nemovitosti.

Objekt byl v minulosti dlouhodobě pronajímán, což potvrzuje jeho schopnost generovat stabilní výnos. Nemovitost je napojena na veřejný vodovod a kanalizaci, vytápění zajišťuje plynový kotel, v jednom z objektů je navíc možnost vytápění krbem.

Tato nabídka spojuje bydlení, podnikání i budoucí zhodnocení v jednom celku.

Pro více informací a

Makléř

Máte zájem o tento dům?

Tímto, v souladu s nařízením Evropského parlamentu a Rady (EU) 2016/679, v platném znění, prohlašuji, že mi je alespoň 16 let a uděluji tak svůj souhlas se zpracováním zadaných údajů (jméno, telefon, e-mail, ip adresa) společnosti B3 Technology, s.r.o., IČ: 07330600, se sídlem Novostavby 126/23, 435 11 Lom (správce dat), za účelem předání dotazu z tohoto formuláře Vámi vybranému inzerentovi a zpětného kontaktování mé osoby. Osobní údaje bude správce zpracovávat manuálně i automaticky přímo prostřednictvím svých zaměstnanců. Informace předané tímto formulářem budou uloženy v databázi správce maximálně po dobu 10 let. Odvolání souhlasu s uložením a zpracováním poskytnutých dat lze e-mailem na info@origo-reality.cz. V případě podezření na neoprávněné použití Vámi poskytnutých údajů máte právo předat podnět k šetření Úřadu pro ochranu osobních údajů. Více informací
Chystáte se prodat nemovitost?
Pomůžeme Vám!

Přihlášení k odběru

Nenechte si ujít nejnovější nabídky prodeje rodinných domů v Kraslicích.