Pronájem bytu 1+kk, Brno, Křepelčí, 39 m2

Křepelčí, Brno, Žebětín

13 800 Kč
/za měsíc
+ služby, + kauce
Získejte výhodnou HYPOTÉKU Chci hypotéku

Parametry bytu

AdresaKřepelčí, Brno, Žebětín
ID9
StavbaCihlová
Stav objektuNovostavba
Patro3. z 5
Lokalita objektuKlidná část obce
VlastnictvíOsobní
Užitná plocha39 m2
Třída energetické náročnostiB - Velmi úsporná
Elektřina230V
OdpadVeřejná kanalizace
TopeníÚstřední dálkové
KomunikaceBetonová
TelekomunikaceInternet, Kabelová televize
DopravaDálnice, Silnice, MHD
VodaVodovod
Topné tělesoRadiátory
Zdroj topeníCentrální dálkové
Balkon
Sklep
Terasa
Výtah
Bezbarierový přístup

Origo partneři v Brně

Popis

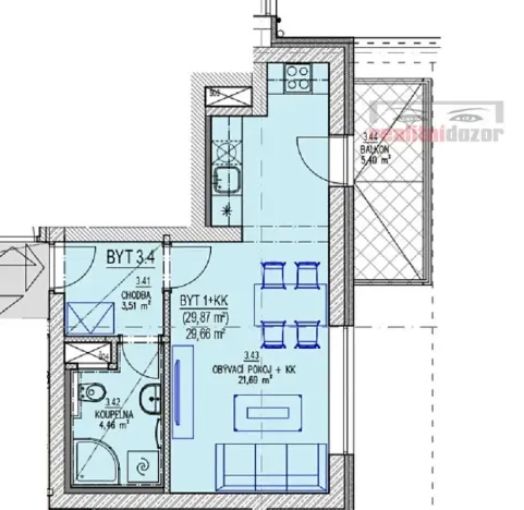
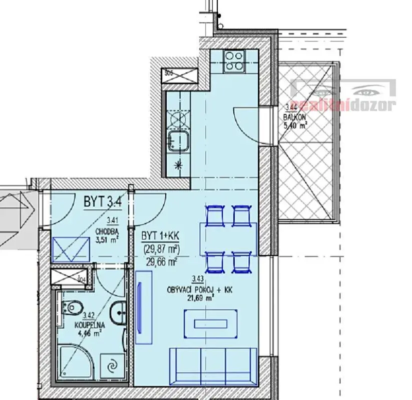
Nabízím k pronájmu krásný, světlý byt 1+kk s balkonem, nacházející se ve velmi žádané lokalitě na ulici Křepelčí v Žebětíně, novostavba z roku 2024. Byt je umístěn ve 3.NP domu s výtahem a bezbariérovým přístupem. CP bytu činí 39 m², z toho obytná plocha 29,87 m², balkon 5,4 m² a sklep 3,45 m². Sklepní kóje č. 3.4 se nachází přímo v domě ve 2.PP. Orientace bytu je JV. K nastěhování 1.4.2026.

Dispozice:
– chodba 3,51 m²
– pokoj s kuchyňským koutem 21,69 m²
– koupelna s WC 4,46 m²
– balkon/terasa 5,40 m²
– sklep 3,45 m²
Orientace bytu je na jihovýchod.

Součástí je kuchyňská linka s indukční deskou, myčkou, digestoří, troubou a lednicí s mrazákem, stropní světla. V koupelně se nachází skříňka se zrcadlem a osvětlením. V předsíni a koupelně jsou keramické obklady a dlažba, v obytné části plovoucí podlaha. Okna jsou plastová trojskla.
Teplo i ohřev vody zajišťují Brněnské teplárny.
Byt je vhodný maximálně pro dvě osoby – pracující či studenty, nekuřáci, bez zvířat.

Měsíční nájemné činí 13 800 Kč + zálohy na služby 2.100,- Kč.
Elektřinu (firma REKO) a internet (Vodafone nebo Netbox) a TV si nájemník sjednává samostatně.
Vratná kauce ve výši 16.000,- Kč.

Parkování je bezproblémové díky rozsáhlým parkovacím plochám u domu. Lokalita je klidná, s přírodou na dosah a výbornou dostupností do centra Brna – MHD i napojením na D1. V okolí se nachází školky, sportoviště, velkoobchod Albert a restaurace Kam jinam. K Brněnské přehradě je to přibližně 20 minut pěšky a k Žebětínskému rybníku asi 5 minut.

Těšíme se na setkání při prohlídkách.

Makléř

Máte zájem o tento byt?

Tímto, v souladu s nařízením Evropského parlamentu a Rady (EU) 2016/679, v platném znění, prohlašuji, že mi je alespoň 16 let a uděluji tak svůj souhlas se zpracováním zadaných údajů (jméno, telefon, e-mail, ip adresa) společnosti B3 Technology, s.r.o., IČ: 07330600, se sídlem Novostavby 126/23, 435 11 Lom (správce dat), za účelem předání dotazu z tohoto formuláře Vámi vybranému inzerentovi a zpětného kontaktování mé osoby. Osobní údaje bude správce zpracovávat manuálně i automaticky přímo prostřednictvím svých zaměstnanců. Informace předané tímto formulářem budou uloženy v databázi správce maximálně po dobu 10 let. Odvolání souhlasu s uložením a zpracováním poskytnutých dat lze e-mailem na info@origo-reality.cz. V případě podezření na neoprávněné použití Vámi poskytnutých údajů máte právo předat podnět k šetření Úřadu pro ochranu osobních údajů. Více informací
Chystáte se prodat nemovitost?
Pomůžeme Vám!

Přihlášení k odběru

Nenechte si ujít nejnovější nabídky pronájmu bytů 1+kk v Brně.