Pronájem bytu 3+kk, Praha, Na Šutce, 51 m2

Na Šutce, Praha 8

23 999 Kč
/za měsíc
vratná kauce 2 měsíční platby
Získejte výhodnou HYPOTÉKU Chci hypotéku

Parametry bytu

Náklady na bydlení4 400
AdresaNa Šutce, Praha 8
ID11932
StavbaCihlová
Stav objektuPo rekonstrukci
Patro3. z 4
VybavenoČástečně
Lokalita objektuKlidná část obce
VlastnictvíOsobní
Užitná plocha51 m2
Zastavěná plocha171 m2
Podlahová plocha54 m2
Třída energetické náročnostiG - Mimořádně nehospodárná
Elektřina230V
PlynPlynovod
OdpadVeřejná kanalizace
KomunikaceAsfaltová
DopravaSilnice, MHD, Autobus
VodaVodovod
Sklep
Lodžie

Origo partneři v Praze 8

Stěhovací služby

Výkup a prodej starého nábytku

Popis

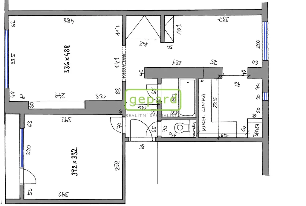
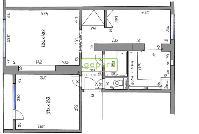
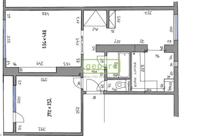
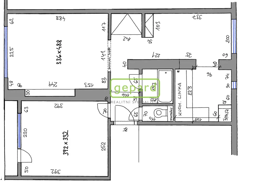
Pronajme se slunný byt o velikosti 3+kk 55 m2 v 3. podlaží třípodlažního zděného bytového domu v Praze 8 - Troja, ulice Na Šutce.

Byt je v osobním vlastnictví, po nadstandardní rekonstrukci. Byt je orientován jižním směrem, s nádherným výhledem na Prahu.

Dispozice:
- vstupní hala 6 m2
- pokoj 1 (ložnice) 13 m2
- lodžie 3 m2
- pokoj 2 (obýv. pokoj) 17 m2
- WC 1 m2
- koupelna 3 m2
- pokoj 3 (jídelna) 8 m2
- kuchyň 4 m2
- komora/sklad v suterénu domu 7 m2

Byt je po nadstandardní rekonstrukci. V ložnici a obývacím pokoji dřevěné parkety, v hale, jídelně a kuchyni vinylové podlahy, v koupelně a WC keramická dlažba. Na stěnách štuk s výmalbou, v koupelně keramické obklady. V kuchyni nová kuchyňská linka, všechny dveře nové včetně obložek. Ve vstupní hale je vestavěná skříň.

Byt se nabízí k pronájmu bez nábytku, částečně vybavený:
kuchyň - elektrický sporák se sklokeramickou varnou deskou, mikrovlnná trouba
předsíň - vestavěná skříň

Topení a ohřev vody - centrální
Elektrická energie - 220V.
Voda - veřejný vodovod.
Kanalizace - veřejná kanalizace.
Možnost kabelové televize, internetu.
Parkování - u domu.

Byt má nízké provozní náklady - měsíční zúčtovatelná záloha (pro 1 osobu) 3.900,- Kč, záloha na spotřebu elektro 500,- Kč.

Dům je ve výborném stavu, udržovaný, po rekonstrukci - nová plastová okna a vchodové dveře, nová střecha.


Velice žádané místo s veškerou občanskou vybaveností v okolí domu, s dobrým dopravním spojením.

Byt je volný ihned. Majitel upřednostní dlouhodobý nájemní vztah. Vratná kauce - dvě měsíční platby. Majitel si vyhrazuje právo vybrat nájemce dle svých vlastních kritérií.

Makléř

Máte zájem o tento byt?

Tímto, v souladu s nařízením Evropského parlamentu a Rady (EU) 2016/679, v platném znění, prohlašuji, že mi je alespoň 16 let a uděluji tak svůj souhlas se zpracováním zadaných údajů (jméno, telefon, e-mail, ip adresa) společnosti B3 Technology, s.r.o., IČ: 07330600, se sídlem Novostavby 126/23, 435 11 Lom (správce dat), za účelem předání dotazu z tohoto formuláře Vámi vybranému inzerentovi a zpětného kontaktování mé osoby. Osobní údaje bude správce zpracovávat manuálně i automaticky přímo prostřednictvím svých zaměstnanců. Informace předané tímto formulářem budou uloženy v databázi správce maximálně po dobu 10 let. Odvolání souhlasu s uložením a zpracováním poskytnutých dat lze e-mailem na info@origo-reality.cz. V případě podezření na neoprávněné použití Vámi poskytnutých údajů máte právo předat podnět k šetření Úřadu pro ochranu osobních údajů. Více informací
Chystáte se prodat nemovitost?
Pomůžeme Vám!

Přihlášení k odběru

Nenechte si ujít nejnovější nabídky pronájmu bytů 3+kk v Praze 8.