Pronájem bytu 1+1, Jablonec nad Nisou, Lípová, 61 m2

Lípová, Jablonec nad Nisou

16 700 Kč
/za měsíc
Získejte výhodnou HYPOTÉKU Chci hypotéku

Parametry bytu

AdresaLípová, Jablonec nad Nisou
ID4846
StavbaSmíšená
Stav objektuPo rekonstrukci
VybavenoNe
VlastnictvíOsobní
Užitná plocha61 m2
Třída energetické náročnostiG - Mimořádně nehospodárná

Origo partneři v Jablonci nad Nisou

Rekonstrukce

Úklidové služby

Popis

.
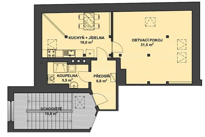
Mimořádná nabídka pronájmu bytu 1+1, 61 m² + 4 m² sklepní kóje + pakovací místo v nově zrekonstruovaném Villa domě kulturní památce

Nabízíme k dlouhodobému pronájmu komfortní byt o dispozici 1+1 a výměře 61 m² m, situovaný v podkroví kompletně zrekonstruovaného Villa domu kulturní památky v prestižní a klidné části centra města.

Byt je v osobním vlastnictví, nově vybudovaný v rámci citlivé rekonstrukce historického objektu. Dům je bez výtahu.

Dispozice bytu tvoří vstupní předsíň, samostatný pokoj, obývací prostor s kuchyňským koutem, koupelna se sprchovým koutem, umyvadlem a WC. K bytu náleží sklepní kóje o velikosti 4 m.

Byt je nabízen jako nezařízený, avšak s novým základním vybavením:
kuchyňská linka na míru
myčka nádobí
elektrická trouba
elektrická varná deska
digestoř
lednice s mrazákem
úsporný kondenzační kotel

Standard bytu zahrnuje vinylové podlahy, nová eurookna s trojskly, protipožární bezpečnostní vstupní dveře a moderní technické zázemí odpovídající současným nárokům na komfortní bydlení.

Parkování vlastního automobilu je možné na uzavřeném pozemku domu.

Lokalita nabízí kompletní občanskou vybavenost v bezprostřední blízkosti MHD, obchody, služby i centrum města v docházkové vzdálenosti.



Podmínky pronájmu
Nájemné: 16 700 Kč / měsíc
Zálohy na služby: 1 080 Kč / osoba / měsíc, každá další + 700 Kč
Elektrická energie a plyn budou přepsány na nájemce
Vratná kauce: 30 000 Kč
Provize RK
Nájemní smlouva na 1 rok s s prodloužením
Pouze dlouhodobé, výhradně rodinné bydlení
Bez domácích zvířat
Bez spolubydlení

Byt je k nastěhování ihned.

Prohlídky jsou možné po předchozí dohodě. Nabídka je určena pouze vážným zájemcům. Další informace poskytne realitní kancelář.

Makléř

Máte zájem o tento byt?

Tímto, v souladu s nařízením Evropského parlamentu a Rady (EU) 2016/679, v platném znění, prohlašuji, že mi je alespoň 16 let a uděluji tak svůj souhlas se zpracováním zadaných údajů (jméno, telefon, e-mail, ip adresa) společnosti B3 Technology, s.r.o., IČ: 07330600, se sídlem Novostavby 126/23, 435 11 Lom (správce dat), za účelem předání dotazu z tohoto formuláře Vámi vybranému inzerentovi a zpětného kontaktování mé osoby. Osobní údaje bude správce zpracovávat manuálně i automaticky přímo prostřednictvím svých zaměstnanců. Informace předané tímto formulářem budou uloženy v databázi správce maximálně po dobu 10 let. Odvolání souhlasu s uložením a zpracováním poskytnutých dat lze e-mailem na info@origo-reality.cz. V případě podezření na neoprávněné použití Vámi poskytnutých údajů máte právo předat podnět k šetření Úřadu pro ochranu osobních údajů. Více informací
Chystáte se prodat nemovitost?
Pomůžeme Vám!

Přihlášení k odběru

Nenechte si ujít nejnovější nabídky pronájmu bytů 1+1 v Jablonci nad Nisou.