Pronájem kanceláře, Praha - Nové Město, Podskalská, 39 m2

Podskalská, Praha 2 - Nové Město

21 450 Kč
/za měsíc
Získejte výhodnou HYPOTÉKU Chci hypotéku

Parametry nemovitosti

AdresaPodskalská, Praha 2 - Nové Město
IDPDS CMK01
StavbaCihlová
Lokalita objektuKlidná část obce
VlastnictvíOsobní
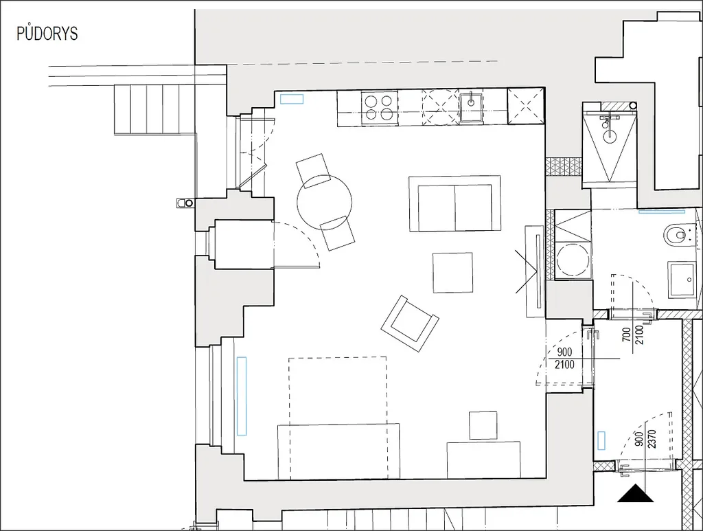
Užitná plocha39 m2
Třída energetické náročnostiF - Velmi nehospodárná

Origo partneři v Praze 2

Stěhovací služby

Výkup a prodej starého nábytku

Popis

Nabízíme k pronájmu kancelářské a komerční prostory o rozloze cca 39m² v soukromém bytovém domě ve vyhledávané lokalitě centra Prahy, ulice Podskalská, Praha 2 – Nové Město jen pár kroků od oblíbené pražské Náplavky, v docházkové vzdálenosti od metra B - Karlovo náměstí (vstup z Palackého náměstí) a zastávky tramvají a autobusů „Výtoň“.

Bytový dům z roku 1922 prošel v období 2023-2025 kompletní rekonstrukcí.

Dva kancelářské prostory s plochou (39.12m²) a (38.17m²) směrem do vnitrobloku mají samostatný vstup ze společné chodby domu, každý samostatně má trojkřídlé špaletové okno a špaletové balkonové dveře se v stupem na dvůr. Přípravu pro kuchyň, koupelnu a oddělenou toaletu. Tyto prostory mohou být spojeny s prostory do ulice.

Další dva komerční prostory s plochou (41.44 m²) a (41.34m²) ve sníženém 1NP mají samostatný vstup přímo z ulice s třemi velkými okny/vchody, využitelnými jako výlohy. Tyto prostory je možné pronajmout odděleně nebo jako jeden propojený celek (celková plocha 82,78 m²). V zázemí mají chodbu, skladové prostory, přípravu pro kuchyňku, koupelnu se sprchovým koutem a oddělenou toaletu. Vše je variabilní.

Vhodné pro široké spektrum provozního využití.

Jednotka bude předána ve stavu shell & core, připravená k individuálním úpravám a dokončení dle potřeb a vizuálních představ nájemce. Máte zde plnou tvůrčí volnost navrhnout komerční prostor tak, aby dokonale vystihnul vaši značku a zaujmul vaše zákazníky.
Veškeré stavební a instalační zásahy vyžadují souhlas majitele. Kolaudaci zajišťuje nájemce samostatně, na základě plné moci majitele.

Pro více informací či sjednání prohlídky nás kontaktujte kdykoliv telefonicky, emailem nebo sms zprávou.

Makléř

Máte zájem o tuto nemovistost?

Tímto, v souladu s nařízením Evropského parlamentu a Rady (EU) 2016/679, v platném znění, prohlašuji, že mi je alespoň 16 let a uděluji tak svůj souhlas se zpracováním zadaných údajů (jméno, telefon, e-mail, ip adresa) společnosti B3 Technology, s.r.o., IČ: 07330600, se sídlem Novostavby 126/23, 435 11 Lom (správce dat), za účelem předání dotazu z tohoto formuláře Vámi vybranému inzerentovi a zpětného kontaktování mé osoby. Osobní údaje bude správce zpracovávat manuálně i automaticky přímo prostřednictvím svých zaměstnanců. Informace předané tímto formulářem budou uloženy v databázi správce maximálně po dobu 10 let. Odvolání souhlasu s uložením a zpracováním poskytnutých dat lze e-mailem na info@origo-reality.cz. V případě podezření na neoprávněné použití Vámi poskytnutých údajů máte právo předat podnět k šetření Úřadu pro ochranu osobních údajů. Více informací
Chystáte se prodat nemovitost?
Pomůžeme Vám!